EasyManua.ls Logo

OMA 528C - Page 10

OMA 528C
53 pages
Print Icon
To Next Page IconTo Next Page
To Next Page IconTo Next Page
To Previous Page IconTo Previous Page
To Previous Page IconTo Previous Page
Loading...
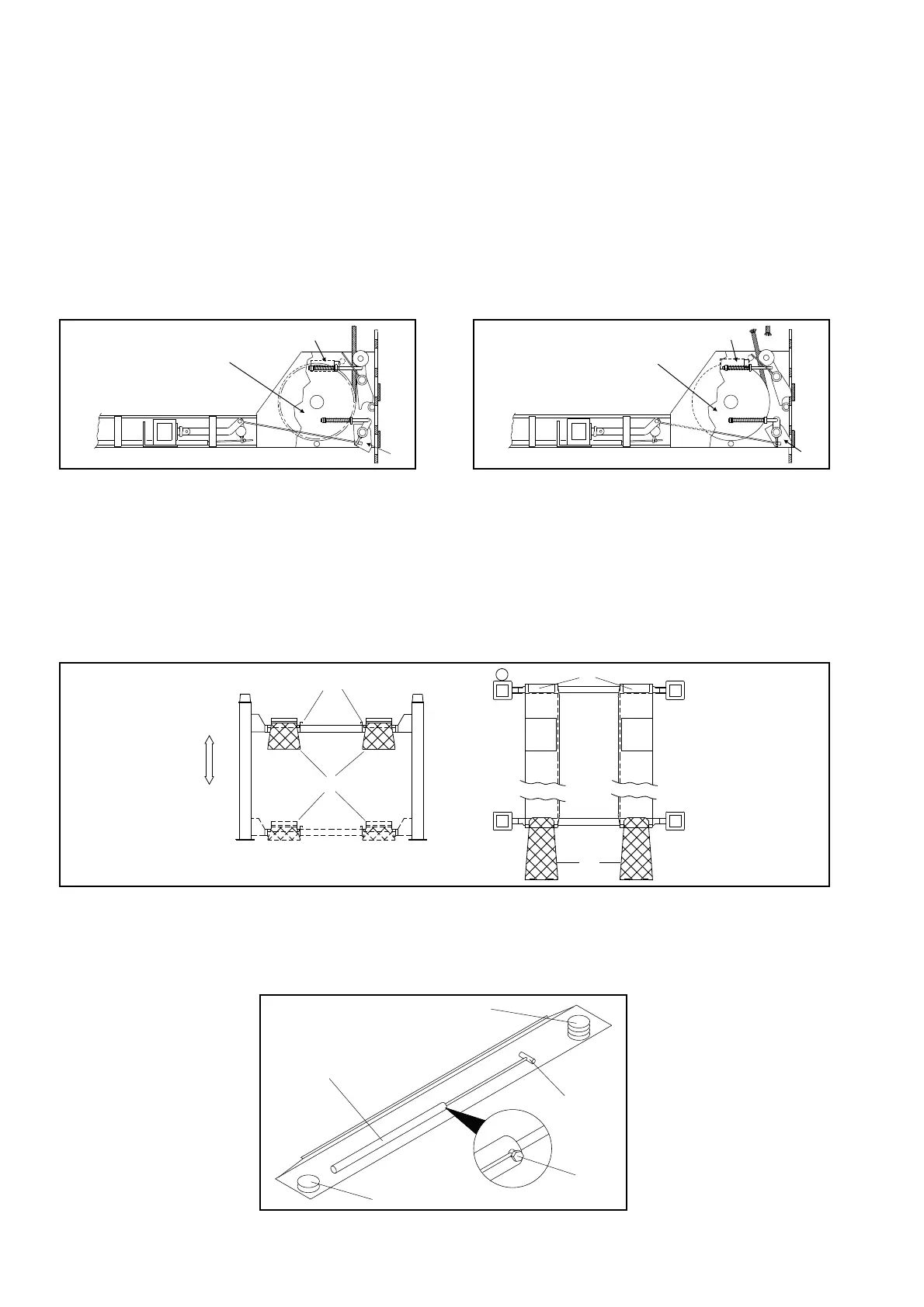
GRUPPOSTRUTTURAMOBILE
Écostituitodaduetraverseedaduepedane.
Ognitraversascorreverticalmentetraduecolonne.
Comesivedeinfig.7,alledueestremitàdiognitraversasonofis
-
sati:
-lepuleggedirinvio(1)dellafunedisollevamento,
-gliinnestimeccanicidisicurezza(martelletti)(2e3).
Ilmartellettodistazionamento(pos.3)siinserisceautomaticamen
-
tedurantetuttalafasedisalitaenellostazionamento.Deveesse
-
redisinseritoelettricamentedurantelafasedidiscesa.
Incasodirotturadellafune,siazio-nailmicrointerruttorefuni(4)
cheprovocailbloccodellaparteelettricadelponteel’inserimento
delmartellettodistazionamento,pertantodellasuapartemobile
nonchèdelcarico.
Leduepedaneportaveicoli(Fig.9)appoggianosulletraverse.
Lapedanasinistra(1)èfissa,mentrelapedanadestra(2)èmobi
-
leepuòscorrereorizzontalmenteperadattarsiallediversecarreg
-
giatedeiveicoli.Entrambesonodotatedibordiinterni(3)diconte
-
nimentodeipneumaticidelveicoloediarrestifissidisicurezza(4)
cheimpedisconoalveicolostessodioltrepassareaccidentalmente
lafinedellapedana;lerampediaccesso(5),incernieratesullepe-
dane,siposizionanoverticalmentequandolepedanesalgono,
bloccandoinmanieradefinitivailveicolo.
Fig.9 PedaneeTraverse
All’internodellapedanalatoco
-
mando(Fig.10),conaccessodal
sololatoinferiore(latosuolo),
sitrovano:
-ilcilindroidraulicodisollevamen
-
to(1);
-lavalvolaparacaduteodiblocco
(2);
-ilgiogodiattacco(3)dellefunidi
acciaio;
-duegruppipuleggedirinvio(4)
dellefuni.
Fig.10- Interno pedana fissa
MOVABLESTRUCTURE
Themovablestructureconsistoftwocross-piecesandtwoplat
-
forms.
Eachcross-piecetranslatesverticallybetweentwoposts.
Asshowninfig.7,theendsofthecross-piecesarefittedwiththe
followingparts:
-returnpulleys(1)fortheliftcable,
-mechanicalsafetydevices(wedges)(2and3).
Thewedge(pos.3)willengageautomaticallyduringliftingand
whentheliftisraised.
Incaseofbreakageofthecable,thecablemicroswitch(4)causes
thelockoftheliftelectricalpartandtheengagementofthesafety
wedge,thereforeitstopsthemovablepartandtherelevantvehic
-
le.
Thetwoplatforms(Fig.9)aresupportedonthecross-pieces.
Theleftplatform(1)hasnoadjustment;therightplatform(2)is
freetoslideacrossthewidthoftheliftingareatoadapttothetrack
widthofthevehiclebeinglifted.
Bothplatformshaveinsidekerbs(3)tokeepthevehicletyresfully
ontheliftingsurface,andfixedwheelstops(4)tostopthevehicle
fromgoingbeyondtheendsoftheplatforms;
Theaccessramps(5),pivotedtotheplatforms,automaticallyre
-
achaverticalpositionwhentheplatformslift,therebysecuringthe
vehiclealsofromtheaccessend.
Fig.9 Platforms and cross-pieces
Thefollowingcomponentsareloca
-
tedbeneaththefixedplatform(Fig.
10),andareaccessibleonlyfrom
underneath:
-hydraulicliftcylinder(1);
-parachutesafetyvalve(2);
-cleviscoupling(3)forthesteel
cables;
-twocablereturnpulleyassemblies
(4).
FiIg.10 Interiorofthefixedplatform
8
Fig.8
Abb.8
4
1
3
1
3
2
3
2
3
1
4
4
Fig.7
Abb.7
4
1
3

Related product manuals