EasyManua.ls Logo

OMA 528C - Page 16

OMA 528C
53 pages
Print Icon
To Next Page IconTo Next Page
To Next Page IconTo Next Page
To Previous Page IconTo Previous Page
To Previous Page IconTo Previous Page
Loading...
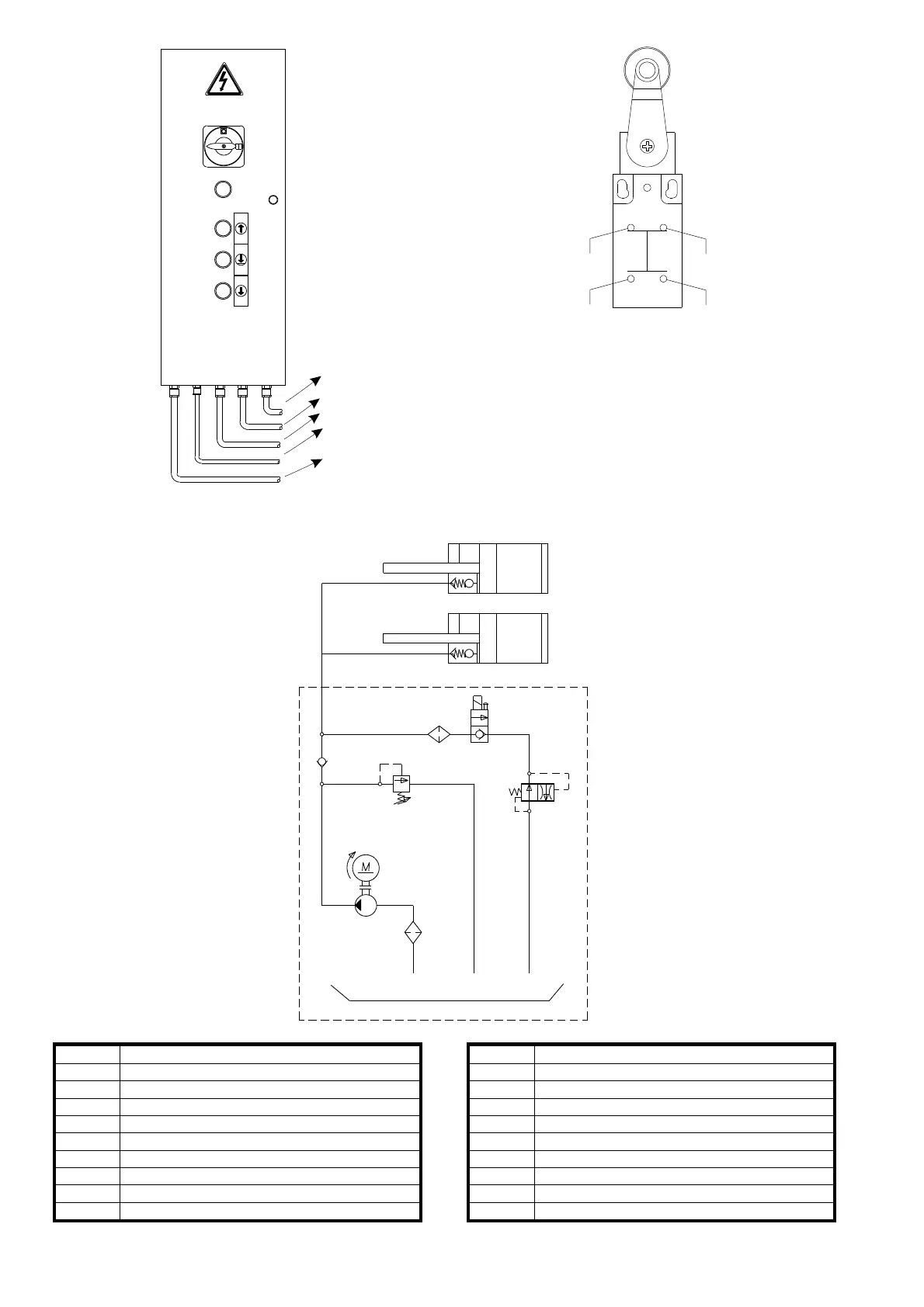
SCHEMAOLEODINAMICO
Rif. Descrizione
1 Valvolaparacadute
2 Elettrovalvola
3 Valvoladiritegno
4 Valvoladimassima
5 Valvoladistrozzamento
6 Motore
7 Pompa
8 Filtro
9 Serbatoio
HYDRAULICCIRCUITDIAGRAM
Re. Description
1 Parachutevalve
2 Solenoidvalve
3 Checkvalve
4 Reliefvalve
5 Throttlevalve
6 Motor
7 Pump
8 Filter
9 Reservoir
14
Motore+protezionetermicamotore-Motorandthermalswitch(8-9)
Elettromagneti-Electromagnet
MicrointerruttorifuneandON/OFFswitchforbrokenorslackenrope(0-2)(1-2)
Finecorsa-Limitswitch(3-4)
Elettrovalvola-Solenoidvalve(0-7)
MicrointerruttorediscesaQM11-LOWERINGmicroswitchQM11(1-17)(16-18)
1
4
7
2
5
3
6
8
9
2
1
Azzurro
Bluesky
16
Nero
Black
17
Marron
Brown
18
Grigio
Grey
NC
NO
21 22
13 14
QM11

Related product manuals