EasyManua.ls Logo

Omron CIMR-J7AZ - QUICK - Page 100

Omron CIMR-J7AZ - QUICK
116 pages
Print Icon
To Next Page IconTo Next Page
To Next Page IconTo Next Page
To Previous Page IconTo Previous Page
To Previous Page IconTo Previous Page
Loading...
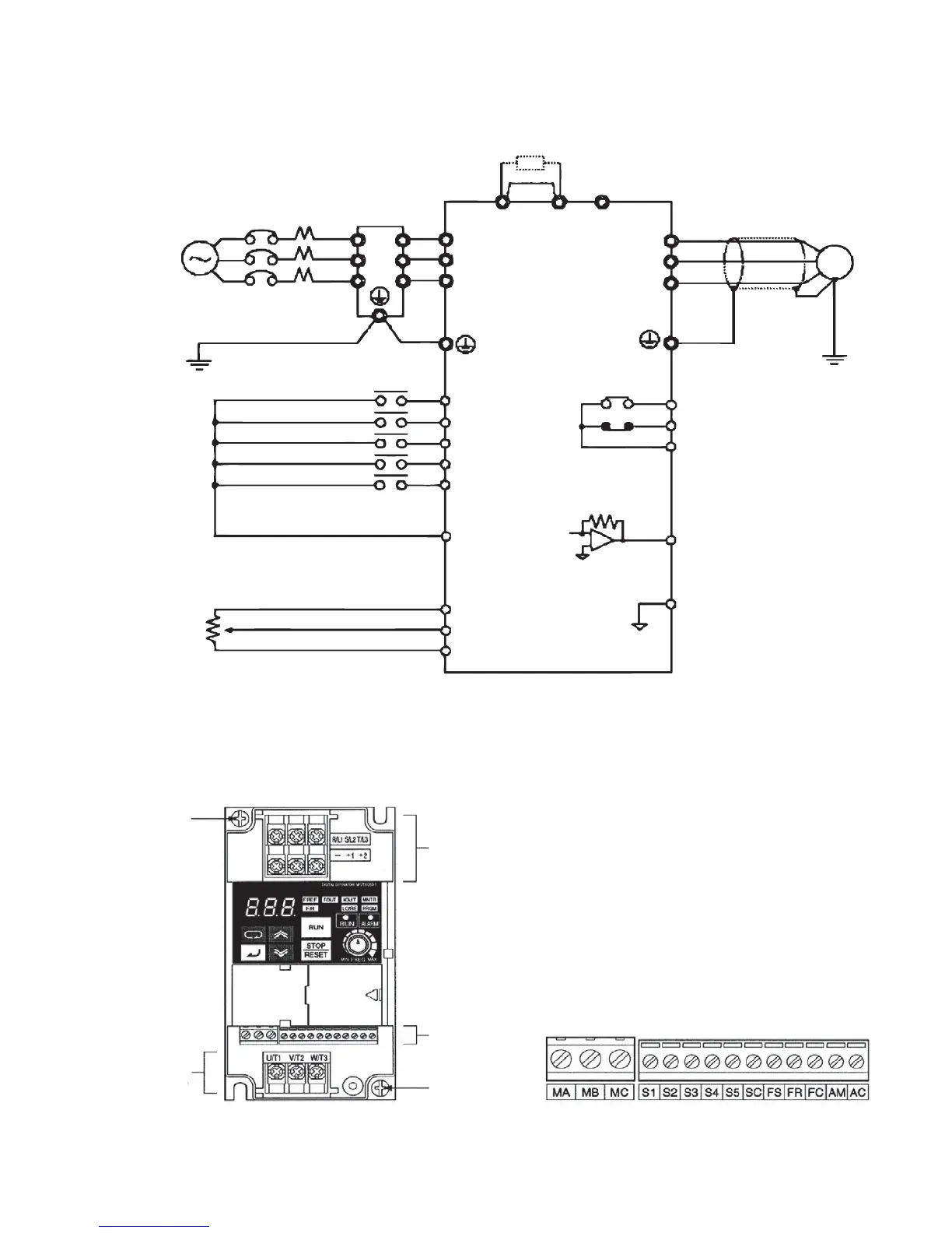
1. Подключение цепей
Перемычка
U/T1
V/T2
W/T3
M
+1 +2 -
Фильтр подавления
помех
200 В~, 3-фазн.
200 В~, 1-фазн.
(см. прим. 1)
L1
L2
L3
L1i
L2i
L3i
R/L1
S/L2
T/L3
3G3JV PFI @
Многофункцион. вход 1 (S2)
Многофункцион. вход 2 (S3)
Многофункцион. вход 3 (S4)
Многофункцион. вход 4 (S5)
Общая цепь дискретных входов
Вперед/стоп
Напряжение питания аналогового
входа опорной частоты
+ 12 В, 20 мА
S1
S2
S3
S4
S5
SC
FC
FR
FS
Внешняя
регулировка
частоты
(2 кОм, мин. 1/4 Вт)
Вход опорной частоты
Общая цепь входа опорной частоты
Многофункциональные
дискретные (контакторные)
выходы
NO
NC
Общая цепь
Аналоговый выход
контроля
Общая цепь аналогового
выхода контроля
Примечание 1: Однофазное напряжение 200 В~ подается на клеммы R/L1 и S/L2 инвертора
J7AZB.
Примечание 2: Тормозной резистор подключить нельзя, поскольку отсутствует тормозной
транзистор.
MA
MB
MC
AM
AC
Клеммы схемы
управления
Клемма
заземления
Клемма
заземления
Расположение клемм схемы управления
Клеммы входных
силовых цепей
(ввод высокого напряжения)
Клеммы
выходных
силовых цепей
(питание двигателя)