EasyManua.ls Logo

Omron CIMR-J7AZ - QUICK - Page 30

Omron CIMR-J7AZ - QUICK
116 pages
Print Icon
To Next Page IconTo Next Page
To Next Page IconTo Next Page
To Previous Page IconTo Previous Page
To Previous Page IconTo Previous Page
Loading...
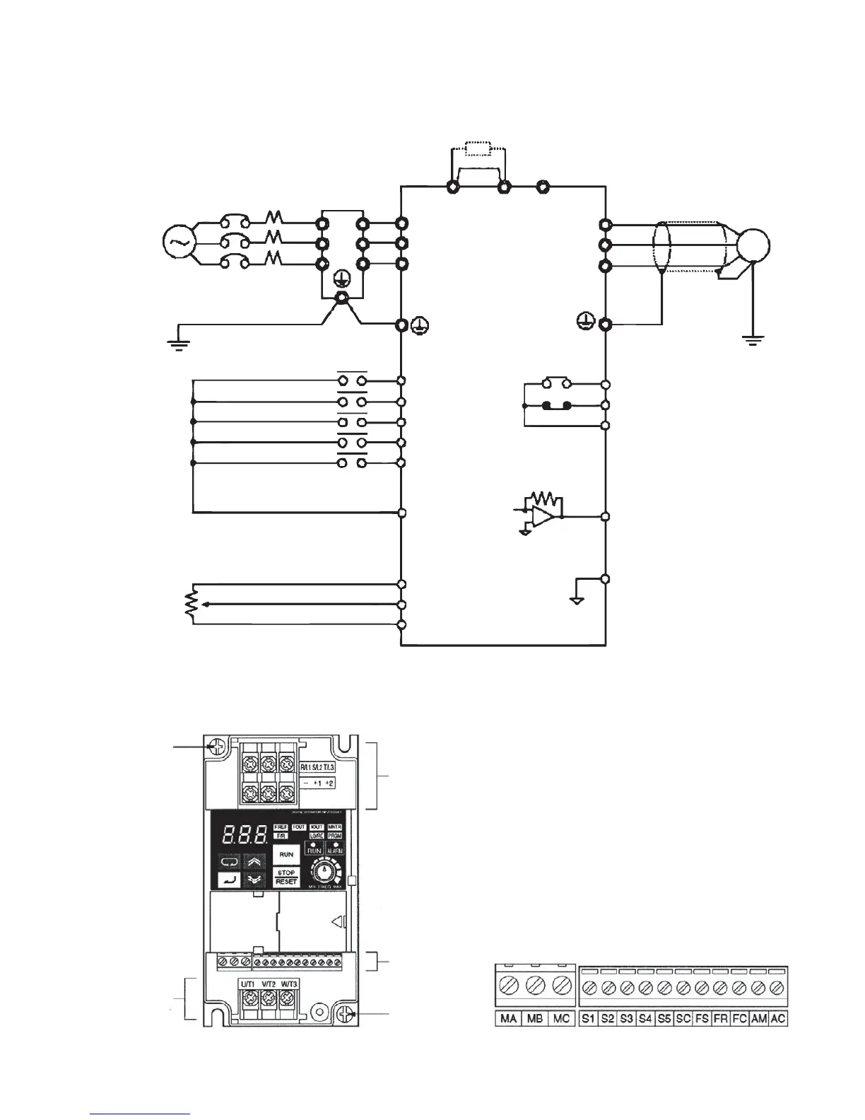
1. Anschlussplan
Hinweis 1: 200 V Wechselspannung: Anschluss an die Klemmen R/L1 und S/L2.
Hinweis 2: Der Frequenzumrichter verfügt über keinen Bremstransistor, daher kann kein Bremswiderstand
angeschlossen werden.
Brücke
U/T1
V/T2
W/T3
M
+1 +2 -
Entstörfilter
L1
L2
L3
L1i
L2i
L3i
200 V AC (Drehstrom
oder Wechselstrom,
siehe Hinweis 1)
R/L1
S/L2
T/L3
3G3JV PFI @
Multifunktionseingang 1 (S2)
Multifunktionseingang 2 (S3)
Multifunktionseingang 3 (S4)
Multifunktionseingang 4 (S5)
Bezugspotenzial
Vorwärts/Stopp
S1
S2
S3
S4
S5
SC
FC
FR
FS
Frequenzsollwert-Spannungsversorgung
(20 mA bei 12 V DC)
Externer
Frequenzeinsteller
(Potentiometer)
(2 k min. 1/4 W)
Frequenzsollwerteingang
Frequenzsollwert-Bezugspotenzial
Multifunktionskontaktausgang
Schließer
Öffner
Bezugspunkt
Analoger
Überwachungsausgang
MA
MB
MC
AM
AC
Bezugspotenzial analoger
Überwachungsausgang
Versorgungsspannungseingangsklemmen
Steuerklemmen
Erdungsklemme
Erdungs-
klemme
Motorausgangs-
klemmen
Anordnung der Steuerklemmen

Related product manuals