EasyManua.ls Logo

Omron CIMR-J7AZ - QUICK - Page 58

Omron CIMR-J7AZ - QUICK
116 pages
Print Icon
To Next Page IconTo Next Page
To Next Page IconTo Next Page
To Previous Page IconTo Previous Page
To Previous Page IconTo Previous Page
Loading...
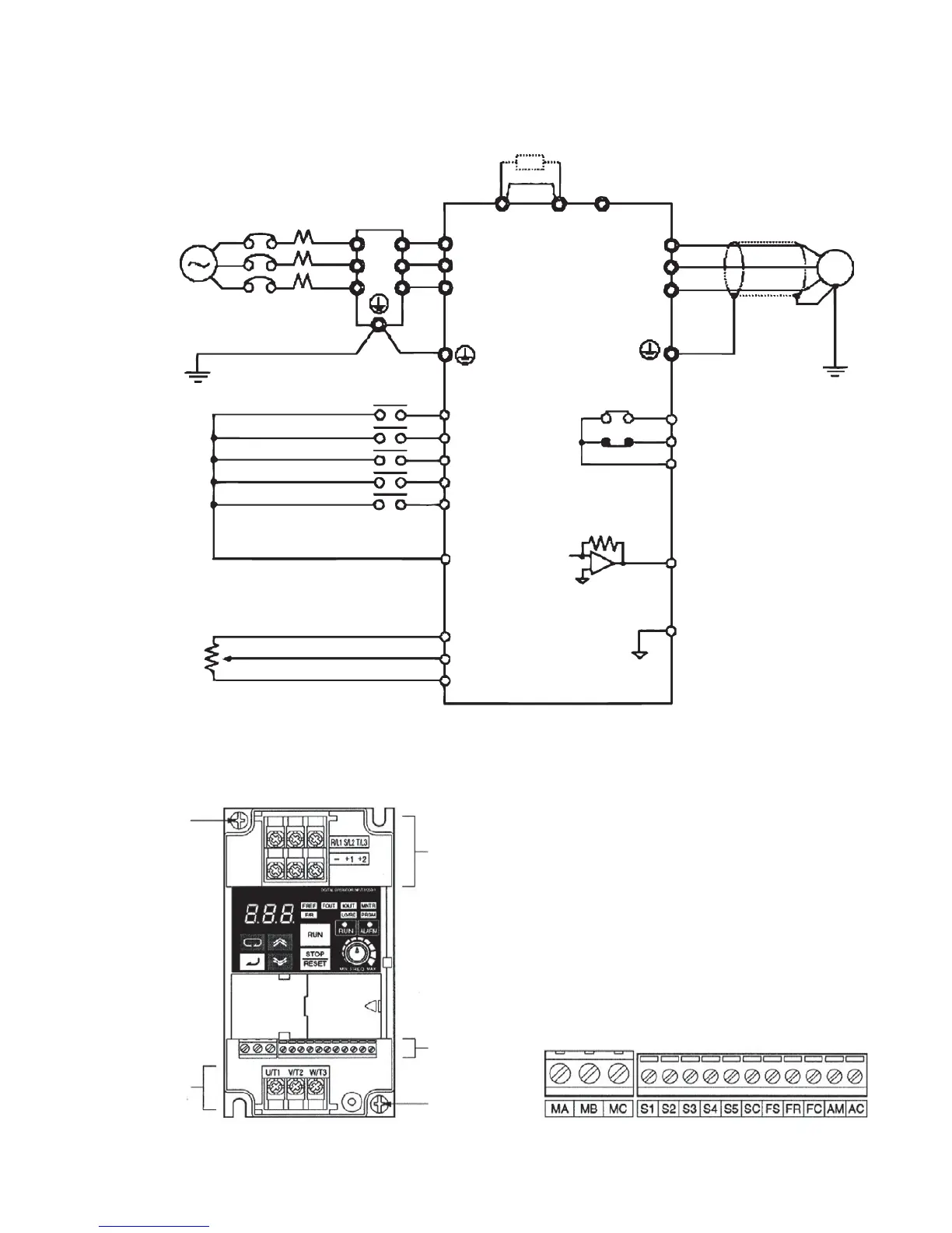
1. Câblage
Remarque 1 : Connectez le monophasé 200 Vc.a. aux bornes R/L1 et S/L2 du J7AZB
Remarque 2 : La résistance de freinage ne peut être connectée car aucun transistor de freinage
n'est incorporé.
CAVALIER DE
COURT CIRCUIT
U/T1
V/T2
W/T3
M
+1 +2 -
Filtre antiparasite
L1
L2
L3
L1i
L2i
L3i
Triphasé 200 Vc.a.
monophasé 200 Vc.a.
(voir remarque 1)
R/L1
S/L2
T/L3
3G3JV PFI @
Entrée multifonction 1 (S2)
Entrée multifonction 2 (S3)
Entrée multifonction 3 (S4)
Entrée multifonction 4 (S5)
Commun d'entrée de séquence
Avant/arrêt
S1
S2
S3
S4
S5
SC
FC
FR
FS
Alimentation de référence de
fréquence 20 mA à +12 V
Ajusteur de
fréquence externe
(2 k 1/4 W min.)
Entrée de référence fréquence]
Commun de référence de fréquence
Sortie de contact multifonction
NO
NC
Commun
Sortie moniteur analogique
MA
MB
MC
AM
AC
Commun de sortie
moniteur analogique
Bornes d'entrée du
circuit principal
Bornes du
circuit de
contrôle
Connecteur
terre
Connecteur
terre
Bornes de
sortie du circuit
principal
Disposition des bornes du circuit
de contrôle

Related product manuals