EasyManua.ls Logo

Omron NS8-TV00 V2 Series - Page 73

Omron NS8-TV00 V2 Series
286 pages
Print Icon
To Next Page IconTo Next Page
To Next Page IconTo Next Page
To Previous Page IconTo Previous Page
To Previous Page IconTo Previous Page
Loading...
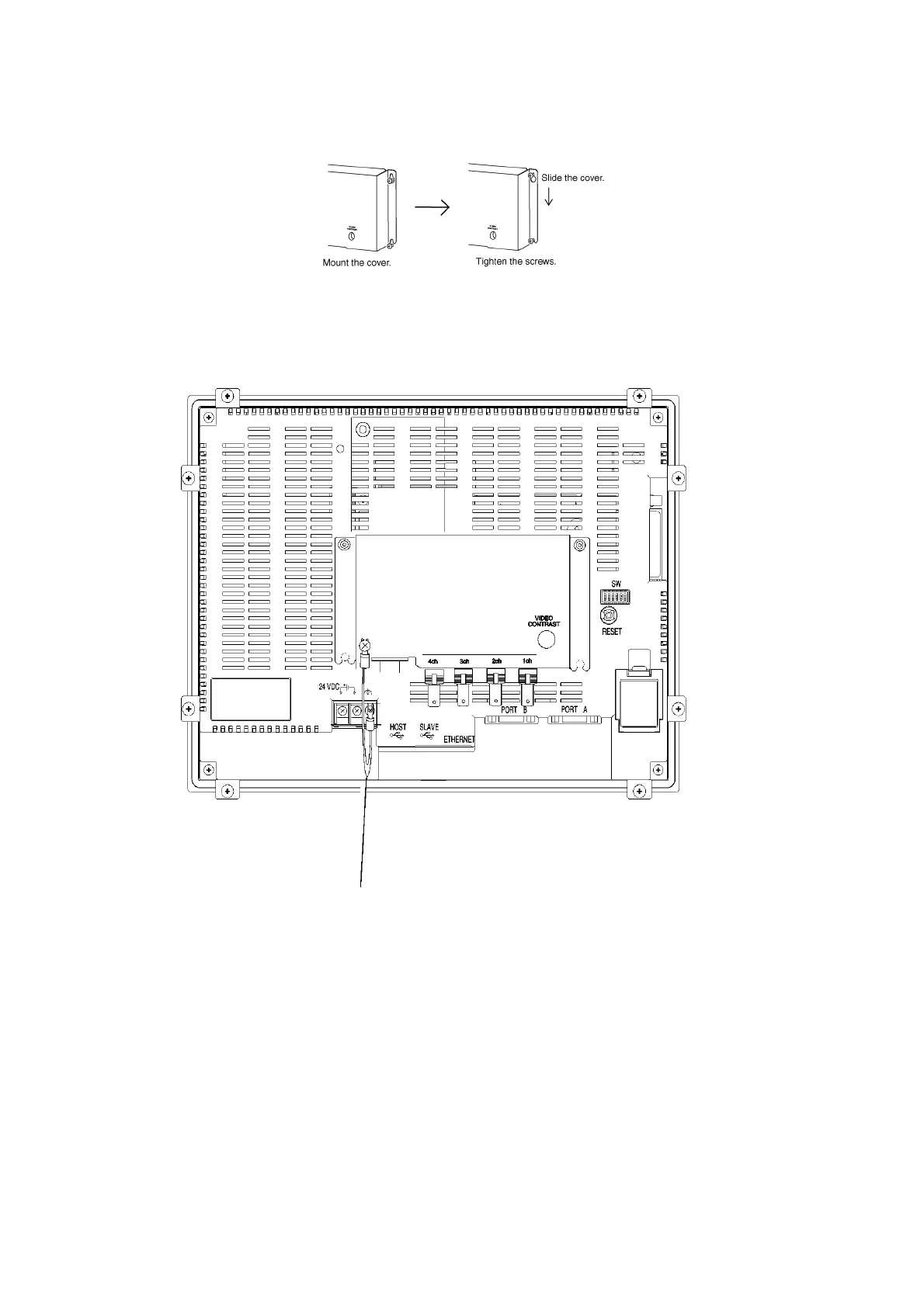
3-7 Installing the Video Input Unit
Slide the cover downward and tighten the screws.
Connecting the Cable
Connect the functional ground terminal of the PT and the cover with the cable to prevent mal-
function due to noise.
Connect with the cable provided.
3-31

Table of Contents

Related product manuals