EasyManua.ls Logo

Omron OMNUC U Series - Page 22

Omron OMNUC U Series
171 pages
Print Icon
To Next Page IconTo Next Page
To Next Page IconTo Next Page
To Previous Page IconTo Previous Page
To Previous Page IconTo Previous Page
Loading...
2-4
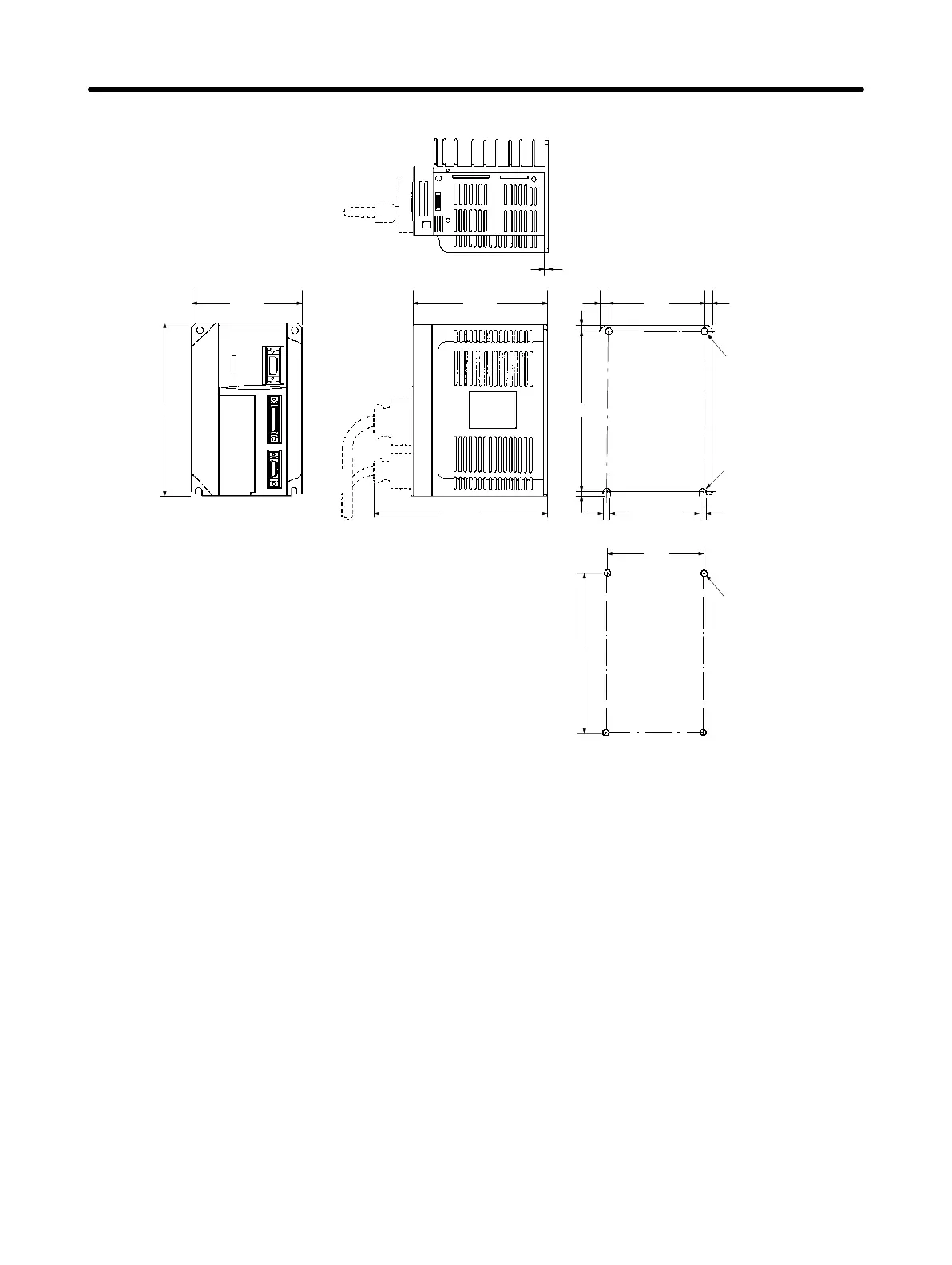
D R88D-UEP20H (200 VAC, 750 W) and R88D-UEP15L (100 VAC, 300 W)
160
105 130 90
149
(165)
90
149
Four, M4
Two, R3
Two, 6 dia.
7
(8)
6
5
66
Installation
dimensions
3.5
System Design and Installation
Chapter
2
Artisan Technology Group - Quality Instrumentation ... Guaranteed | (888) 88-SOURCE | www.artisantg.com

Related product manuals