EasyManua.ls Logo

Omron Q2A-A4004-AAA - Drive Exterior and Mounting Dimensions; Open Chassis Type (IP20)

Omron Q2A-A4004-AAA
844 pages
To Next Page IconTo Next Page
To Next Page IconTo Next Page
To Previous Page IconTo Previous Page
To Previous Page IconTo Previous Page
Loading...
Specifications
10
10.6 Drive Exterior and Mounting Dimensions
SIEPYEUOQ2A01A AC Drive Q2A Technical Manual 367
10.6 Drive Exterior and Mounting Dimensions
Open Chassis Type (IP20)
4002 to 4023
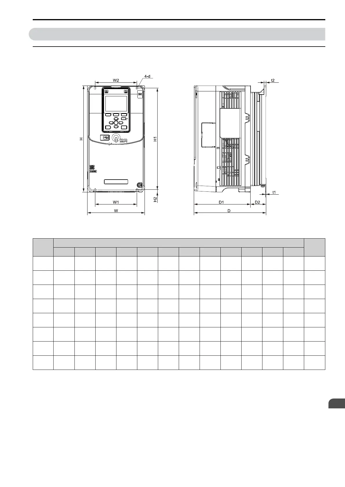
Figure 10.1 Exterior and Mounting Dimensions Diagram 1
Table 10.18 400 V class (IP20)
Model
Dimensions mm (in.)
Weight
kg (lb.)
W H D D1 D2 W1 W2 H1 H2 t1 t2 d
4002
140
(5.51)
260
(10.24)
176
(6.93)
138
(5.43)
38
(1.50)
102
(4.02)
102
(4.02)
248
(9.76)
6
(0.236)
1.6
(0.063)
5
(0.197)
M5
3.5
(7.72)
4004
140
(5.51)
260
(10.24)
176
(6.93)
138
(5.43)
38
(1.50)
102
(4.02)
102
(4.02)
248
(9.76)
6
(0.236)
1.6
(0.063)
5
(0.197)
M5
3.5
(7.72)
4005
140
(5.51)
260
(10.24)
176
(6.93)
138
(5.43)
38
(1.50)
102
(4.02)
102
(4.02)
248
(9.76)
6
(0.236)
1.6
(0.063)
5
(0.197)
M5
3.5
(7.72)
4007
140
(5.51)
260
(10.24)
211
(8.31)
138
(5.43)
73
(2.87)
102
(4.02)
102
(4.02)
248
(9.76)
6
(0.236)
1.6
(0.063)
5
(0.197)
M5
3.9
(8.60)
4009
140
(5.51)
260
(10.24)
211
(8.31)
138
(5.43)
73
(2.87)
102
(4.02)
102
(4.02)
248
(9.76)
6
(0.236)
1.6
(0.063)
5
(0.197)
M5
3.9
(8.60)
4012
140
(5.51)
260
(10.24)
211
(8.31)
138
(5.43)
73
(2.87)
102
(4.02)
102
(4.02)
248
(9.76)
6
(0.236)
1.6
(0.063)
5
(0.197)
M5
3.9
(8.60)
4018
140
(5.51)
260
(10.24)
211
(8.31)
138
(5.43)
73
(2.87)
102
(4.02)
102
(4.02)
248
(9.76)
6
(0.236)
1.6
(0.063)
5
(0.197)
M5
4.2
(9.26)
4023
140
(5.51)
260
(10.24)
211
(8.31)
138
(5.43)
73
(2.87)
102
(4.02)
102
(4.02)
248
(9.76)
6
(0.236)
1.6
(0.063)
5
(0.197)
M5
4.2
(9.26)

Table of Contents

Other manuals for Omron Q2A-A4004-AAA

Related product manuals