EasyManua.ls Logo

Omron R88D-1SN15F-ECT - Page 167

Omron R88D-1SN15F-ECT
974 pages
Print Icon
To Next Page IconTo Next Page
To Next Page IconTo Next Page
To Previous Page IconTo Previous Page
To Previous Page IconTo Previous Page
Loading...
2 - 79
2 Models and External Dimensions
AC Servomotors/Servo Drives 1S-series with Built-in EtherCAT® Communications User’s Manual (I586)
2-4 External and Mounting Dimensions
2
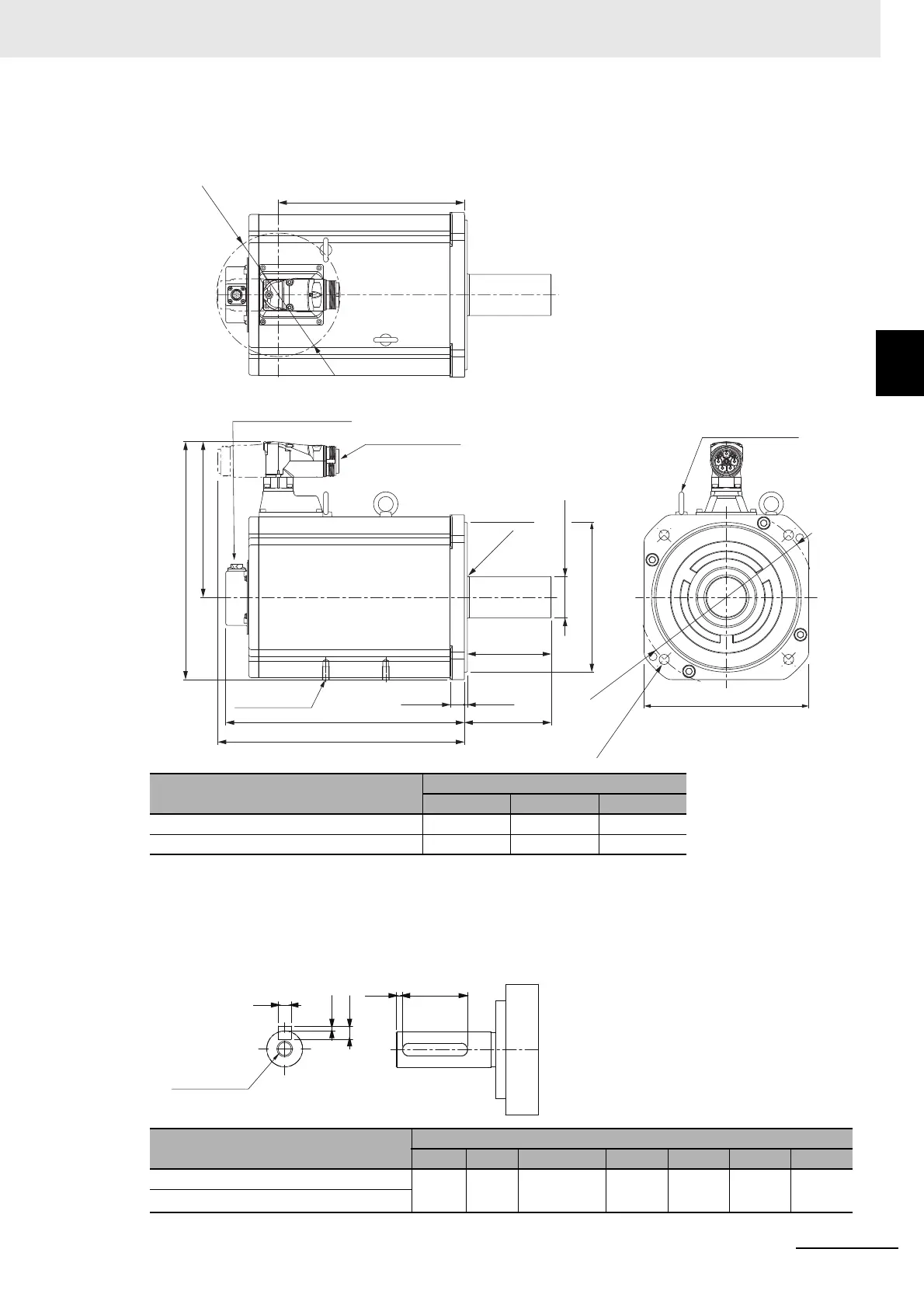
2-4-2 Servomotor Dimensions
11 kW/15 kW (without Brake)
R88M-1M11K015T(-O/-S2/-OS2)/R88M-1M15K015T(-O/-S2/-OS2)
Note The standard shaft type is a straight shaft. Models with a key and tap are indicated with “S2” at the end of
the model number.
Models with an oil seal are indicated with “O” at the end of the model number.
Shaft-end with key and tap
Model
Dimensions [mm]
LL L1 L2
R88M-1M11K015T(-O/-S2/-OS2) 319±3 249 330
R88M-1M15K015T(-O/-S2/-OS2) 397±3 327 408
Model
Dimensions [mm]
QA QK W T U QE LT
R88M-1M11K015T(-S2/-OS2) 3 93 10 M20 40
R88M-1M15K015T(-S2/-OS2)
112±0.95
208±3
(318)
(L1)
(165 dia.)
4-13.5±0.5 dia.
235±0.23 dia.
18.5±1
4±0.5
116±1LL
(L2)
R1.5max.
0
200-0.046 dia.
55+0.011 dia.
+0.030
Eye bolt (2-M8)
Encoder connector
2-M8
(For eye bolt)
Motor connector
220×220±3
T
W
U
QA QK
Key and tap cross section
QE (tap)
LT (tap depth)
-0.043
0
16
-0.4
0
4

Table of Contents

Related product manuals