EasyManua.ls Logo

Omron R88D-1SN15F-ECT

Omron R88D-1SN15F-ECT
974 pages
To Next Page IconTo Next Page
To Next Page IconTo Next Page
To Previous Page IconTo Previous Page
To Previous Page IconTo Previous Page
Loading...
2 - 89
2 Models and External Dimensions
AC Servomotors/Servo Drives 1S-series with Built-in EtherCAT® Communications User’s Manual (I586)
2-4 External and Mounting Dimensions
2
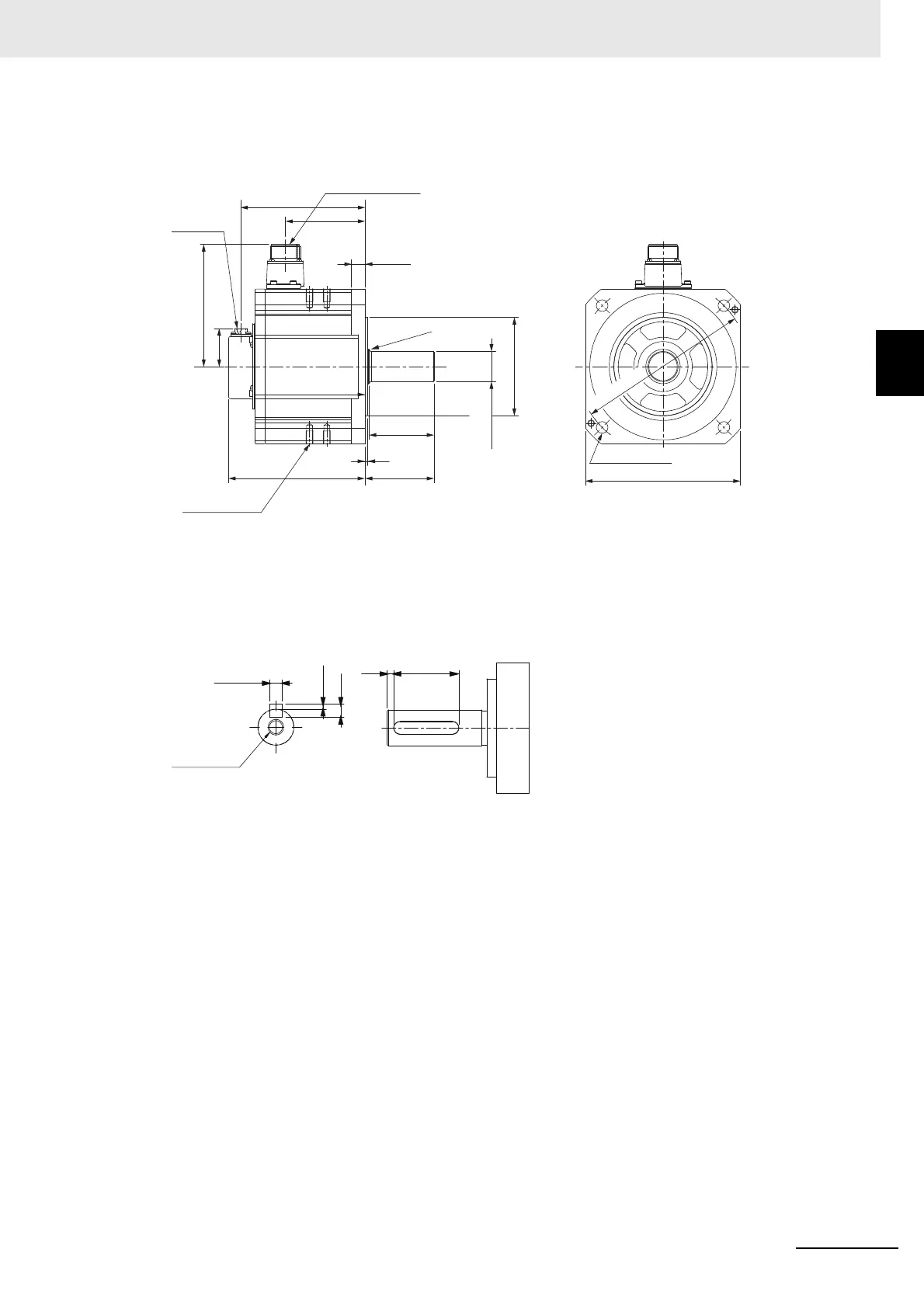
2-4-2 Servomotor Dimensions
2 kW (without Brake)
R88M-1M2K010T(-O/-S2/-OS2)
Note The standard shaft type is a straight shaft. Models with a key and tap are indicated with “S2” at the end of
the model number.
Models with an oil seal are indicated with “O” at the end of the model number.
Shaft-end with key and tap
±
93±1
159±2
4-13.5±0.5 dia.
145±2
80±1
16±0.8
3±0.3
35
0
-0.016 dia.
114.3
0
-0.035 dia.
75±0.95
45±2
141±2
200 dia.±0.23
R1.5 max
Moter connector
Encoder
connector
2-M8
(For eye bolt)
180×180±2
8
10-
0.036
0
3 62
Key and tap cross section
3-
0
0.4
M12(tap)
25(tap depth)

Table of Contents

Related product manuals