EasyManua.ls Logo

Omron R88D-1SN15F-ECT - Page 219

Omron R88D-1SN15F-ECT
974 pages
Print Icon
To Next Page IconTo Next Page
To Next Page IconTo Next Page
To Previous Page IconTo Previous Page
To Previous Page IconTo Previous Page
Loading...
2 - 131
2 Models and External Dimensions
AC Servomotors/Servo Drives 1S-series with Built-in EtherCAT® Communications User’s Manual (I586)
2-4 External and Mounting Dimensions
2
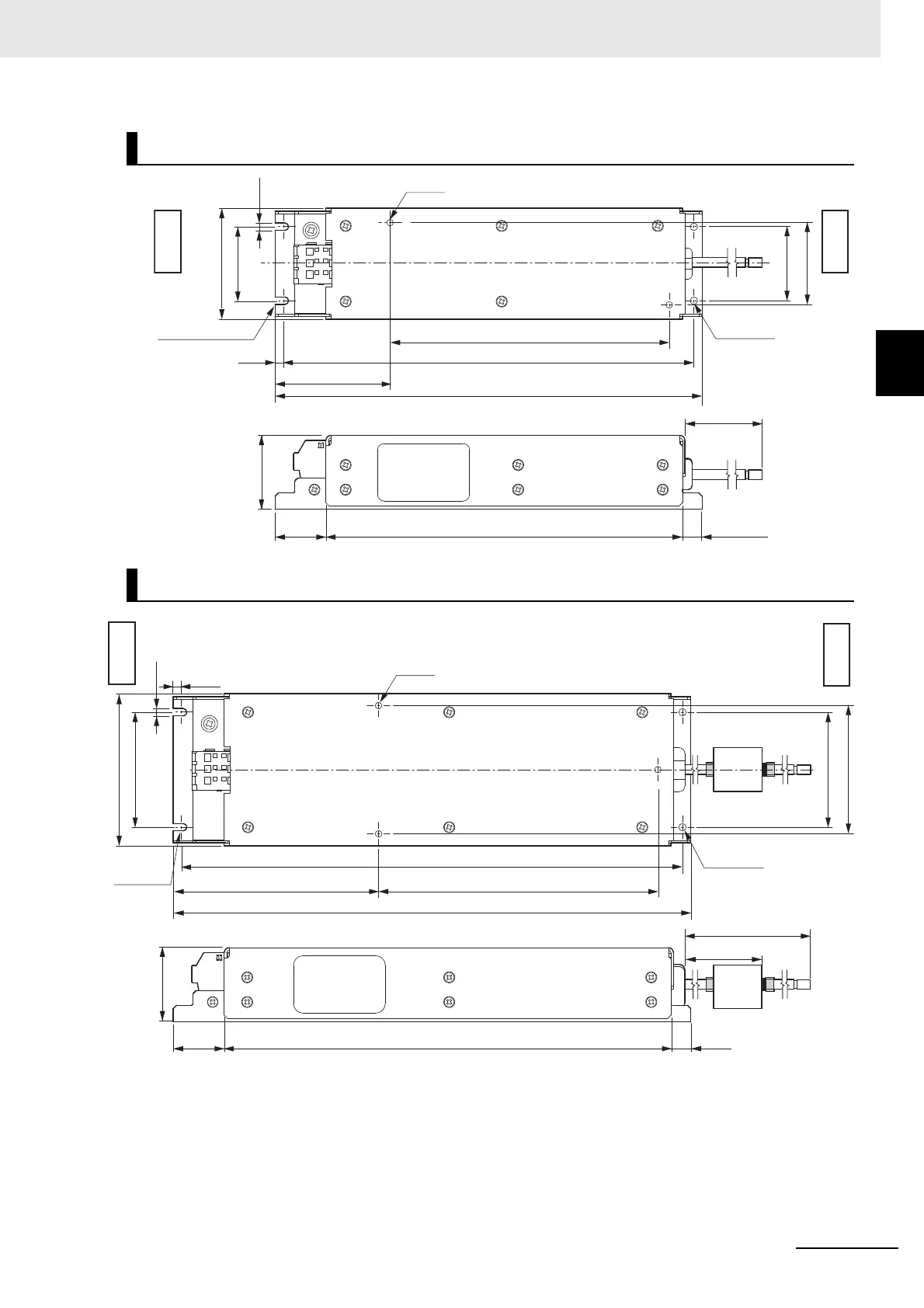
2-4-9 Noise Filter Dimensions
R88A-FI1S109/ -FI1S208
R88A-FI1S116/ -FI1S216
DOWN
UP
67.5
±1.0
45
±0.5
(4.5)
2-M4
260
±2.0
5
±0.5
70
±0.5
170
±0.5
250
±1.0
45
±0.5
50
±0.5
45
±1.0
(12)217
±2.0
31
±1.0
300
±10.0
2-R2.25 notch
2-4.5 dia.
92.5
±1.0
70
±0.5
(4.5)
3-M4
DOWN
45
±1.0
(12)272
±2.0
31
±1.0
UP
70
±0.5
78
±0.5
5
±0.5
315
±2.0
125
±0.5
170
±0.5
305
±1.0
300
±10.0
175
±20.0
2-R2.25
notch
2-4.5 dia.

Table of Contents

Related product manuals