EasyManua.ls Logo

Omron R88D-1SN30F-ECT - Page 390

Omron R88D-1SN30F-ECT
974 pages
To Next Page IconTo Next Page
To Next Page IconTo Next Page
To Previous Page IconTo Previous Page
To Previous Page IconTo Previous Page
Loading...
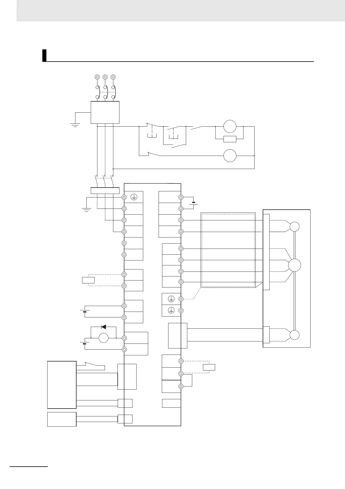
4 Configuration and Wiring
4 - 32
AC Servomotors/Servo Drives 1S-series with Built-in EtherCAT® Communications User’s Manual (I586)
R88D-1SN150F-ECT
RTS
123
456
E
NF
PL
L1
L2
CN1
X
24 VDC
B
E
M
CN2
CN1
L3
N3
P
CNA
X
X
1MC
OFF ON
X
1MC
1MC
B2
CNB
CND
+24V
0V
E-CAT IN, CN10
E-CAT OUT, CN11
24 VDC
28/ERR-
8/ERR+
B1
DB3
DB2
DB1
CNE
0V
_BKIR1
BKIR-3
BKIR+4
CN12
+24V
_BKIR2
V
W
CNC
U
FG
CN1
CN1
24 VDC
1S-series
Servomotor
Power cable
Main circuit contactor
Surge suppressor
Servo error display
(*1)
(*1)
Main circuit power supply
Noise filter (*1)
3-phase 380 to 480 VAC, 50/60 Hz
MCCB (Breaker or Fuse)
(*2)
(*5)
(*4)
(*3)
1S-series Servo Drive
External
regeneration
resistor
Control power
supply
User-side
control
device
Control cable
Other E-CAT
devices
ECAT cable
ECAT cable
External Dynamic Brake resistor
Encoder cable
Ground to
10 Ω or less
Ground to
10 Ω or less
AC Reactor (*6)

Table of Contents

Related product manuals