EasyManua.ls Logo

Onkyo HTR-990 - Page 19

Onkyo HTR-990
115 pages
Print Icon
To Next Page IconTo Next Page
To Next Page IconTo Next Page
To Previous Page IconTo Previous Page
To Previous Page IconTo Previous Page
Loading...
TX-NR579/ TX-NA579/ HT-R690/ HT-R990
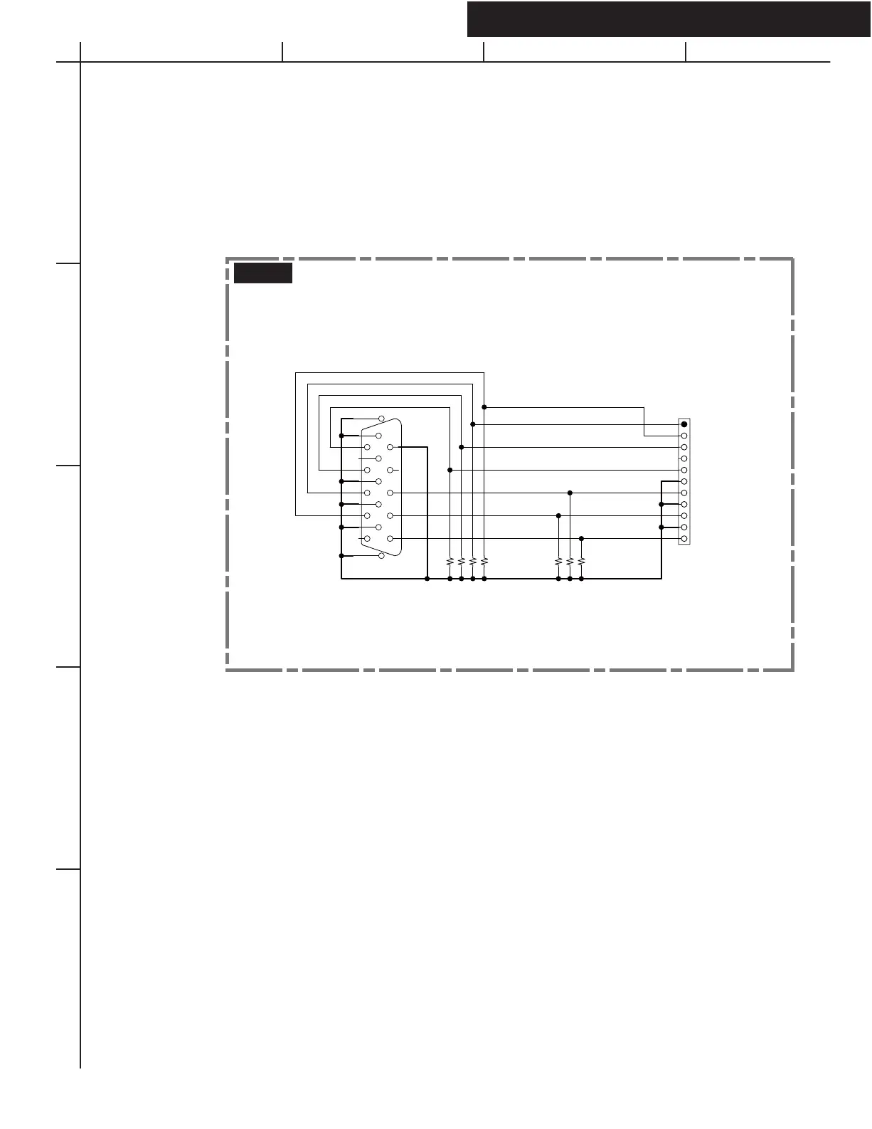
SCHEMATIC DIAGRAM/ BLOCK DIAGRAM-21
D-SUB (PC) SECTION
PART-21
VGASDA
GND
A_RED
A_GREEN
A_BLUE
VGASCL
A_VS
A_HS
BAETC-0646
FROM BAHDM-0684(PART-15)
FROM HDMI PWB
Model No. TX-NR609/TX-NA609/DTR-20.3/DTR-30.3/HT-R690/HT-R990
Schematic Diagram (PART-21) DSUB(PC) Section
P4901
MDS-15P-VO2(DSUB15)
17
10
15
9
14
8
13
7
12
6
11
16
1
2
3
4
5
R4901
1M
R4902
1M
R4903
1M
R4900
1M
R4904
NM
R4905
NM
R4906
NM
P4900A
NSCT-11P2402
1
2
3
4
5
6
7
8
9
10
11
U0041
A
1
2
3
4
5
BCD

Related product manuals