EasyManua.ls Logo

Onkyo TX-SR702 - Power Supply Section

Onkyo TX-SR702
131 pages
Print Icon
To Next Page IconTo Next Page
To Next Page IconTo Next Page
To Previous Page IconTo Previous Page
To Previous Page IconTo Previous Page
Loading...
TX-SR702/E
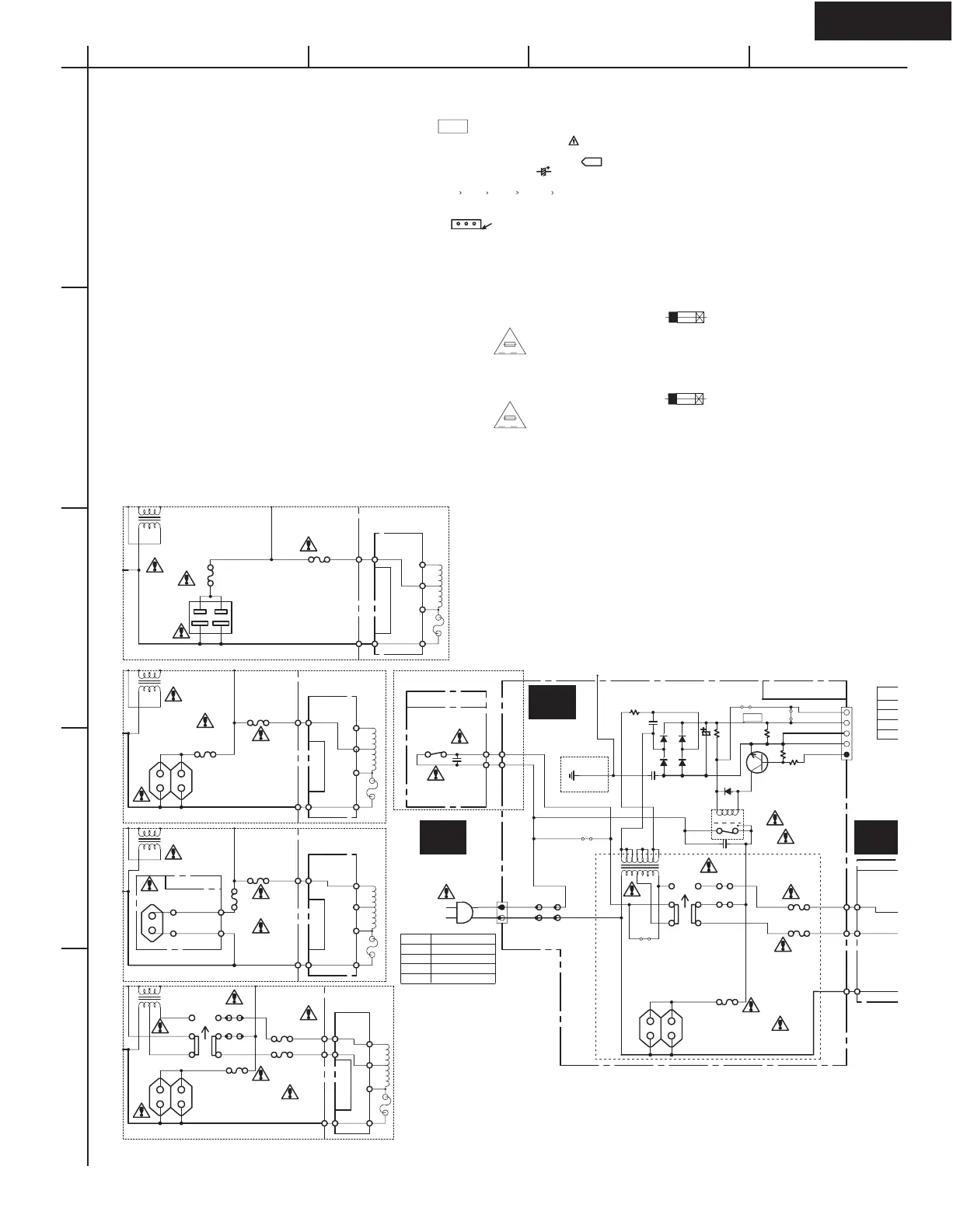
SCHEMATIC DIAGRAM 6
Power supply section
A
1
2
3
4
5
BCD
RL901
SP
T902
1
3
4
F901
F902
F901
F903
5A 125V
P902
AC OUTLETS
TOTAL 120W
1A MAX
P931B
TO NAAF-8397
(SCH. 4)
C923
102K
C921
223Z
C901
103M
/275VAC
C902
472M
/250VAC
D925
1SS133 OR 1SS270A
D923
D921-D924
GP104003E OR
RL1N4003
D924
D921
D922
J930
J929
J907
J910
R922
10K
R926
4.7K
R923
1K
R921
8.2
(1W)
R924
0
F902
F901
F903
T2.5AL250V
F902
F902
F903
T2.5AL250V
F903
T2.5AL250V
C922
470/25
P922A
P922
P916
5
7
1
3
7
1
3
5
7
1
3
5
5
5
7
1
3
P921
P921A
P912
P913
P911
P912A
P913A
P911A
P921
P921A
P922A
P922
3
1
P912
P911
P911A
P912A
P908
P915P909
P911
P911B
P913B
P912B
P912
P913
P911
P911B
P913BP913
P911
P911B
P912BP912
P925
P926
P925A
P926A
P918
P917
P917A
P918A Q921
KTC3199-GR
2SC1740S-R,S
2SC2458-GR
P901A
AC-H
AC-G
T902
D MODEL
1
4
T902
W MODEL
1
3
4
T902
G MODEL
1
4
T902
P MODEL
1
4
P901
S906
POWER
S902
VOLTAGE
SELECTOR
220V
120V
S902
VOLTAGE
SELECTOR
220V
120V
T901
THERMAL FUSE
T901
THERMAL FUSE
T901
THERMAL FUSE
T901
THERMAL FUSE
E921
MGK ONLY
(MEASURED WITH
BY MARK
ARE CRITICAL FOR
SAFETY
IDENTIFIED
NOTE
THE COMPONENTS
REPLACE ONLY
WITH PART
NUMBER SPECIFIED.
.
.
VOLTAGE VOLTMETER) IS
DC VOLTAGE.(NO INPUT SIGNAL)
.
ELECTROLYTIC CAPACITORS (
)
ARE IN F/WV.
.
ALL CAPACITORS ARE IN pF/50WV UNLESS OTHERWISE NOTED.
EX) 030-3pF 330-33pF 331-330pF 333-0.033uF
u
ALL RESISTORS ARE IN OHMS 1/4WATTS UNLESS OTHERWISE NOTED.
.
THE THICK LINES ON PC BOARD ARE THE PRINTING SIDE OF THE PARTS.
EX) PRINTING SIDE
CIRCUIT IS SUBJECT TO CHANGE FOR IMPROVEMENT.
.
.
VA
AGAINST FIRE HAZARD, REPLACE
FOR CONTINUED PROTECTION
AND RATING INDICATED.
ONLY WITH FUSE OF SAME MODEL
CAUTION
ATTENTION
VA
ET CALIBRATION COMME INDIQUE.
D'INCENDIE, REMPLACER UNIQUEMENT
PERMANENTE CONTRE LES RISQUES
AFIN D'ASSURER UNE PROTECTION
PAR UN FUSIBLE DE MEME MODEL
RATING REFER TO THE MARKING ADJACENT TO THE SYMBOL
FOR CONTINUED PROTECTION AGAINST FIRE
HAZARD,REPLACE WITH SAME MODEL FUSE. FOR FUSE
THIS SYMBOL LOCATED NEAR THE FUSE INDICATES
THAT THE FUSE USED IS SLOW OPERATING MODEL
E LENT. POUR UNE PROTECTION PERMANENTE,N'UTILISER
CE SYMBOLE INDIQUE QUE LE FUSIBLE UTLISE EST
INDIQUE LA QU LE PRESENT SYMBOL EST APPOSE.
QUE DES FUSIBLES DE MEME MODEL. CE DARNIER EST
P902
AC OUTLETS
TOTAL 100W MAX
*WR MODEL 1P ONLY
P902
AC OUTLETS
TOTAL 100W MAX
*PA MODEL 1P ONLY
P902A
AC OUTLET
TOTAL 100W MAX
10V
+10VSS
+10VS
MPUGND
MPUGND
POWER
T901
MOD
D
P
G
W
NPT-1504D
NPT-1504P
NPT-1504DG
NPT-1504DG
12A 250V
12A 250V
MODEL AC
D 120V/60HZ
P 230V50HZ
G 220V50HZ
W
120V/220V 50/60HZ
NAETC-8384
NAETC-8384NAETC-8384
NAETC-8384
NASW-8387
NAETC-838
4
TO NAAF-8397 P955 (SCH. 4)
NAPS-8382
NAETC-7978
EXCEPT MDD/MDC/MPA
F903
T2.5AL250V
P902
AC OUTLETS
TOTAL 100W MAX
*WR MODEL 1P ONLY
U10
U5
U7
Refer to left side views
about each models
12A 250V
T6.3AL250V
T6.3AL250V
T6.3AL250V

Other manuals for Onkyo TX-SR702

Related product manuals