EasyManua.ls Logo

Open Date IQ - Page 22

Default Icon
23 pages
Print Icon
To Next Page IconTo Next Page
To Next Page IconTo Next Page
To Previous Page IconTo Previous Page
To Previous Page IconTo Previous Page
Loading...
Page 22
12.10.12 Issue 1
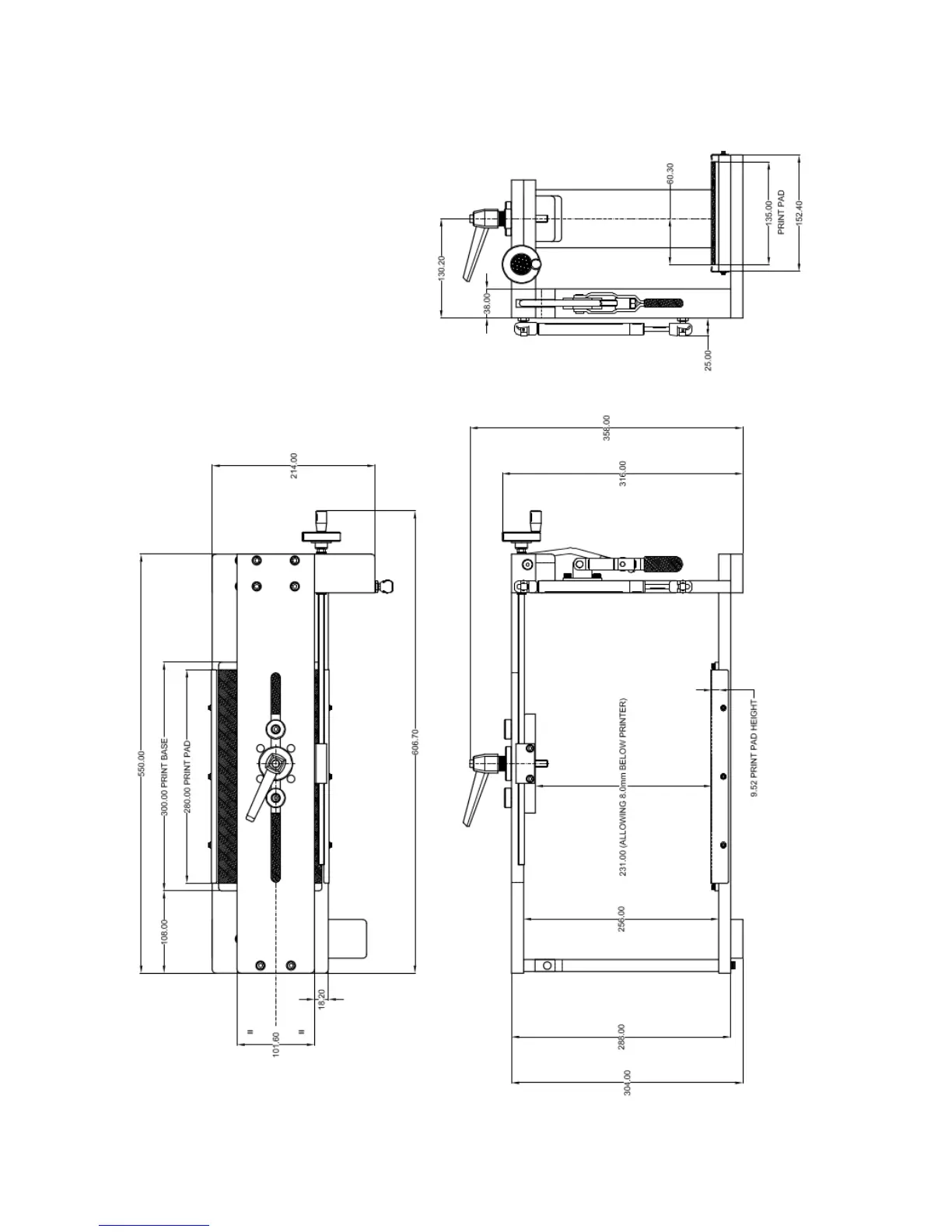
14.0 Thermocode iQ Standard Mounting Frame Dimensions

Related product manuals