EasyManua.ls Logo

Optimum OPTIdrill D17 Pro - D23 Pro | D26 Pro | D33 Pro - 400 V

Optimum OPTIdrill D17 Pro
Print Icon
To Next Page IconTo Next Page
To Next Page IconTo Next Page
To Previous Page IconTo Previous Page
To Previous Page IconTo Previous Page
Loading...
Version 1.0.3 - 2022-04-06 134 Originalbetriebsanleitung
D17Pro | D23Pro | D26Pro | D33Pro
DE | EN
D17Pro_D23Pro_D26Pro_D33Pro_parts.fm
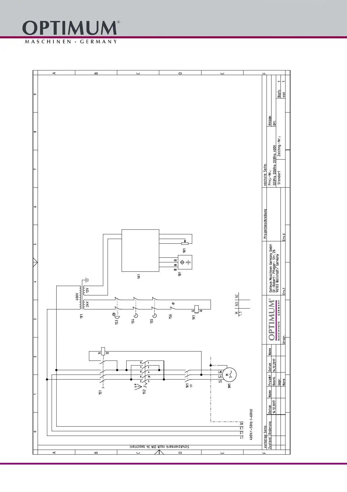
9.7 Schaltplan - Wiring diagram - D23Pro │D26Pro │D33Pro - 400V

Table of Contents

Related product manuals