EasyManua.ls Logo

Orion COMBI 3601VT - Page 53

Orion COMBI 3601VT
69 pages
Print Icon
To Next Page IconTo Next Page
To Next Page IconTo Next Page
To Previous Page IconTo Previous Page
To Previous Page IconTo Previous Page
Loading...
A
8
I
D
I
E
F
Aas
8
8
'
TP8OT
A
1
7
R802
A
12K
2W
weo3
1325
28
4
AMP
bel
0804
|_|
2804217
27K
aw
5
6
P80
||
A
j2)
R05
AW
12K
2W
WBO4
5
GREEN
AMP
2sceay7
Re08
AN
\-
2.7K
V4W
4
4
27K
AW
3
3
ACCESSORY
2
2
Tw10t
SBJU00025A
BT001
sugoeses
pay
TO
peaeye
20.7
1
1
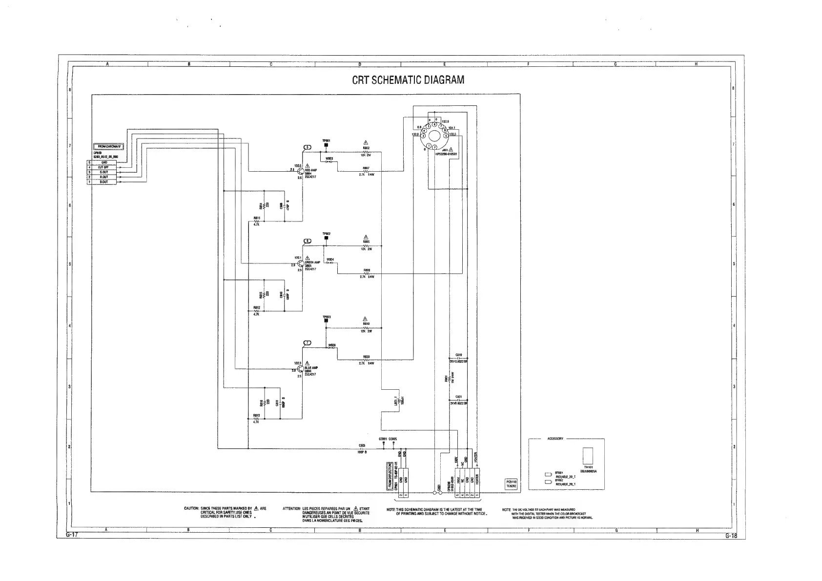
CAUTION:
SINCE
THESE
PARTS
MARKED
BY
A\
ARE
ATTENTION:
LES
PIECES
REPAREES
PAR
UN
A\
ETANT
NOTE:
THIS
SCHEMATIC
DIAGRAM
IS
THE
LATEST
AT
THE
TIME
NOTE:
THE
OC
VOLTAGE
AT
EACH
PART
WAS
MEASURED
CRITICAL
FOR
SAFETY.USE
ONES
DANGEREUSES
AN
POINT
DE
VUE
SECURITE
OF
PRINTING
AND
SUBJECT
TO
CHANGE
WITHOUT
NOTICE.
WITH
THE
DIGITAL
TESTER
WHEN
THE
COLOR
BROADCAST
DESCRIBED
IN
PARTS
LIST
ONLY
.
NUTILISER
QUE
CELLS
DECRITES
WAS
RECEIVED
IN
GOOD
CONDITION
AND
PICTURE
|S
NORMAL.
DANS
LA
NOMENCLATURE
DES
PIECES.
K
8
D
E F
a
E18