EasyManua.ls Logo

oventrop Hydrocontrol MTR - Page 9

oventrop Hydrocontrol MTR
84 pages
Print Icon
To Next Page IconTo Next Page
To Next Page IconTo Next Page
To Previous Page IconTo Previous Page
To Previous Page IconTo Previous Page
Loading...
"Hydrocontrol MTR" (lead-free) Technical Description
9
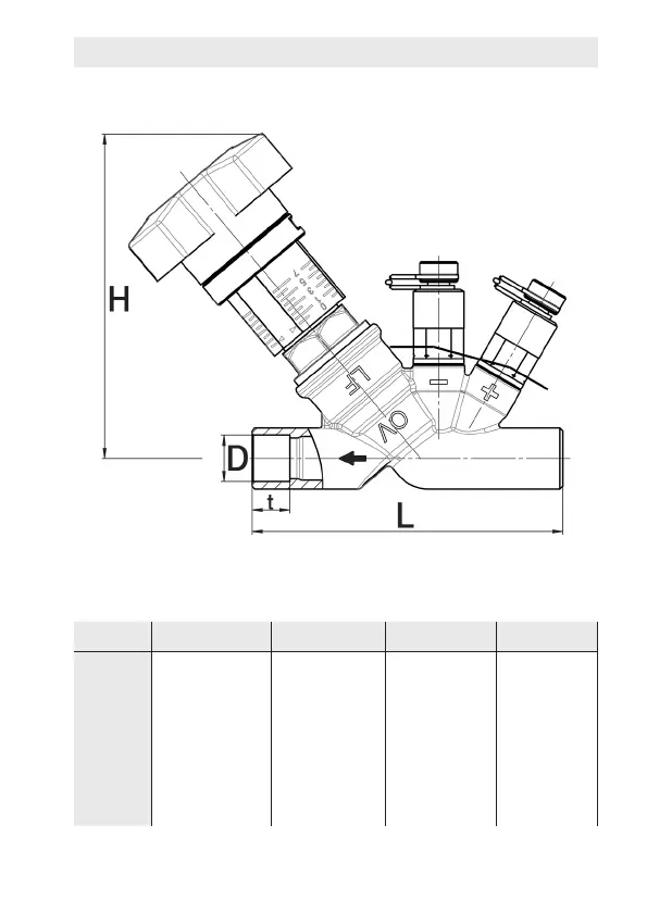
Fig. 4: Scale drawing of design with soldered connections
Dimensions (inches) according to nominal Diameter:
DN D t L H
15 0.627 0.51 4.21 4.49
20 0.877 0.75 4.80 4.57
25 1.128 0.91 5.04 4.69
32 1.378 0.98 5.79 5.35
40 1.628 1.10 6.38 5.51
50 2.128 1.34 7.56 5.94

Table of Contents

Related product manuals