EasyManua.ls Logo

Palfinger PTV 35 - 5 General View of Liftgate; General Figures

Palfinger PTV 35
47 pages
Print Icon
To Next Page IconTo Next Page
To Next Page IconTo Next Page
To Previous Page IconTo Previous Page
To Previous Page IconTo Previous Page
Loading...
PTV 33/44/55/66 Owner’s Manual
Rev. 1.0 12
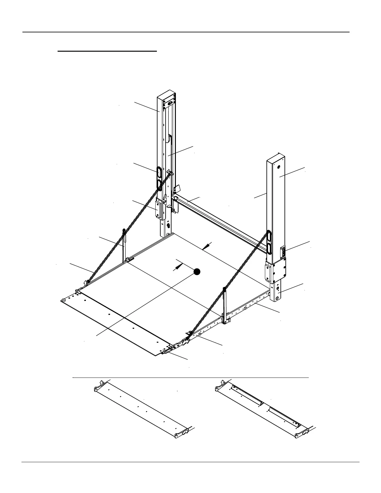
5 General View of Liftgate
5.1 General Figures
Tail Light
Left Side
Column
UHMW Dock
Bumpers
Chain
Arms
Support
Chains
Right Side
Column
Traverse
Main
Control
Switch
Load
Center
Left
Side
Runner
Right
Side
Runner
Aluminum
Retention
Ramp*
*Fixed Ramp
*Fixed Ramp
w/ Cart Stops
Ramp options shown below are steel platform ramps. Same options are available for aluminum platforms.
Platform
Tip Section
Platform
Main Section
Toggle Switch
(Not Shown)

Related product manuals