EasyManua.ls Logo

Panasonic CS-A18BD3P - Trouble Shooting

Panasonic CS-A18BD3P
102 pages
Print Icon
To Next Page IconTo Next Page
To Next Page IconTo Next Page
To Previous Page IconTo Previous Page
To Previous Page IconTo Previous Page
Loading...
If test operation does not proceed correctly
Carry out test operation after approximately 6 hours have passed
since the power was turned on (crankcase heater is energized). If
operation is started by using the remote control within 1 minute of
turning on the power, the outdoor unit settings will not be made
correctly and correct operation will not be possible.
If the following symptoms occur after turning on the power,
check the wiring connections once more.
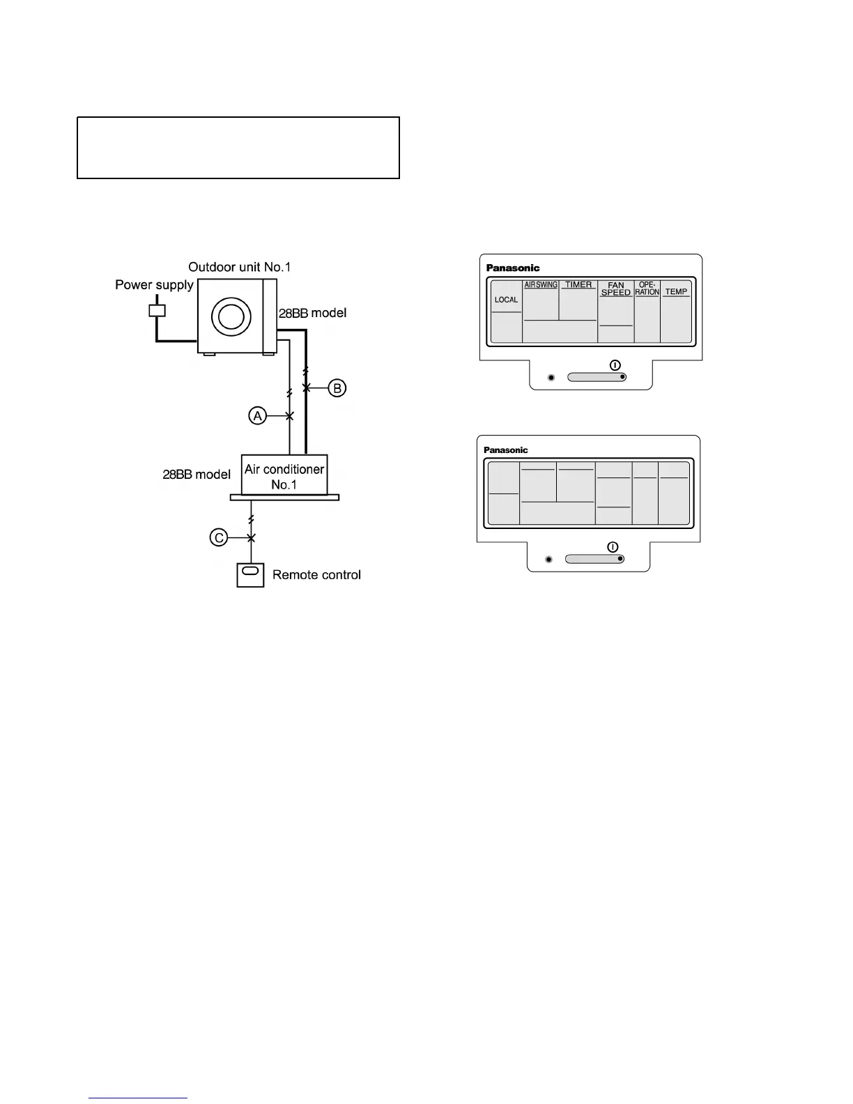
For standard installation
(System example)
1. The main power is turned on while the indoor-outdoor
transmission wires are not connected (open circuit at
section A)
Symptom:
Remote control unit . . . CHECK flashes
NOTE:
Indoor unit . . . LED2 on printed circuit board flashes
Outdoor unit . . . LED3 and LED7 on printed circuit
board flash
2. The main power is turned on while the indoor-outdoor
power supply wires are not connected (open circuit at
section B)
Symptom:
Remote control unit . . . Display of No power supply
NOTE:
Indoor unit ...Nodisplay
Outdoor unit . . . LED3 and LED7 on printed circuit
board flash
3. The main power is turned on while the remote control
unit connection cord is not connected (open circuit at
section C)
Symptom:
Remote control unit . . . Display of No power supply
NOTE:
Indoor unit . . . LED1 on printed circuit board stays
illuminated
Outdoor unit . . . LED1 on printed circuit board stays
illuminated
(When remote control display shows Power supply)
(When remote control display shows No power supply)
Remedy
1. Turn off the main power.
2. Connect the disconnected wire correctly.
3. Turn the main power back on.
4. After 1 minute, start operation using the remote control.
(Indoor unit . . . Operation will start according to the
remote control setting.)
(Outdoor unit ...Operation will start after 3-5 minutes.)
NOTE:
The CHECK display on the remote control and the
flashing of LEDs on the printed circuit boards will not occur
immediately. They will appear 3-6 minutes after the main
power is turned on.
24 TROUBLE SHOOTING
52

Related product manuals