EasyManua.ls Logo

Panasonic CS-PV9DKE

Panasonic CS-PV9DKE
60 pages
To Next Page IconTo Next Page
To Next Page IconTo Next Page
To Previous Page IconTo Previous Page
To Previous Page IconTo Previous Page
Loading...
14
CS-PV9DKE / CU-PV9DKE / CS-PV12DKE / CU-PV12DKE
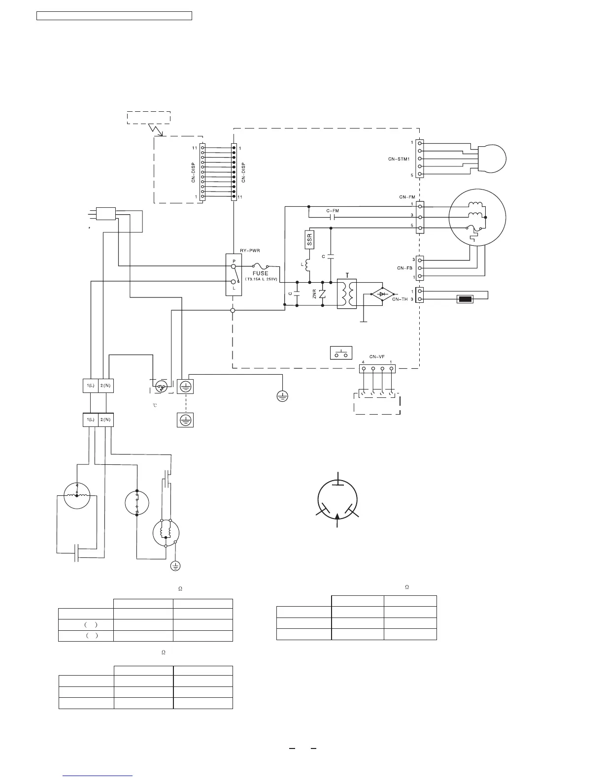
7 Wiring Diagram
C - R
C -S
INDOOR FAN MOTORRESISTANCE()
CONNECTING
Y-B M
Y-RA
CS-PV9DKE
CWA921098
324.0
290.5
COMPRESSORRESISTANCE()
CONNECTING
CWB092240
3.863
3.309
CWA951427
Y-B
Y-R
OUTDOOR FAN MOTORRESISTANCE()
CONNECTING
275
260
CS-PV12DKE
CWA921098
324.0
290.5
CWA951440
275
252
CWB092241
2.798
5.432
CU-PV9DKE CU-PV12DKE
CU-PV9DKE CU-PV12DKE
CS-PV9DKE/CU-PV9DKE
CS-PV12DKE/CU-PV12DKE
Wireless
Remote Control
Indicator
Complete
W
W
W
W
W
W
W
W
W
W
W
ELECTRONICCONTROLLER
BR
R
O
Y
P
B
R
Y
W
BR
BL
SENSOR(PIPINGTEMP.)
AUTOSWITCH
B
Y/G
W
AC(WHT)
THERMAL FUSE
102 (250V 3A)
Y/G
VENTILATION SIGNAL
TRANSMITTER(PURCHASE
ON SELECTION)
INDOOR UNIT
STEPPING
MOTOR
FAN MOTOR
COMPRESSOR TERMINAL
YELLOW
RED
S
BLUE
R
C
TRADE MARK
R : RED
BL : BLACK
B : BLUE
BR:BROWN
O : ORANGE
GRY : GREY
G : GREEN
Y : YELLOW
W : WHITE
Y/G : YELLOW/GREEN
P : PINK
P OWER SUPPLY
CORD
P OWER SUPPLY
CORD
AC /230V 50Hz
AC /230V 50Hz
O.L.P
FAN MOTOR
3
1
B
Capacitor
COMPRESSOR
Y/G
Y
B
R
CAPACITOR
B
Y
B
R
Y
OUTDOORUNIT
TERMINAL BOARD
OUTDOOR UNIT

Related product manuals