EasyManua.ls Logo

Panasonic CS-S9PKR - Indoor Unit Installation

Panasonic CS-S9PKR
126 pages
Print Icon
To Next Page IconTo Next Page
To Next Page IconTo Next Page
To Previous Page IconTo Previous Page
To Previous Page IconTo Previous Page
Loading...
38
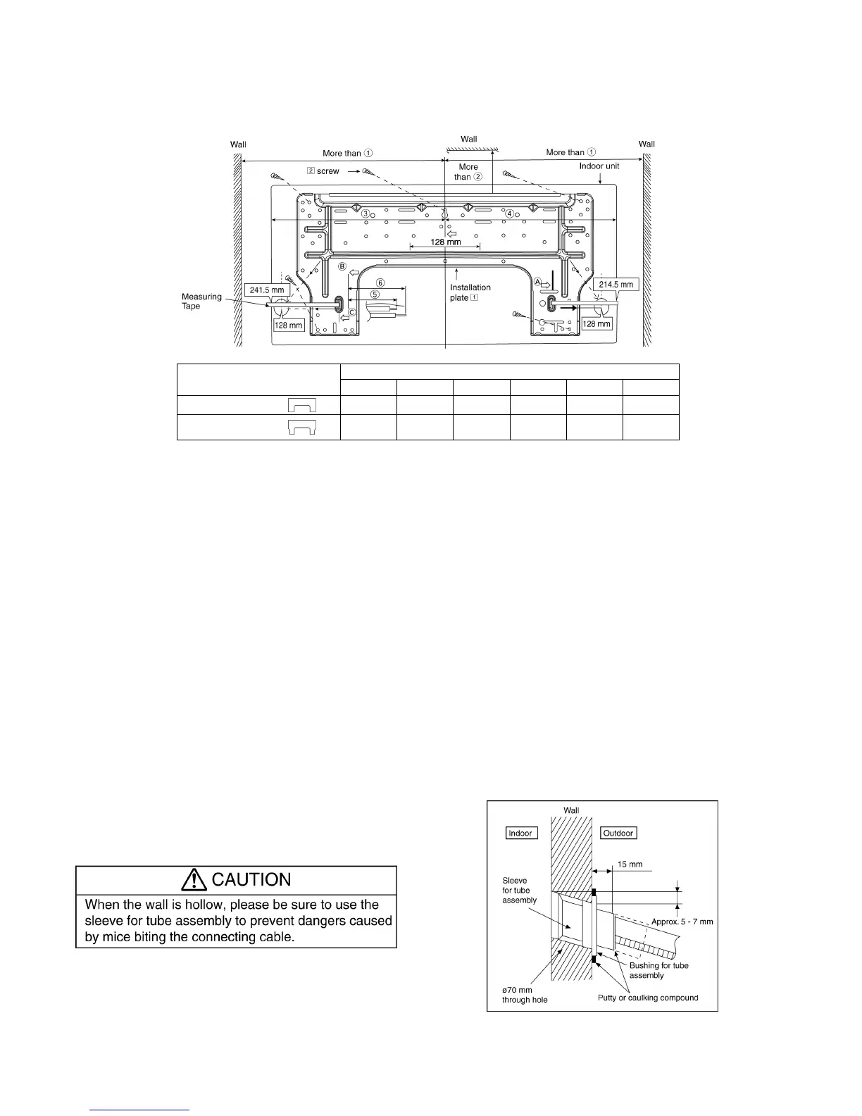
10.2 Indoor Unit
10.2.1 How to Fix Installation Plate
The mounting wall shall be strong and solid enough to prevent if from vibration.
Model
Dimension
1
2
3
4
5
6
S9***, S12***
490 mm 82 mm 439 mm 432 mm 43 mm 95 mm
S18***, S24***,
S28***
590 mm 82 mm 539 mm 532 mm 169 mm 219 mm
The center of installation plate should be at more than
1 at right and left of the wall.
The distance from installation plate edge to ceiling should more than
2.
From installation plate left edge to unit’s left side is
3.
From installation plate right edge to unit’s right is
4.
B : For left side piping, piping connection for liquid should be about
5 from this line.
: For left side piping, piping connection for gas should be about
6 from this line.
1 Mount the installation plate on the wall with 5 screws or more (at least 5 screws).
(If mounting the unit on the concrete wall, consider using anchor bolts.)
o Always mount the installation plate horizontally by aligning the marking-off line with the thread and using
a level gauge.
2 Drill the piping plate hole with ø70mm hole-core drill.
o Line according to the left and right side of the installation plate. The meeting point of the extended line is
the center of the hole. Another method is by putting measuring tape at position as shown in the diagram
above. The hole center is obtained by measuring the distance namely 128 mm for left and right hole
respectively.
o Drill the piping hole at either the right or left and the hole should be slightly slanting to the outdoor side.
10.2.2 To Drill a Hole in the Wall and Install a Sleeve of Piping
1 Insert the piping sleeve to the hole.
2 Fix the busing to the sleeve.
3 Cut the sleeve until it extrudes about 15 mm
from the wall.
4 Finish by sealing the sleeve with putty or
caulking compound at the final stage.

Table of Contents

Related product manuals