EasyManua.ls Logo

Panasonic CU-3TZ52TBE - 6 Block Diagram

Panasonic CU-3TZ52TBE
85 pages
Print Icon
To Next Page IconTo Next Page
To Next Page IconTo Next Page
To Previous Page IconTo Previous Page
To Previous Page IconTo Previous Page
Loading...
19
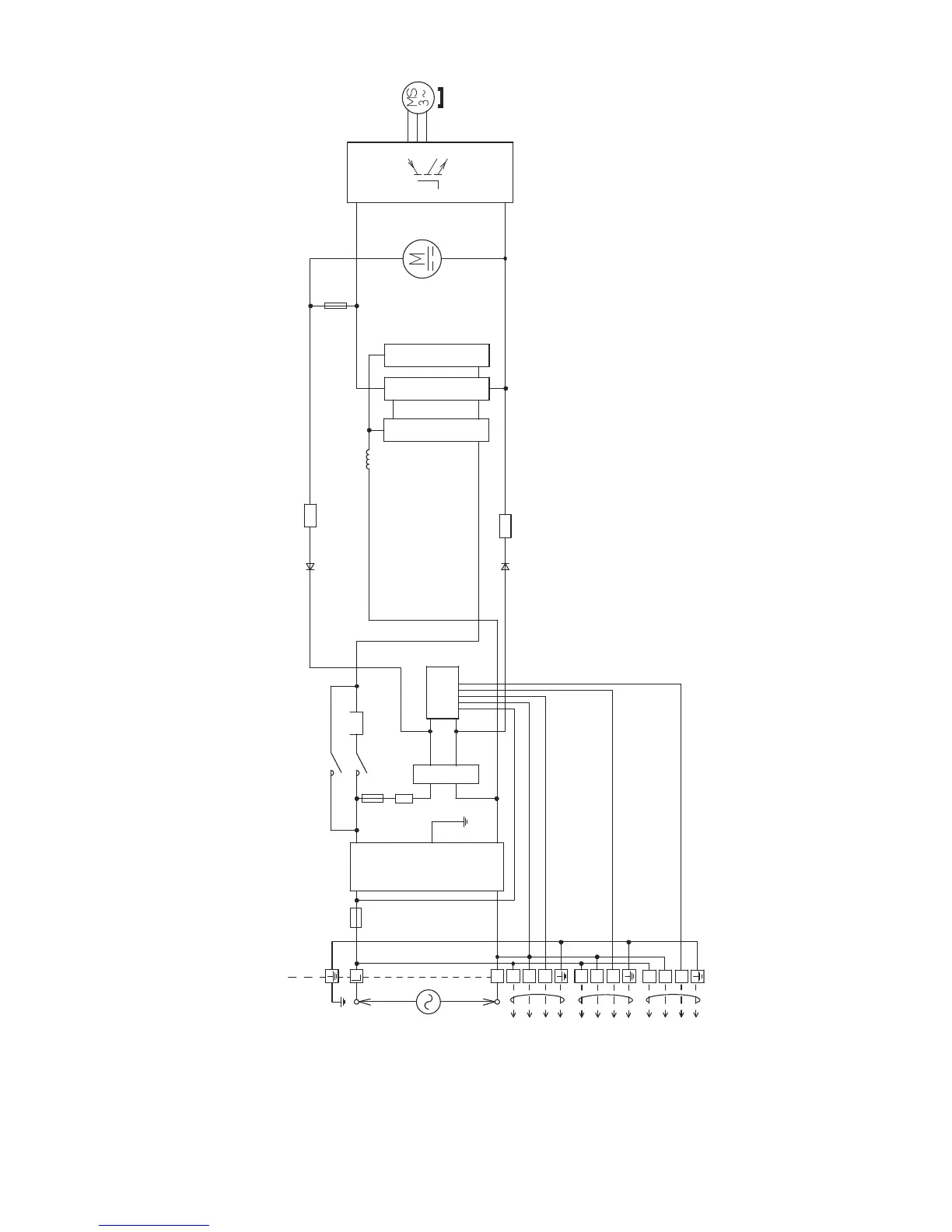
6. Block Diagram
FUSE 1
PFC CIRCUIT
CAPACITOR CIRCUIT
RECTIFICATION CIRCUIT
RECTIFICATION
CIRCUIT
REACTOR
NTC
NTC
PTC
SC
RY - PWR
RY - AC
FUSE 2
NOISE
FILTER
FUSE 401
NTC
SINGLE PHASE
POWER SUPPLY
TO INDOOR UNIT A
TO INDOOR UNIT B
TO INDOOR UNIT C
N
1
2
3
1
2
3
1
2
3
OUTDOOR UNIT

Table of Contents

Related product manuals