EasyManua.ls Logo

Panasonic CU-MA190KE - Dimensions

Panasonic CU-MA190KE
56 pages
Print Icon
To Next Page IconTo Next Page
To Next Page IconTo Next Page
To Previous Page IconTo Previous Page
To Previous Page IconTo Previous Page
Loading...
– 12 –
MAC9509078C2
CS-MA90KE
A
CU-MA180K
985
CU-MA240K
1045
CU-MA190K
1015
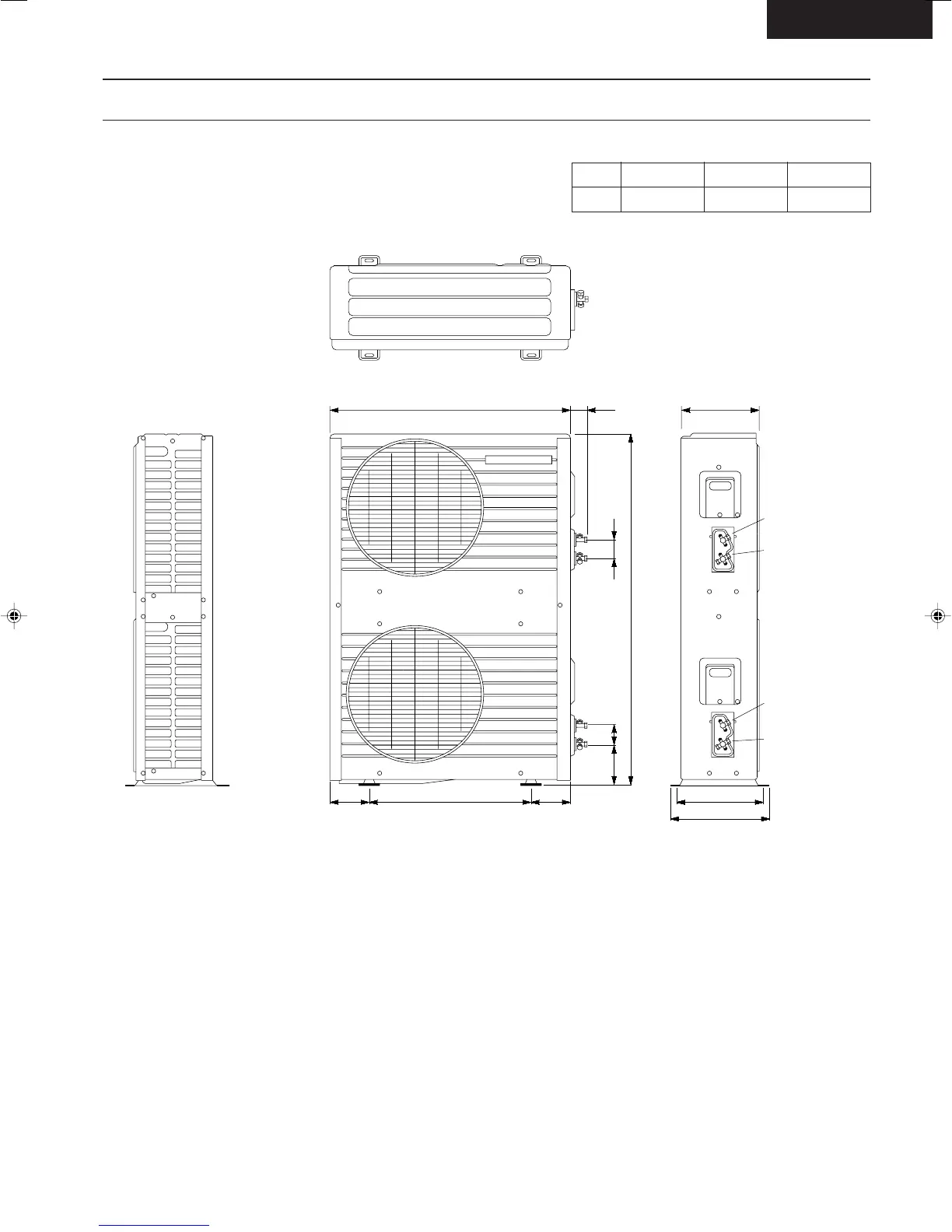
CU-MA180KE, CU-MA190KE, CU-MA240KE
67104
105105 570 280
312
67
A
780 57 245
Gas side
3-way valve
Liquid side
2-way valve
Unit A
Unit B
2-way valve
Liquid side
3-way valve
Gas side
Dimensions
A
Untitled-4 6/30/00, 7:51 AM12

Related product manuals