EasyManua.ls Logo

Panasonic MCDLN35SE - Ambient Temperature and Operating Range

Panasonic MCDLN35SE
69 pages
Print Icon
To Next Page IconTo Next Page
To Next Page IconTo Next Page
To Previous Page IconTo Previous Page
To Previous Page IconTo Previous Page
Loading...
No. SX-DSV03015 - 60 -
Motor Business Unit, Panasonic Corporation
SAFETY PRECAUTIONS
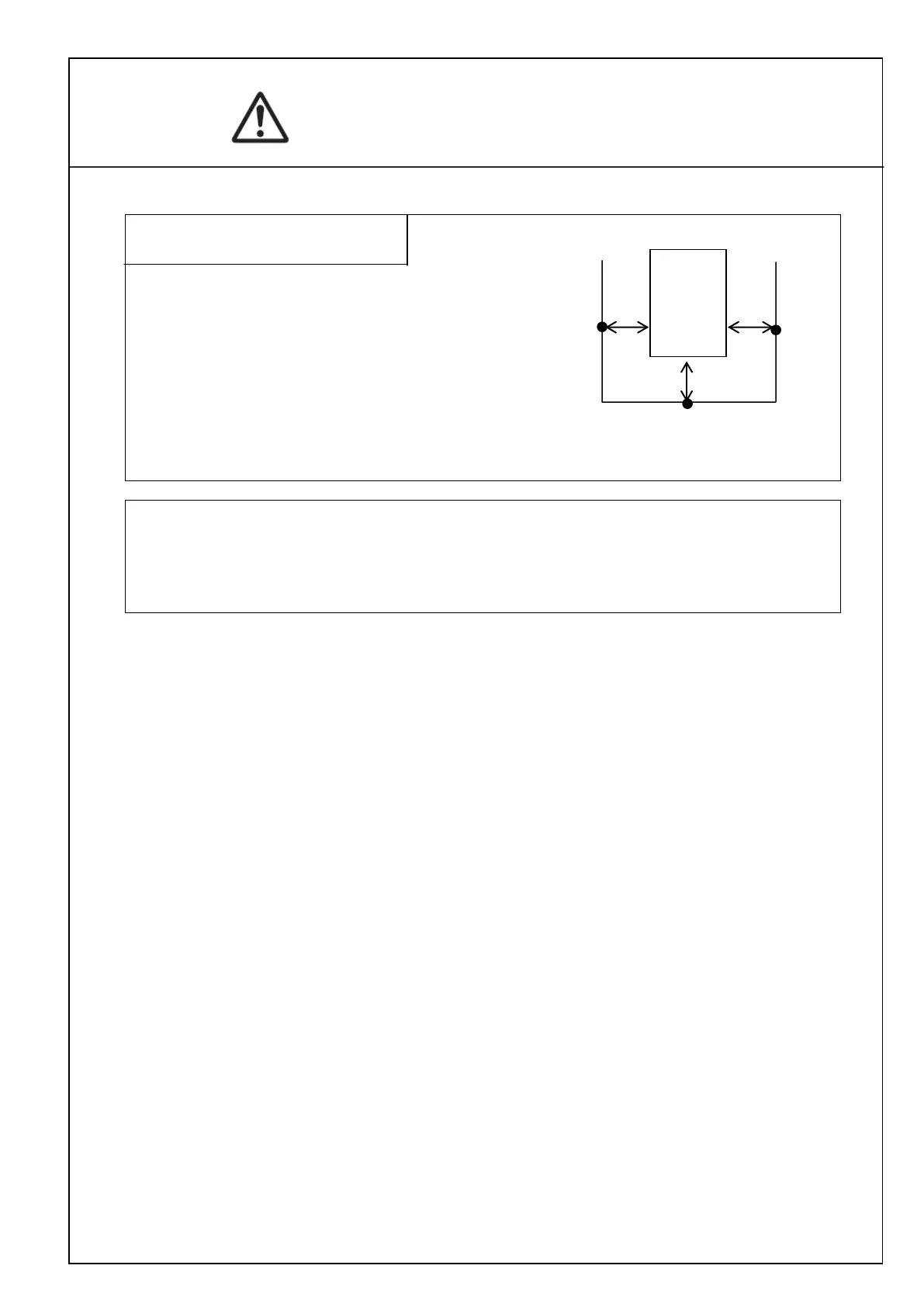
Servo driver's ambient temperature
The driver's service life significantly depends on the
ambient temperature.
Make sure that the driver's ambient temperature
(at 5 cm distant from the driver) does not exceed the
operating temperature range.
Operating temperature range: 0 to 55
°
C
We have made the best efforts to ensure quality of this product. However, application of external
noise( include radiation) or static electricity, or a defect of the input power supply, wiring or components may
cause the servo driver to operate beyond the preset conditions. Therefore, you should exercise thorough
caution to ensure safety against an unexpected operation.
5 cm
5 cm
5 cm
Servo drive

Related product manuals