EasyManua.ls Logo

Panasonic Minas A4 Series - Wiring of the Main Circuit (a to D-Frame); Wiring of the Main Circuit (E and F-Frame)

Panasonic Minas A4 Series
26 pages
Print Icon
To Next Page IconTo Next Page
To Next Page IconTo Next Page
To Previous Page IconTo Previous Page
To Previous Page IconTo Previous Page
Loading...
– B17 –– B16 –
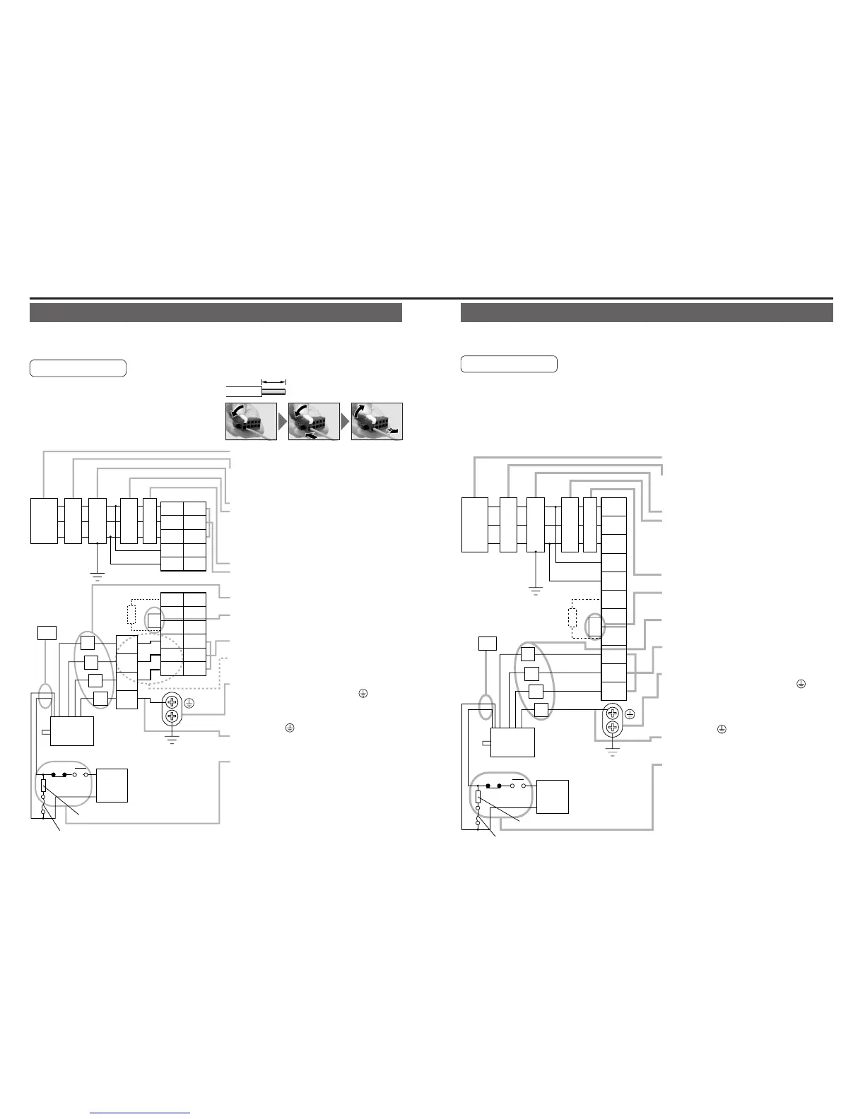
Red
Black
Green
yellow
Motor
Surge absorber
DC
24V
White
NFB
Power
supply
DC power supply
for brake
NF MC
1
2
3
4
U
V
W
E
L1C
L3
L2
L1
L2C
RB1
RB3
RB2
U
V
W
2
3
4
5
1
6
5
4
3
2
1
CN X1
CN X2
L
Yellow
(X2)
Fuse (5A)
Ground resistance : 100 max.
For applicable wire,
refer to P.B14 and B15.
Check the name plate of the driver for power
specifications.
Provide a circuit breaker, or a leakage breaker.
The leakage breaker to be the one designed for
"Inverter" and is equipped with countermeasures
for harmonics.
Provide a noise filter without fail.
Provide a surge absorber to a coil of the Magneti
c
Contactor. Never start/stop the motor with this
Magnetic Contactor.
Connect a fuse in series with the surge absorber
.
Ask the manufacturer of the Magnetic Contactor
for the fuse rating.
Provide an AC Reactor.
Connect L1 and L1C, and L3 and L2C at singl
e
phase use (100V and 200V), and don't use L2.
Match the colors of the motor lead wires to those of
the corresponding motor output terminals (U,V,W).
Don't disconnect the shorting cable between RB2
and RB3 (C and D frame type). Disconnect this only
when the external regenerative register is used.
Avoid shorting and ground fault. Don't
connect the main power.
*
Connect pin 3 of the connector on the amplifier
side with pin 1 of the connector on the motor side.
Earth-ground this.
Connect the protective earth terminal ( ) of the
driver and the protective earth (earth plate) of the
control panel without fail to prevent electrical shock.
Don't co-clamp the earth wires to the protective
earth terminal ( ) . Two terminals are provided.
Don't connect the earth cable to other
inserting slot, nor make them touch.
Compose a duplex Brake Control Circuit so that
the brake can also be activated by an external
emergency stop signal.
The Electromagnetic Brake has no polarity.
For the capacity of the electromagnetic brake and
how to use it, refer to P.B45, "Specifications of
Built-in Holding Brake".
Provide a surge absorber.
Connect a 5A fuse in series with the surge absorber
.
3. System Configuration and Wiring
Wiring of the Main Circuit (A to D-frame)
Wiring should be performed by a specialist or an authorized personnel.
Do not turn on the power until the wiring is completed.
Tips on Wiring
1)Peel off the insulation cover of the cable.
(Observe the dimension as the right fig. shows.)
2)Insert the cable to the connector detached
from the driver.(See P.B18 for details.)
3)Connect the wired connector to the driver.
8~9mm
Surge absorber
Motor
DC
24V
Power
supply
DC power supply
for brake
NFB
NF MC
L1
U
V
W
E
L2
L3
r
t
P
B1
B2
U
V
W
L
Ground resistance : 100 max.
For applicable wire,
refer to P.B14 and B15.
Red
Black
Green
yellow
Yellow
(X2)
Check the name plate of the driver for power
specifications.
Provide a circuit breaker, or a leakage breaker.
The leakage breaker to be the one designed for
"Inverter" and is equipped with countermeasures
for harmonics.
Provide a noise filter without fail.
Provide a surge absorber to a coil of the
Magnetic Contactor. Never start/stop the moto
r
with this Magnetic Contactor.
Connect a fuse in series with the surge absorber
.
Ask the manufacturer of the Magnetic Contactor
for the fuse rating.
Provide an AC Reactor.
Don't disconnect the short bar between B1 and
B2. Disconnect this only when an external
regenerative register is used.
Match the colors of the motor lead wires to those
of the corresponding motor output terminals
(U,V,W).
Avoid shorting and ground fault.
Don't connect the main power.
Earth-ground this.
Connect the protective earth terminal ( ) of the
driver and the protective earth (earth plate) of the
control panel without fail to prevent electrical
shock.
Don't co-clamp the earth wires to the protective
earth terminal ( ) . Two terminals are provided
.
Don't connect the earth cable to other
inserting slot, nor make them touch.
Compose a duplex Brake Control Circuit so that
the brake can also be activated by an external
emergency stop signal.
The Electromagnetic Brake has no polarity.
For the capacity of the electromagnetic brake an
d
how to use it, refer to P.B47, "Specifications of
Built-in Holding Brake".
Provide a surge absorber.
Connect a 5A fuse in series with the surge absorber
.
White
Fuse (5A)
Wiring of the Main Circuit (E and F-frame)
• Wiring should be performed by a specialist or an authorized personnel.
• Do not turn on the power until the wiring is completed.
Tips on Wiring
1)Take off the cover fixing screws, and detach the terminal cover.
2)Make wiring
Use clamp type terminals of round shape with insulation cover for wiring to the termi-
nal block. For cable diameter and size, rater to "Driver and List of Applicable Periph-
eral Equipments" (P.B14 and B15).
3)Attach the terminal cover, and fix with screws.
Fastening torque of cover fixed screw in less than 0.2 N
m.

Other manuals for Panasonic Minas A4 Series

Related product manuals