EasyManua.ls Logo

Panasonic NA-FS80X1 - Controller Input • Output Measurement

Panasonic NA-FS80X1
41 pages
To Next Page IconTo Next Page
To Next Page IconTo Next Page
To Previous Page IconTo Previous Page
To Previous Page IconTo Previous Page
Loading...
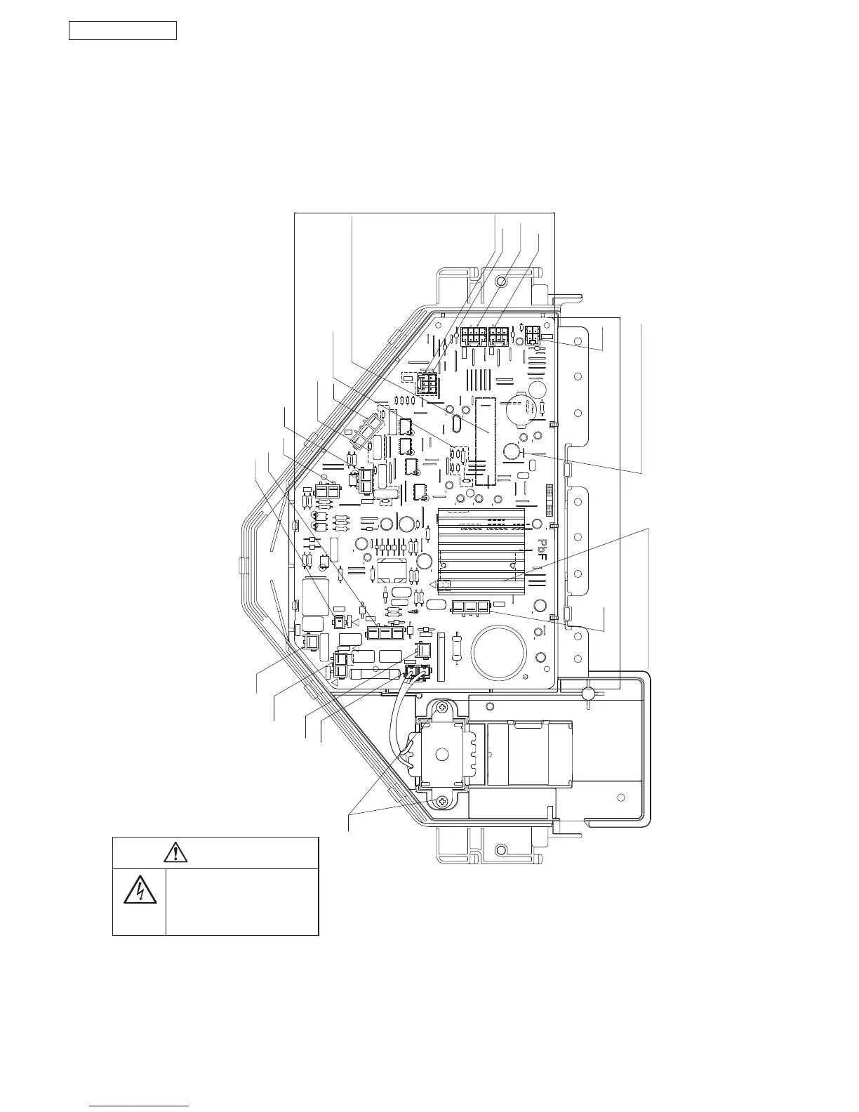
- 33 -
NA-FS80X1 / FS90X1
10.2 Controller input • Output Measurement
Beware of electric
shock at a lead wire
of charge unit during
measurement.
( ) is a color of the connectors
Disconnect connectors for measuring resistance
Beware
of Electric
Shock
Re-confirm the following output level and resistance at the time of controller replacement.
Measure output level by tester while switching a load part
Value mentioned below may be changed depend on power supply voltage or an error of the tester.
For the motor measurement, apply 3 combinations of [red - blue] [red - purple] [blue - purple]
to confirm normal value.
Value of the push switch measurement is 220~240V without pushing power button and 0V to push the button once.
Warning
Red-
White
Yellow
Red-
White
Blue-
White
(White)
Gray-
Black
CN101
CN105
C101
ZNR108
ZNR105
Yellow
L201
DB101
DANGER
W2449-7JP06 ETS-453
C121
CN301
C328
C329
C332
J101
J102
J152
J3
J51
C323
IC702
J2
IC302
1
8
85
14
4
5
J1
R102
BlueRed
Purple
Yellow
Yellow -
Red
Yellow -
White
R121
R122
J104
J103
8A
2A
FUSE102
R101
CN107
CN104
D202
D201
FUSE121
C123
T121
C321
R139
IC301
J158
J156
J155
J154
J107
J109
J106
J159
J54
C406
IC401
N
17
14
J64
J116
BZ201
8
J153
R134
C141
8
1
J55
J62
J63
C344
C303
R728
C302
C301
C407
C232
R252
L251
J57
J5
C231
J67
J8
J56
J59
J58
J60
J167
61
80
41 40
J9
J118
C434
Light-
Blue
J69
J120
L432
J119
J121
J122
J123
J14
IC1
1
20
21
J111
J112
J114
J115
60
J170
1
4
8
C205
5
8
8
5
5
1
1
1
J66
J117
4
85
4
4
PTR203
PTR204
54
J157
R132
J52
R124
R123
D128
J105
D125
D124
D121
C127
R138
C125
D122
R125
R205
C130
C209
R212
R213
C126
J4
ZD121
R136
R137
+~
~-
(Yellow)
(Brown)
Screw
(Orange)
The Lead IC301 Must Be Covered With Potting.
Manufactured Date And Model PWB Number Should Be
Indicated On The Printed Wiring Board
Manufactured Date And Model PWB Number Should Be
Indicated On The Potting
(White)
(White)
(White)
(White)
(White)
(Gray)
(Blue)
(Red)
Model Selection
(Blue)
(Red)
Refer To The
Below Table
Refer To The
Below Table
232.5
+
-
0.2
163
+
-
0.1
1
1 1
1
White
RL203
R105
R104
Q101
White
CN108
J151
1
2
4
D102
R129R126
J53
J110
C128
J108
J161
J162
J165
J168
C208
R224
R223
R222
J171
J71
J16
J180
J126
L406
J13
J179
J15
L405
R221
J10
J169
J163
PTR201
J61
J113
R729
R725
R726
R730
R727
PTR202
IC701
J65
J6
J7
X701
C139
C135
J12
J177
J124
J74
J72
Pink
Pink
R239
Black
L431
J175
J176
J172
J173
J174
J125
J11
R201
R232
R130
D101
Q204
23
4
4
Q203
R214
J160
4
1
Purple
C207
J68
R204
Brown
C206
3
2
Gray
R203
R202
Q202
R210
R211
R215
Orange
J164
J166
3
1
1
2
3
ZNR109
Gray
CN201
Orange
Brown
Black
L202
Light-
Blue
Brown
Yellow
White
Blue
CN205
Brown-
White
White
CN203
Red
CN202
White-
Red
White-
Blue
Blue
CN701
J178
J70
White
Red
J73
Red
Brown
Purple
Blue-White
Light blue
CN404
CN702
Orange
White
White
CN402

Other manuals for Panasonic NA-FS80X1

Related product manuals