EasyManua.ls Logo

Panasonic PT-VW330U - Installation and Usage Safety; Installation and Ventilation Requirements; Lens, Light, and Foreign Object Safety

Panasonic PT-VW330U
12 pages
To Next Page IconTo Next Page
To Next Page IconTo Next Page
To Previous Page IconTo Previous Page
To Previous Page IconTo Previous Page
Loading...
S P E C F I L E
PT-VW330
LCD Projector
As of February 2012
SFL11M012-3
5 / 1 2
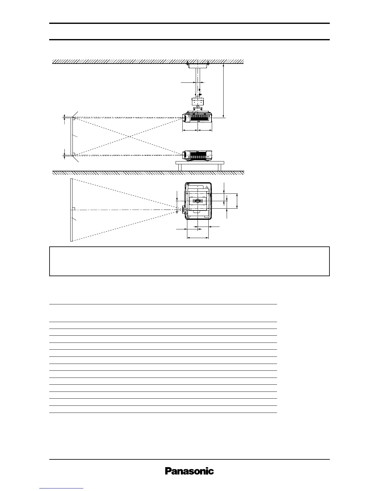
Standard setting-up position
Projected image
Lower edge of projected image
Upper edge of projected image
Projected image
911 1,481
(35-7/8 58-5/16)
Adjustable in
30-mm
(1-3/16-inch) step.
145
38
(5-23/32)
132
(5-3/16)
(1-1/2)
70
(2-3/4)
100
(3-15/16)
100
(3-15/16)
200
(7-7/8)
140
(5-1/2)
70
(2-3/4)
82
(3-7/32)
L
L
L
HH
unit : mm (inch)
NOTE:
Illustrations show the projector
installed using optional ceiling mount
bracket ET-PKV100H and bracket
assembly ET-PKV100B.
This illustration is not drawn to scale.
0.76 m
1.02 m
1.27 m
1.52 m
1.78 m
2.03 m
2.29 m
2.54 m
3.05 m
3.81 m
5.08 m
6.35 m
7.62 m
0.7
1.0
1.3
1.5
1.8
2.0
2.3
2.5
3.1
3.8
5.1
6.4
7.7
1.2
1.6
2.0
2.5
2.9
3.3
3.7
4.1
4.9
6.2
8.0
8.0
8.0
0.01
0.01
0.01
0.02
0.02
0.02
0.02
0.03
0.03
0.04
0.05
0.07
0.08
30˝
40˝
50˝
60˝
70˝
80˝
90˝
100˝
120˝
150˝
200˝
250˝
300˝
/
/
/
/
/
/
/
/
/
/
/
/
/
(2.3)
(3.3)
(4.3)
(4.9)
(5.9)
(6.6)
(7.5)
(8.2)
(10.2)
(12.5)
(16.7)
(21.0)
(25.3)
(3.9)
(5.2)
(6.6)
(8.2)
(9.5)
(10.8)
(12.1)
(13.5)
(16.1)
(20.3)
(26.2)
(26.2)
(26.2)
(0.03)
(0.03)
(0.03)
(0.07)
(0.07)
(0.07)
(0.07)
(0.10)
(0.10)
(0.13)
(0.16)
(0.23)
(0.26)
*
*
*
*
*
*
Projection size
[diagonal]
Projection distance [L]
Min [wide] Max [telephoto]
P
Height from the edge of screen
to center of lens [H]
Projection distance for 16:10 aspect ratio screen
unit: meters (feet)
NOTE:
The value for L (distance to screen) varies slightly depending on the zoom lens characteristics.
At the shortest projection distance, the zoom lens characteristics may cause slight image distortion.
*
Lens performance cannot be guaranteed for projection sizes larger than 8.0 m (26.2 ft).
C a u t i o n :
All construction work should be done by a qualified technician.
When mounting to the ceiling, use the special mounting bracket. To prevent the projector from swaying or drop-
ping, attach the wire that is included with the projector between the mounting bracket and the ceiling.

Other manuals for Panasonic PT-VW330U

Related product manuals