EasyManua.ls Logo

Panasonic TH-42PA60H

Panasonic TH-42PA60H
162 pages
To Next Page IconTo Next Page
To Next Page IconTo Next Page
To Previous Page IconTo Previous Page
To Previous Page IconTo Previous Page
Loading...
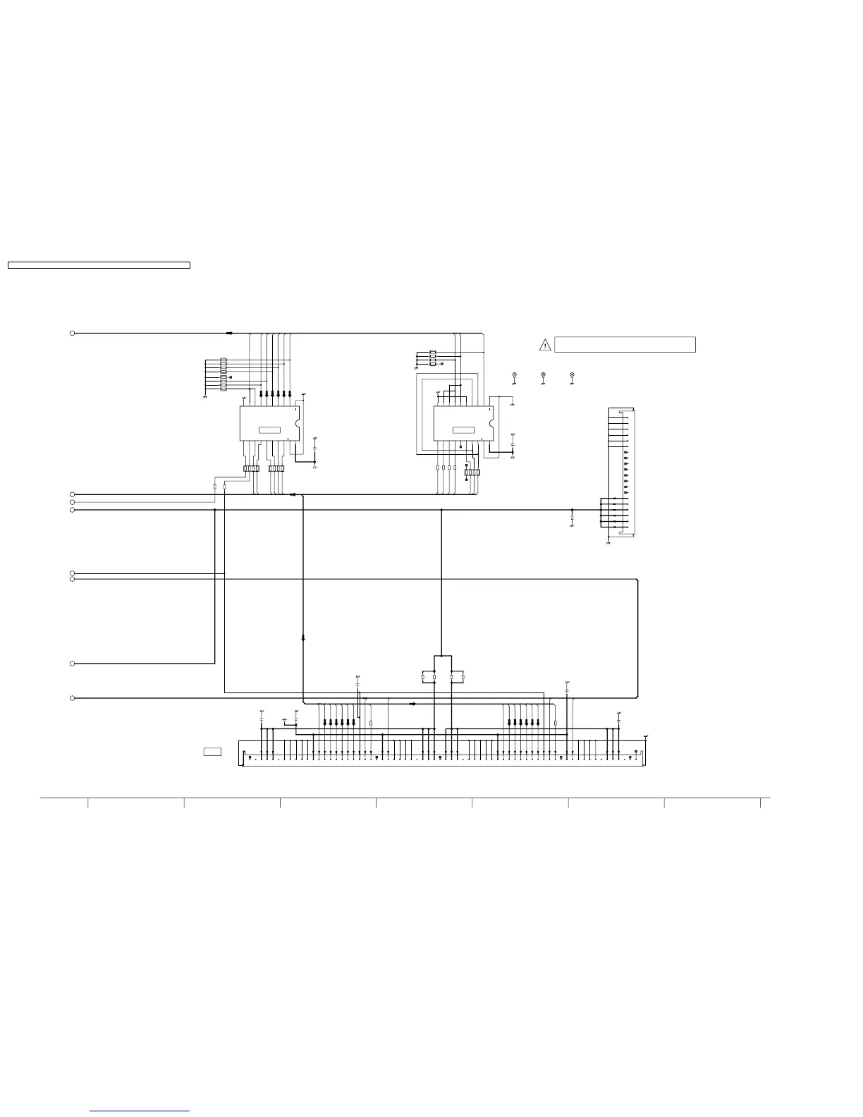
14.46. C1-Board (2 of 2) Schematic Diagram (37inch)
TERM
SIDE
SIDE
TERM
AB_LED3
AB_CLRD
AB_ODED1
AB_CLRD
AB_ODED1
AB_DDA9
AB_DDB9
AB_DDC9
AB_CLK_N2
AB_DDA9
AB_DDA8
AB_DDA8
AB_DDB9
AB_DDB8
AB_DDB8
AB_CLK_P2
AB_DDC8
AB_DDC9
AB_DDC8
AB_LED3
AB_DDA8
AB_DDC9
AB_DDA9
AB_DDB9
AB_CLK_N2
AB_CLK_N1
AB_CLK_P1
AA_DDC8
AB_LED3
AB_LED2
AB_LED1
AB_CLK_P2
AB_DDC8
AB_DDB8
AA_CLK_N
AA_DDA8
AA_DDC9
AA_DDB9
AA_DDA9
AA_PCD1
AA_DDB8
AA_CLK_P
AA_LED
AB_PCD1_1
AB_PCD1_2
R7150
EXB38V102JV
R7165
0
R7158
6.8
R7159
6.8
CB3
1
3
4
5
7
8
9
10
11
12
13
14
15
16
17
18
19
20
21
22
23
24
25
26
27
28
29
31
32
33
34
35
36
37
39
40
41
42
43
44
45
46
47
48
49
50
51
52
53
54
55
57
58
59
60
61
63
64
65
67
68
56
C12
1
2
3
4
5
6
7
8
9
10
11
12
13
14
15
16
17
18
19
20
R7122
EXB38V470JV
R7146
EXB38V470JV
R7124
EXB38V470JV
R7117 22
C7129
16V
0.1u
R7154
47
C1_5V
ZA7103
K4CD01000013
R7118
220k
C7136
16V
1u
ZA7102
K4CD01000013
R7157
6.8
R7116 22
C1_5V
C7135
100V
0.47u
R7142
EXB38V102JV
C0JBAZ002692
IC7102
G1
1
2
A1
3
A2
4
A3
5
A4
6
A5
7
A6
8
A7
9
A8
10
GND
11
Y8
12
Y7
13
Y6
14
Y5
15
Y4
16
Y3
17
Y2
18
Y1
19
G2
20
Vcc
C1_5V
R7113 22
R7152
EXB38V102JV
R7160
47
R7164
0
C7139
16V
0.1u
ZA7101
K4CD01000013
C7137
100V
0.47u
C0JBAZ002692
IC7101
G1
1
2
A1
3
A2
4
A3
5
A4
6
A5
7
A6
8
A7
9
A8
10
GND
11
Y8
12
Y7
13
Y6
14
Y5
15
Y4
16
Y3
17
Y2
18
Y1
19
G2
20
Vcc
R7156
6.8
C7132
16V
1u
C7133
50V
100p
R7112 22
GND
A1
GND
GND
FDET
LEN
GND
A4
GND
VDD2
VDD2
A4
FS
VDD1
VDD2
A1
GND
VDD2
GND
CLR
BLK
NC
FX
A2
NC
A3
VDD1
A6
BLK
GND
NC
NC
A3
A2
A6
DM
VDD2
GND
VDD2
NC
GND
VDD2
A5
CLR
DM
GND
VDD2
NC
VDD1
VDD1
GND
GND
ODE
A5
VDD2
GND
VDD2
GND
FX
NC
VDD2
GND
ODE
NC
FS
LEN
VDD2
Vda75V
Vda75V
Vda75V
Vda75V
NC
NC
NC
GND
GND
GND
NC
NC
NC
NC
GND
GND
GND
NC
Vda 75V
Vda 75V
FDET1
DRIVER
PANEL DATA
TO
CB3
BUFFER
BUFFER
C2-BOARD
TO
(C22)
149 13 15121110
8
C1-BOARD TNPA3792AB (2/2)
1
2
3
4
5
6
7
8
TH-37PA60H/M
C1-Board (2 of 2) Schematic Diagram
TH-37PA60H/M
C1-Board (2 of 2) Schematic Diagram
TH-37PA60H / TH-37PA60M / TH-42PA60A / TH-42PA60H / TH-42PA60M / TH-42PA60MT
116

Table of Contents

Related product manuals