EasyManua.ls Logo

Panasonic TH-42PA60H

Panasonic TH-42PA60H
162 pages
To Next Page IconTo Next Page
To Next Page IconTo Next Page
To Previous Page IconTo Previous Page
To Previous Page IconTo Previous Page
Loading...
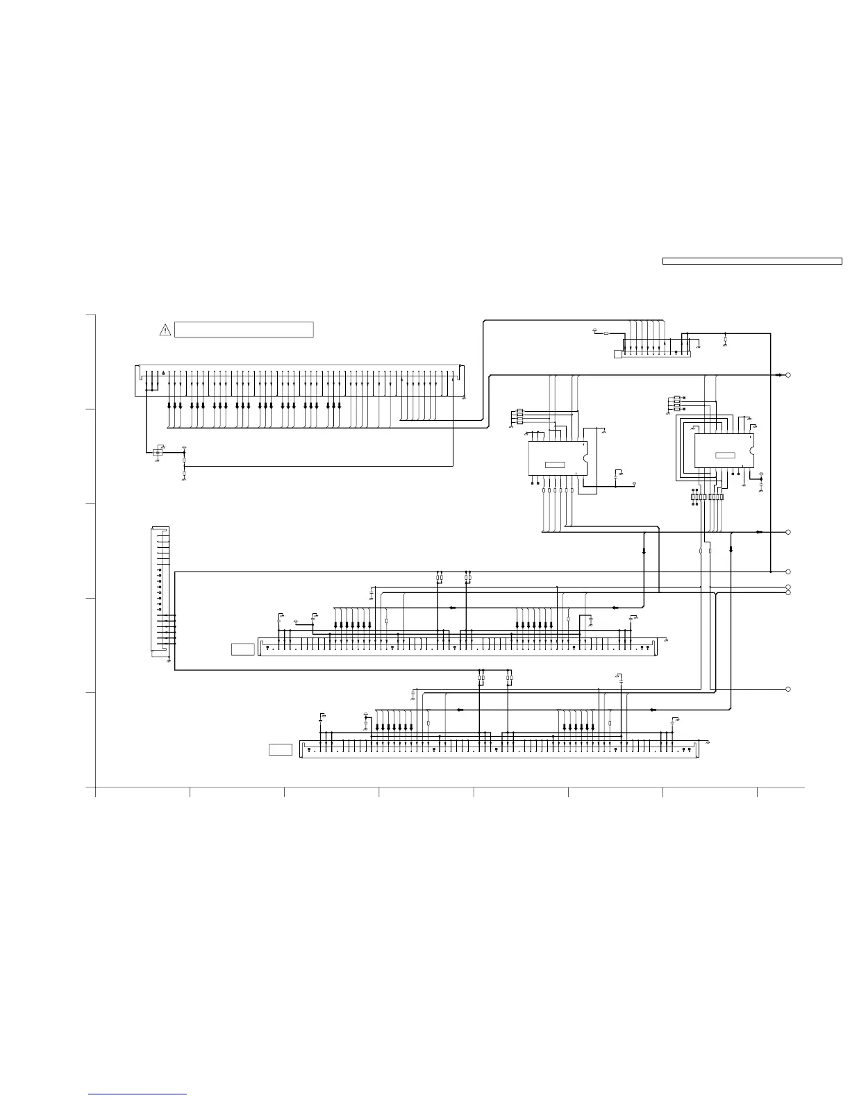
14.51. C2-Board (1 of 2) Schematic Diagram (42inch)
TERM
SIDE
TERM
SIDE
SIDE
TERM
TERM
SIDE
G
G
AB_CLK_P2
AB_LED5
AB_DDC4
AB_DDB4
AB_DDA4
AB_DDC5
AB_DDB5
AB_DDA5
AB_LED5
AB_DDC4
AB_DDB4
AB_DDA4
AB_DDC5
AB_DDB5
AB_DDA5
AB_CLRD
AB_ODED2
AB_ODED2
AB_CLRD
AA_DDB5
AA_DDA5
AA_DDC4
AA_DDB4
AA_DDA4
AA_DDA3
AA_DDC2
AA_DDB2
AA_DDA2
AA_DDC3
AA_DDB3
AA_DDC0
AA_DDB0
AA_DDA0
AA_DDC1
AA_DDB1
AA_DDA1
AA_PCD2
AA_LED
AA_DDC5
BA_SOS8_SS
BA_NUEL
BA_UMH
BA_UML
BA_USH
BA_USL
AA_ODED2
AA_CLRD
AB_LED5
AB_LED6
BA_UEH
AA_CLK_P
AA_CLK_N
BA_SOS8_SS
BA_UEH
BA_USL
BA_NUEL
BA_UMH
BA_USH
BA_UML
AB_CLK_N2
AB_DDB6
AB_DDB6
AB_LED4
AB_DDB7
AB_DDA7
AB_ODED2
AB_CLRD
AB_DDC6
AB_DDC7
AB_DDC6
AB_DDA6
AB_DDA6
AB_DDA7
AB_CLK_N2
AB_ODED2
AB_DDC7
AB_DDB7
AB_CLRD
AB_CLK_P2
AB_LED4
AA_DDA6
AA_DDB6
AA_DDC6
AA_DDA7
AA_DDB7
AA_DDC7
AB_CLK_P2
AB_CLK_N2
AB_CLK_P1
AB_CLK_N1
AB_LED4
AB_LED7
AA_LED
AA_PCD2
AB_ODED2
AB_CLRD
AA_CLRD
AA_ODED2
AA_CLK_P
AA_CLK_N
AB_PCD2_1
AB_PCD2_2
C7208
50V
100p
CB5
1
3
4
5
7
8
9
10
11
12
13
14
15
16
17
18
19
20
21
22
23
24
25
26
27
28
29
31
32
33
34
35
36
37
39
40
41
42
43
44
45
46
47
48
49
50
51
52
53
54
55
57
58
59
60
61
63
64
65
67
68
56
C7226
16V
0.1u
R7210
47
R7245
EXB38V102JV
R7219
220k
R7261
6.8
R7262
6.8
C7202
16V
1u
C7235
16V
1u
C2_5V
C7239
16V
0.1u
R7217
47
R7208 47
R7212
6.8
R7209 47
R7269
22k
R7264
6.8
C7207
16V
1u
R7250
EXB38V470JV
R7214
6.8
R7248 22
R7229
0
R7246 22
C0JBAZ002692
IC7205
G1
1
2
A1
3
A2
4
A3
5
A4
6
A5
7
A6
8
A7
9
A8
10
GND
11
Y8
12
Y7
13
Y6
14
Y5
15
Y4
16
Y3
17
Y2
18
Y1
19
G2
20
Vcc
C7201
100V
0.47u
C7231
16V
1u
R7259
47
R7263
6.8
R7251
EXB38V470JV
C7203
100V
0.47u
R7257
EXB38V102JV
C2_5V
C2_5V
R7249 22
C2_5V
R7265
47
C7234
100V
0.47u
C2_5V
C7236
100V
0.47u
R7256
0
R7247 22
R7255
0
R7213
6.8
C0JBAZ002692
IC7201
G1
1
2
A1
3
A2
4
A3
5
A4
6
A5
7
A6
8
A7
9
A8
10
GND
11
Y8
12
Y7
13
Y6
14
Y5
15
Y4
16
Y3
17
Y2
18
Y1
19
G2
20
Vcc
CB4
1
3
4
5
7
8
9
10
11
12
13
14
15
16
17
18
19
20
21
22
23
24
25
26
27
28
29
31
32
33
34
35
36
37
39
40
41
42
43
44
45
46
47
48
49
50
51
52
53
54
55
57
58
59
60
61
63
64
65
67
68
56
R7270
100k
C2_5V
C22
1
2
3
4
5
6
7
8
9
10
11
12
13
14
15
16
17
18
19
20
C21
1
2
3
4
5
6
7
8
9
10
11
12
13
14
15
16
17
18
19
20
21
22
23
24
25
26
27
28
29
30
31
32
33
34
35
36
37
38
39
40
41
42
43
44
45
46
47
48
49
50
51
52
53
54
55
R7215
6.8
C23
1
2
3
4
5
6
7
8
9
10
11
12
J0HABH000013
FL7201
1
2
3
C7232
50V
100p
FX
GND
DM
GND
VDD1
VDD2
FX
GND
A4
VDD1
GND
GND
VDD2
NC
FDET
VDD2
NC
A4
VDD2
A3
GND
GND
VDD1
A2
LEN
CLR
VDD2
GND
A6
VDD2
A5
VDD2
GND
NC
NC
A3
NC
BLK
VDD2
GND
ODE
CLR
A1
A6
VDD1
GND
NC
NC
GND
DM
VDD2
NC
FS
GND
BLK
LEN
A1
A5
VDD2
FS
A2
FDET1
GND
VDD2
GND
ODE
VDD2
GND
UML
Vda70V
NUEL
SOS8_SS
USH
NC
GND
USL
UEH
5V
UMH
DOUTDA[4]
DOUTDB[2]
UMH
PCD2
GND
DOUTDA[0]
GND
DOUTDA[3]
DOUTDB[0]
P5V
DOUTDC[0]
DOUTDC[6]
DOUTDC[2]
GND
DOUTDB[7]
GND
DOUTDC[3]
GND
DOUTDB[3]
DOUTDB[1]
DOUTDB[4]
NUEL
N.C.(DRV_RST)
DOUTDC[5]
DOUTDB[6]
DOUTDC[1]
DOUTDA[6]
P5V
DOUTDC[4]
P5V
5V_DET
LED
DOUTDC[7]
DRV_SOS8
UEH
DOUTDA[2]
DOUTDA[1]
GND
DOUTDA[7]
DOUTDB[5]
DOUTDA[5]
GND
GND
ODED2
GND
CLRD
CLK[1](-)
GND
CLK[0](+)
USL
UML
USH
GND
GND
GND
GND
GND
Vda 75V
Vda 75V
Vda 75V
NC
NC
NC
NC
NC
NC
Vda 75V
NC
NC
GND
GND
GND
GND
Vda70V
Vda 75V
Vda 75V
VDD2
A5
FDET1
GND
VDD2
FDET
DM
GND
FX
VDD2
A2
LEN
GND
NC
CLR
GND
VDD1
DM
VDD1
GND
A3
VDD2
A1
GND
FS
VDD2
GND
ODE
A1
A5
VDD2
A3
VDD1
NC
A6
FS
LEN
VDD2
A4
NC
GND
VDD1
NC
VDD2
CLR
A2
NC
FX
NC
GND
VDD2
GND
A4
GND
GND
NC
VDD2
GND
A6
ODE
GND
BLK
GND
NC
GND
VDD2
VDD2
BLK
CB4
CB5
4
6
1
5
3
2
C2-BOARD TNPA3800AB (1/2)
PANEL DATA
DRIVER
TO
PANEL DATA
DRIVER
TO
SS-BOARD
TO
(SS23)
D-BOARD
TO
(D32)
C1-BOARD
TO
(C12)
BUFFER
651 83
D
7
A
C
E
B
24
BUFFER
TH-42PA60A/H/M/MT
C2-Board (2 of 2) Schematic Diagram
TH-42PA60A/H/M/MT
C2-Board (2 of 2) Schematic Diagram
0.5
0
0.5
5.0
70.0
1.7
0.6
0.9
0.4
70.0
3.7
0
TH-37PA60H / TH-37PA60M / TH-42PA60A / TH-42PA60H / TH-42PA60M / TH-42PA60MT
121

Table of Contents

Related product manuals