EasyManua.ls Logo

Panasonic TH-42PA60H

Panasonic TH-42PA60H
162 pages
To Next Page IconTo Next Page
To Next Page IconTo Next Page
To Previous Page IconTo Previous Page
To Previous Page IconTo Previous Page
Loading...
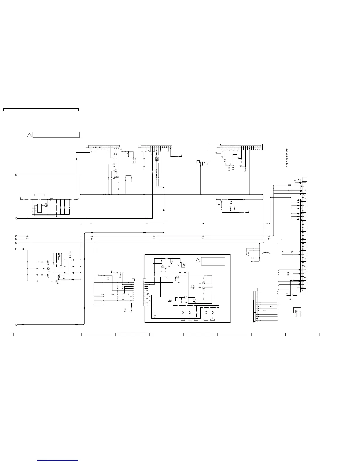
14.24. H-Board (3 of 3) and K-Board Schematic Diagram
+
+
BALLAN
G
R
VCC
GND
OUT
KEY1
G_LED
STBY_LED
MAIN_PB
SD_IRQ
SD_RST
MAIN_Y
MAIN_SW2
MAIN_SW1MAIN_PR
AI_SENSOR
AGC1
AGC1
KEY_EDGE
AFC1
MAIN_Y_OUT
MAIN_PB_OUT
SOS
RST
MSP_RESET
SP_MUTE
AUDIO_MUTE
SDA0B
SCL0B
SUB_Y
SUB_PB
SUB_PR
MAIN_PB
MAIN_PR
MAIN_CVBS
MAIN_Y
SR_GND
SR
AMUTE
HDMI_SR
HDMI_SL
SD_TXD
SD_RXD
MAIN_SW1
MAIN_SW2
MAIN_RF_GND
MAIN_RF_CVBS
ACTIVE_STB_LED
SD_IRQ
SD_RST
SD_TXD
SD_RXD
SCL0B
SDA0B
RM_IN
MAIN_PR_OUT
MAIN_CVBS
AFC2
AFC1
VOUT5
SOS
SL_GND
SL
STBY_LED
RM_IN
G_LED
KEY1
KEY_EDGE
H15
K1KA04AA0150
1
2
3
4
SUB3.3V
SUB5V
BT30V
C3059
16V
1u
*JS3359
J0JCC0000241
C3252
1u
16V
C5685
50V
10u
1%
*R3353
68k
STB+5V
1%
R5611
82k
R3250
0
Q3008
2SA207700L
C3063
50V
0.1u
R3279
0
R3283
0
*R3239
10k
C3251
16V
0.1u
*JS3355
J0JCC0000241
SUB5V
R3161
1k
C3226
10V
10u
*R3240
10k
SUB9V_VIDEO
*JS3246
0
R3049
220
*R3214
0
R3127
1k
C3268
50V
0.01u
D3021
MA2J11100L
*Q3204
B1ABDF000034
1%
R3138
100
C5604
50V
10u
H6
1
2
3
4
5
6
7
8
9
10
11
12
13
14
15
L5608
G1C100MA0072
C3230
50V
0.1u
1%
R3123
130
R3051
6.8k
R3259
220
*R3215
J0JCC0000241
JS3252
0
C3216
10V
10u
D5610
MA3X78900L
R3102
6.8k
*JS3352
J0JCC0000241
*JS3255
0
ZA3401
K4CZ01000027
R3284
0
Q3011
2SA207700L
SUB5V
*JS3357
J0JCC0000241
JS3256
0
D3044
MA2J11100L
*JS3354
J0JCC0000241
SUB9V
1%
R3140
130
*R3262
0
R3251
0
C3228
10V
10u
R3206
100
JS3239
0
R3122
100
*R3290
4.7k
PA3104
0
D3022
MA2J11100L
R3281
0
Q3017
2SA207700L
L5605
G1C1R0MA0072
SUB9V
R3048
22k
*R3238
0
R3118
100
C3227
10V
10u
STB+B
L5610
G1C470MA0077
R3050
2.4k
SUB5V
C3208
16V
0.47u
D5618
B0BC03900015
JS3266
0
C3241
50V
0.1u
H1
K1KY80A00011
1
2
3
4
5
6
7
8
9
10
11
12
13
14
15
16
17
18
19
20
21
22
23
24
25
26
27
28
29
30
31
32
33
34
35
36
37
38
39
40
41
42
43
44
45
46
47
48
49
50
51
52
53
54
55
56
57
58
59
60
61
62
63
64
65
66
67
68
69
70
71
72
73
74
75
76
77
78
79
80
Q5614
B1CFNG000001
C5686
50V
0.01u
C3253
16V
0.1u
*R3261
0
SUB3.3V
H40
K1KA20AA0009
1
2
3
4
5
6
7
8
9
10
11
12
13
14
15
16
17
18
19
20
JS3265
0
1%
R3121
130
C3062
50V
0.1u
R3141
1k
Q3015
2SA207700L
ZA3403
K4CZ01000027
C3207
1u
16V
ZA3402
K4CZ01000027
H5
1
2
3
4
5
6
7
8
9
10
11
12
13
14
15
STB+5V
SUB8V
R3160
1k
MAIN3.3V
R3115
100
C3214
10V
10u
C0DBAJB00004
IC5603
1
VOUT
2
VDD
3
NC
5
EXT
4
VSS
C3233
50V
0.1u
ZA3405
K4CZ01000027
*R3291
4.7k
H2
1
2
3
4
5
6
7
8
9
10
11
12
13
14
15
L3216
J0JGC0000021
*R3213
0
*Q3205
B1ABDF000034
L3212
J0JCC0000100
1%
R5612
16k
JS3206
0
*R3286
J0JCC0000241
BT30V
JS3215
0
R3139
1k
R3126
100
MAIN9V
D3023
MA2J11100L
R3125
1k
Q3014
2SA207700L
SUB5V_MSP
*JS3001
*L3201
G0B101Y00001
1
2
3
4
*C3271
50V
68p
*C3265
50V
1000p
*R3277
0
*JS3368
*C3274
50V
1000p
*H53
1
2
3
4
5
6
7
8
9
10
11
12
*C3270
50V
68p
*C3273
50V
68p
*C3272
50V
68p
STB+B
SUB5V
R2524
22k
R2558
180
D2521
MA3X152K0L
R2553
1k
D2524
MA8056MTX
R2550
0
Q2510
2SD0601A0L
R2560
0
D2530
B3AGA0000072
R2529
5.6k
R2559
0
1%
R2557
820
D2529
MA8056MTX
1%
R3751
1.62k
1%
R3753
1.74k
R2542
100
K1
1
2
3
4
5
6
7
8
9
10
11
12
R3752
1.74k
1%
R2531
470
R2526
5.6k
Q2519
2SB0709A0L
SW3752
EVQ11G05R
1%
R3754
2.32k
Q2513
2SD0601A0L
1%
R3750
14.3k
SW3754
EVQ11G05R
R2516
22k
R2530
22k
R2517
47
RM2510
PNA4601M05TV
R3757
1k
C2515
50V
0.01u
C2512
6.3V
10u
SW3751
EVQ11G05R
R2520
220k
D2512
MA8056MTX
SW3753
EVQ11G05R
Q2520
2SB0709A0L
R2554
1k
Q2511
2SD0601A0L
1%
R2525
10k
SW3755
EVQ11G05R
R2545
100
SL_GND
SL_GND
GND
SL
GND
GND
STB5V
GND
SL
STB3.3V
SP_MUTE
GND
SUB_SW2
GND
MAIN_SW2
GND
AUDIO_MUTE
SCL0B
GND
GND
GND
GND
GND
MAIN_SW1
GND
SUB_SW1
GND
GND
SUB5V
GND
AD_LRCK
GND
NC
GND
SDA0B
GND
GND
GND
A_MUTE
AD_DAT
GND
GND
GND
MAIN_L
MSP_RESET
GND
RST
BS_SL
GND
BS_SR
MAIN3.3V
GND
GND
NC
GND
MAIN_R
GND
PC_V
GND
SUB_PR
SUB3.3V
GND
SUB_Y
GND
MAIN9V
PC_H
GND
HDMI_SL
GND
PC_B
BT30V
PC_G
GND
SUB_PB
SUB3.3V
GND
SUB9V
AD_BICK
PC_R
NC
DVB_CVBS
GND
MAIN_CVBS
SUB5V
MAIN_PB
SR
SR
MAIN_Y
GND
BT30V
MAIN_PR
STB5V
SR_GND
GND
SR_GND
HDMI_SR
TV_V2
AFT2
SDA0B
TV_V2_GND
GND
GND
GND
GND
SCL0B
TV_V1
TV_V1_GND
GND
AGC2
GND
SUB_SW1
GND
GND
MAIN_SW2
AGC1
GND
GND
GND
SUB_SW2
SIF
SUB5V
AFT1
SUB30V
AM
SUB5V
MAIN_SW1
NC
HP_MUTE
HP_R
HP_L
SUFFIX JW
(DG2)
DG-BOARD
TO
SD_RX
SD_TX
SD_IRQ
SD_RST
GND
STBY_LED
G_LED
RM_IN
KEY1
AFC2
AI_SENSOR
Active_STB_LED
GND
KEY_EDGE
AFC1
DG-BOARD
(DG1)
TO
TO
(PA40)
PA-BOARD
USE
FACTORY
FOR
TO
(TA6)
TA-BOARD
TO
(TA5)
TA-BOARD
AVR BT30V
2522 2719 20 2623 2421
!
H-BOARD TNPA3760AC (3/3)
15
12
16
11
13
14
17
AC
KEY1
STBY3.3V
KEY_EDGE
G_LED
GND
SUB5V
STBY_LED
ACTIVE_STB_LED
RM_IN
GND
GND
-/F
R
G
POWER LED
REMOTE CONTROL
STR
+/ TV/AV
OPT
K-BOARD
TNPA3603AH
!
<
TH-42PA60A/H/M/MT, TH-37PA60H/M H-Board (3 of 3) and K-Board Schematic Diagram TH-42PA60A/H/M/MT, TH-37PA60H/M H-Board (3 of 3) and K-Board Schematic Diagram
TH-37PA60H / TH-37PA60M / TH-42PA60A / TH-42PA60H / TH-42PA60M / TH-42PA60MT
94

Table of Contents

Related product manuals