EasyManua.ls Logo

Panasonic TH-42PA60H

Panasonic TH-42PA60H
162 pages
To Next Page IconTo Next Page
To Next Page IconTo Next Page
To Previous Page IconTo Previous Page
To Previous Page IconTo Previous Page
Loading...
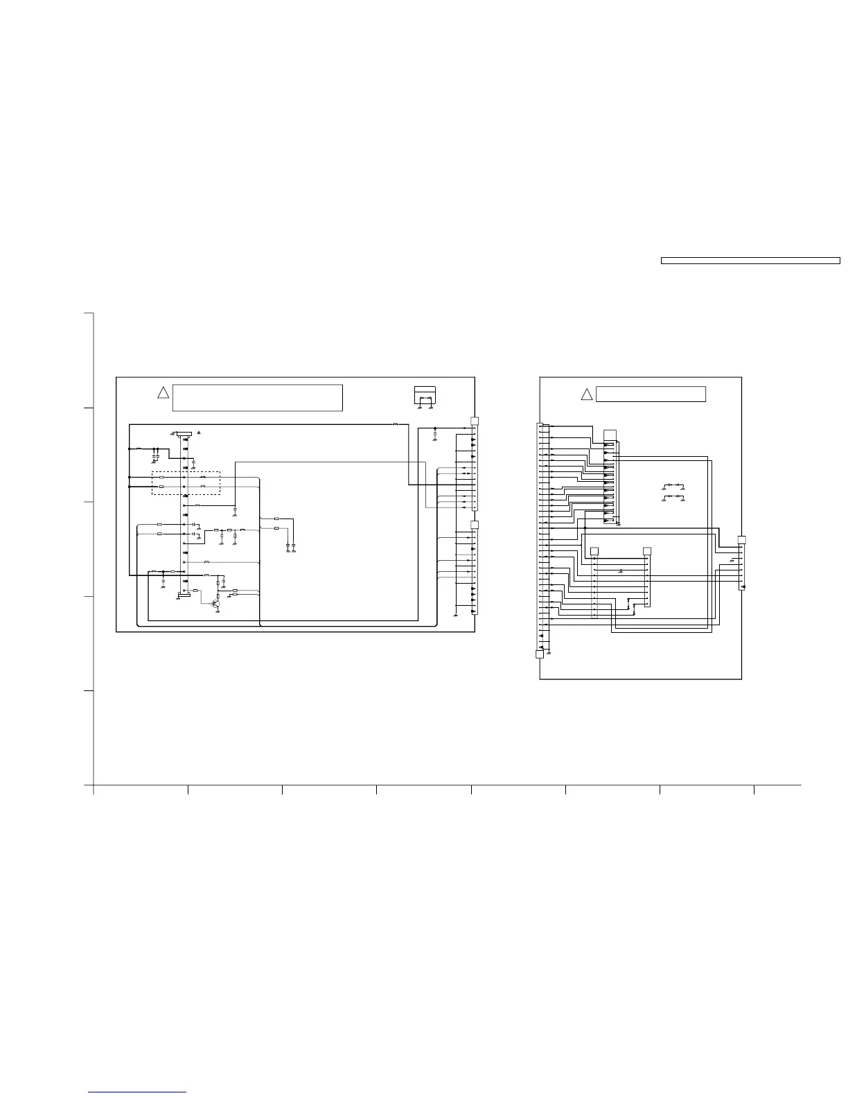
14.25. HC and TA-Board Schematic Diagram
+
+
18
16
14
12
10
8
6
4
2
20
21
19
17
15
13
11
9
7
5
3
1
MAIN_SW1
MAIN_SW2
SIF
SCL0B
SCL0B
SDA0B
SCL0B
SDA0B
MAIN_SW1
MAIN_SW2
AFT1
SIF
TV_V1
TV_V1_GND
TV_V1
TV_V1_GND
SDA0B
AFT1
L001
J0JGC0000021
C030
50V
33p
Q002
2SA207700L
R022
220
C029
50V
33p
R014
0
R009
220
R017
22
C002
10u
50V
1%
*R029
JS012
ERJ3GEY0R00V
0
C008
16V
0.1u
1%
*R028
L031
J0JGC0000021
*TU001
NC
1
NC
2
BM
3
NC
4
SW1
5
SW2
6
BT
7
RF_AGC
8
NC
9
SCL
10
SDA
11
AFT
12
AUDIO_OUT
13
SIF_OUT
14
BTL
15
IF_OUT
16
VIDEO_OUT
17
18
19
20
21
*R020
TA5
1
2
3
4
5
6
7
8
9
10
11
12
13
14
15
L007
J0JCC0000241
TA6
1
2
3
4
5
6
7
8
9
10
11
12
13
14
15
R011
270
C041
16V
0.1u
*L011
J0JCC0000241
C011
50V
33p
R008
0
L032
J0JGC0000021
*R019
*R005
L013
J0JCC0000241
C042
16V
0.1u
*L010
J0JCC0000241
*R001 1k
C010
50V
33p
L021
0
C009
50V
100p
*R023
R018
22
C016
16V
0.1u
C003
50V
0.1u
*R021 1k
C006
6.3V
1000u
*JS002
JS3403
JS3405
0
HC12
1
2
3
4
5
6
7
8
9
JS3404
0
JS3402
HC01
1
HC21
1
2
3
4
5
6
7
8
HC22
1
2
3
4
5
6
7
8
9
10
11
HC15
1
2
3
4
5
6
7
8
9
10
11
12
13
14
15
16
17
18
19
20
21
22
23
24
25
26
27
28
29
30
31
32
33
34
35
36
37
38
39
40
TV_V1
AFT1
GND
TV_V1_GND
SCL0B
BT30V
GND
GND
GND
GND
AFT2
GND
TV_V2
SDA0B
MAIN_SW1
SUB5V
GND
GND
GND
RFAGC2
SUB_SW1
SUB_SW2
GND
SUB5V
MAIN_SW2
RFAGC1
GND
NC
SIF
TV_V2_GND
SUFFIX JW
AC:A
560
0
0
470:A
0:H/M/MT
150k:H/M/MT
36k:A
270k:H/M/MT
68k:A
ENG39A02GF:H/M/MT
ENG37A12GF:A
H/M/MT ONLY
56
D
E
C
A
71
B
342 8
TA-BOARD TNPA3768(PA60H/M/MT)
!
TNPA3768AC(PA60A)
(H5)
TO
H-BOARD
TO
H-BOARD
(H6)
HC-BOARD TNPA3852
SDA1
SDA0B
TXD
RXD
IIC_CONT
IIC_INT
P15V
PSTB
STBY3.3V
PBUSY
PDB0
GND
SCL1
SCL1
GND
GND
SD_TX
SD_RX
PSLCT
SDA0B
PDB1
SCL2
SDA2
STB5V
G_LED
R_LED
REMOCON
SDA0B
RIMOCON
SRQ1
GND
STB5V
SCL0A
SDA0A
GND
SCL0B
GND
SD_TX
NC
GND
SCL2
SDA0A
SCL0B
GND
SDA1
GND
SCL0A
FACTORY
P15V
SRQ1
GND
SDA2
USE
SDA2
GND
PSLCT
SCL1
DG-BOARD
TXD
PDB1
USE
SDA0A
RXD
DTV_EEP_SDA
STB5V
USE
IIC_CLK2
IIC_CONT
FACTORY
FOR
G_LED
IIC/INT
STB5V
(DG15)
SCL0A
SDA0A
PSTB
R_LED
SCL0B
FACTORY
STBY3.3V
IIC_DATA2
GND
FOR
SCL0A
STB5V
SD_RX
SRQ1
PBUSY
DTV_EEP_SCL
FOR
SRQ1
PDB0
SCL1
SDA1
TO
SCL2
GND
FOR
GND
SDA2
USE
GND
FACTORY
!
TH-42PA60A/H/M/MT, TH-37PA60H/M HC and TA-Board Schematic Diagram TH-42PA60A/H/M/MT, TH-37PA60H/M HC and TA-Board Schematic Diagram
TH-37PA60H / TH-37PA60M / TH-42PA60A / TH-42PA60H / TH-42PA60M / TH-42PA60MT
95

Table of Contents

Related product manuals