EasyManua.ls Logo

Panasonic TH-42PA60H

Panasonic TH-42PA60H
162 pages
To Next Page IconTo Next Page
To Next Page IconTo Next Page
To Previous Page IconTo Previous Page
To Previous Page IconTo Previous Page
Loading...
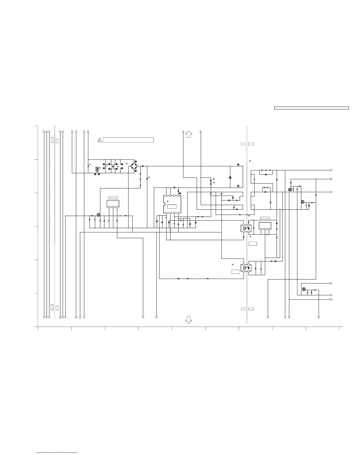
14.13. P-Board (3 of 6) Schematic Diagram (42inch)
ZH6
C630
0.01
C514
470P
R921
33K
C507
0.01
C414
0.047u
D430
MA111
R530
33K
D436
MA4200-M
ZH59
R427
430K
R423
1K
R483
4.7M
R425
39K
ZH5
ZH89
ZH67
ZH44
C585
0.022
Q521
2SK3018
R407
430K
R938
4.7K
C517
220u
C433
0.1
C654
1.0
D437
MA4200-M
ZH53
IC408
ON3171
2
1
4
3
R549
10K
C512
50V
470P
ZH41
R413
10/5W
R521
10
2.5mm
R404
1K
ZH68
D601
02DZ5.1
R432
1K
R412
0
R594
150
2.5mm
R943
1M
D411
ST02D-170
C408
1000P
R435
430K
R539
10K
R461
10K
C515
1200
D438
MA4200-M
IC504
TL431A1LPM5
123
T410
ETS25AF115AH
9
7
5
4
1
2
10
11
12
13
14
16
15
R418
22
ZH88
R544
330
ZH61
D412
D1NL20U
C627
1000P
Q537
RTR040N03
C493
47/50V
C413
0.1
IC410
ON3171
2
1
4
3
R488
100K
IC409
MIP2G4
Vdd
1
FB
2
CL
3
Vcc
4
DRAIN
56
SOURCE
7
SOURCE
8
D432
RB520
C402
1.0
IC411
TL431A1LPM5
123
R459
680K
C513
50V
470P
D445
MA4360-H
R541
1M
D596
ERA15-10
ZH45
ZH63
C516
0.47
ZN406
ERZV07D511
D511
D1NJ10
C529
1.0
Q434
2SK3302
R429
4.7
ZN405
ERZV07D511
D441
D1NL20U
Q524
2SK2090
R507
220
R422
330K
D404
S1WB(A)80
R416
3M
R542
1K
R522
10
D435
ERA15-10
C434
1.0
L410
40mH
1
2
4
3
R434
0
D563
02DZ6.2
R420
0
D416
1SR153
D444
D1NL20U
ZH60
C467
220P
C494
1/250V
D509
D2S6M
R677
470K
ZH52
R540
1M
D595
WA5001=5
R524
1K
C497
47/50V
C407
22u/450V
C425
0.01
23
D
B
4
E
6
F
1 587
A
C
9
COLD
HOT
COLD
HOT
COLD
HOT
COLD
HOT
P-BOARD TNPA3911AG (3/6)
ERROR DET
11
12
13
14
15
16
C JDF KBE IA HG
BA BB BC BD BE BF BG BH BI BJ BK BL BM BN BO
P-BOARD
(1/6)
TO
(5/6)
P-BOARD
TO
ERROR DET
PHOTO
COUPLER
CONTROL
DC POWER
COUPLER
PHOTO
TH-42PA60A/H/M/MT
P-Board (3 of 6) Schematic Diagram
TH-42PA60A/H/M/MT
P-Board (3 of 6) Schematic Diagram
TH-37PA60H / TH-37PA60M / TH-42PA60A / TH-42PA60H / TH-42PA60M / TH-42PA60MT
83

Table of Contents

Related product manuals