EasyManua.ls Logo

Panasonic TH-42PA60H

Panasonic TH-42PA60H
162 pages
To Next Page IconTo Next Page
To Next Page IconTo Next Page
To Previous Page IconTo Previous Page
To Previous Page IconTo Previous Page
Loading...
11 Adjustment
11.1. PAL panel white balance adjustment
Instrument Name Connection Remarks
·
W/B pattern
·
Color analyzer (Minolta CA-100 or equivalent)
RF input
Panel surface
User setting: Normal
Procedure Remarks
·
Asing time is longer than 15min.
·
Make sure the front panel to be used on the final set is fitted.
·
Make sure a color signal is not being shown before adjustment.
·
Put the color analyzer where there is little colour variation.
Complete the adjustment within 10 minutes after the turn on electricity.
Turn on the power supply again when it is not possible to complete it by aging etc.
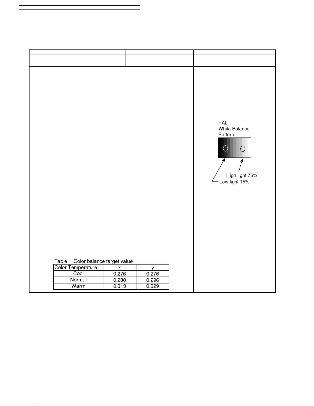
1. Display the white balance pattern.
2. Check that the color balance is “cool”.
3. Enter the <Service1> mode.
4. Select “G-CUTOFF” item, using the color-key “Red” or “Green”, and set to “128”, using the
color-key “Yellow” or “Blue”.
Also, B-CUTOFF and “R-CUTOFF” set to “128”.
5. Set “G-DRIVE” at “224”.
6. Touch the signal receiver of color analyzer to the highlight window’s center, and adjust B
drive and R drive so x, y become the “Color balance Cool” in the below table.
7. Set “ALL-DRIVE to 252”.
8. Set colorbalance to “Normal”.
9. Fix G cutoff , B cutoff and R cutoff at “128”.
10. Fix G drive at “224”.
11. Adjust B drive and R drive so the highlight window’s x, y become the “Color balance
“Normal” in the below table.
12. Set “ALL-DRIVE to 252”.
13. Set color balance to “Warm”.
14. Set G cutoff, B cutoff and R cutoff to “128”.
15. Set G drive to “224”.
16. Adjust B drive and R drive so the highlight window’s x, y become the “Color balance Warm
shown in the below table.
17. Set “ALL-DRIVE to 252”.
Picture menu : Dynamic
ASPECT : 16:9
·
Highlight section
Signal amplitude 75%
36
TH-37PA60H / TH-37PA60M / TH-42PA60A / TH-42PA60H / TH-42PA60M / TH-42PA60MT

Table of Contents

Related product manuals