EasyManua.ls Logo

Panasonic TH-42PV500B - DG-Board (7 of 13) Schematic Diagram

Panasonic TH-42PV500B
260 pages
To Next Page IconTo Next Page
To Next Page IconTo Next Page
To Previous Page IconTo Previous Page
To Previous Page IconTo Previous Page
Loading...
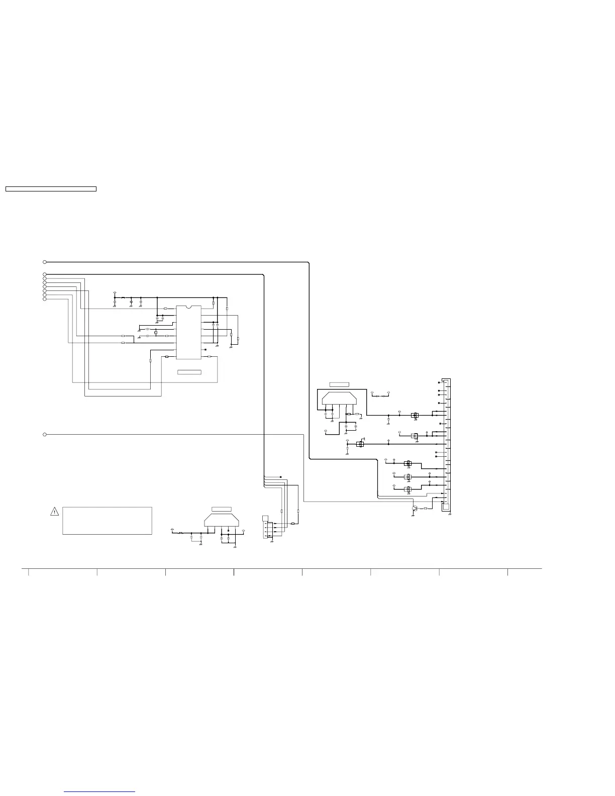
14.32. DG-Board (7 of 13) Schematic Diagram
+
G
G
+
G
G
+
+
G
G
+
G
G
G
G
+
G
G
JTAG_TRST
TDO_BA_JTAG
JTAG_TMS
JTAG_TCK
3.3V
JTAG_TDI
SOS
TUNER_MAIN_ON
TP4084
C4864
16V
4.7u
MAIN3.3V
C4925
47u
16V
J0HABH000012
FL4020
1
2
3
TP4088
C4901
16V
10u
TP4080
C4899
6.3V
1u
R4758
33
R4756
33
C4863
16V
0.1u
C4867
50V
100p
SUB9V
R4769
150
MAIN2.5V
R4762
33
L4862
J0JHC0000078
J0HABH000012
FL4023
1
2
3
MAIN2.5V
R4943
1k
DG35
1
2
3
4
R4757
33
C4898
50V
0.01u
C4858
220u
4V
R4768
0
R4760
10k
JS4901
ERJ3GEY0R00V
STB5V
DG20
1
2
3
4
5
6
7
8
9
10
11
12
13
14
15
16
17
18
19
20
21
22
23
24
25
26
27
28
29
30
C0DBZFG00055
IC4024
1
VIN
2
VB
3
VOUT
4
NC
5
GND
C4939
220u
4V
J0HABH000012
FL4017
1
2
3
R4763
10k
MAIN3.3V
Q4900
B1ABCF000138
C4922
6.3V
47u
C4861
50V
15p
MAIN5V
SUB5V
MAIN9V
SUB9V
R4888
0
J0HABH000012
FL4022
1
2
3
C4902
50V
0.01u
TP4074
C4855
16V
0.1u
MAIN1.2V
J0HABH000012
FL4021
1
2
3
C4924
16V
0.1u
C4929
16V
10u
X4002
H0J270500087
R4949
30k
C4868
50V
100p
R4952
33
C1ZBZ0002790
IC4051
1
CLKC
2
VDD
3
AGND
4
XTALIN
5
XTALOUT
6
XBUF
7
CLKD
8
CLKE
9
CLKB
10
CLKA
11
GND
12
S0
13
S1
14
AVDD
15
S2
16
PD/OE
C4926
16V
0.1u
TP4087
SUB9V2
R4884
0
R4766
0
C0DBEJG00001
IC4042
1
CTL
2
Vcc
3
GND
4
OUT
5
C
L4751
J0JCC0000241
R4887
0
R4759
51
C4856
16V
0.1u
R4948
30k
J0HABH000012
FL4016
1
2
3
C4859
50V
15p
TDI
TMS
TCK
TDO
27MHz
74.25MHz
108MHz
95.5MHz
81MHz
STB_5V
ODU +B
MAIN2.5V (0.98A/NC)
SOS
ODU_ON/OFF
MAIN9V(0.1A/NC)
SUB5V(0.63A)
BT30V
SUB9V1(1A/0.766A)
MAIN5V(0.37A/0.46A)
TVON
AC_ON/OFF
MAIN3.3V(1.55A/1.847A)
ODU +B
SUB9V1(1A/0.766A)
MAIN3.3V(1.55A/1.847A)
81MHz
(SUB3.3V)
MAIN2.5V (0.98A/NC)
AVR 1.2V
AVR 2.5V
CLOCK GENE.
47 5048 52
53
5149 54
(PA20)
TO
PA-BOARD
JTAG
93
95
92
97
91
99
96
98
94
USE
FOR
FACTORY
0
0
0
0
3.3
0
0
0
0
2.6
9.0
0
9.0
5.0
3.3
3.3
0
3.3
0
5.0
0
0
5.0
0
9.0
2.5
0
2.5
0
DG-BOARD (7/13)
TNPA3519 (PV500E)
TNPA3519AC (PV500B)
TH-37/42PV500E/B
DG-Board (7 of 13) Schematic Diagram
TH-37/42PV500E/B
DG-Board (7 of 13) Schematic Diagram
TH-42PV500E / TH-42PV500B / TH-37PV500E / TH-37PV500B
126

Table of Contents

Other manuals for Panasonic TH-42PV500B

Related product manuals