EasyManua.ls Logo

Panasonic TH-42PV8MSA - PCB Exchange and Quick Adjustment; Adjustment Volume Location; Test Point Locations

Panasonic TH-42PV8MSA
126 pages
Print Icon
To Next Page IconTo Next Page
To Next Page IconTo Next Page
To Previous Page IconTo Previous Page
To Previous Page IconTo Previous Page
Loading...
27
8.1.3. P.C.B. (Printed Circuit Board) exchange
8.1.3.1. Caution
1. To remove P.C.B. , wait 1 minute after power was off for discharge from electrolysis capacitors.
8.1.3.2. Quick adjustment after P.C.B. exchange
Adjust the following voltages with the multimeter.
*See the Panel label.
Caution:
Absolutely do not reduce Vsus below Ve not to damage the P.C.B.
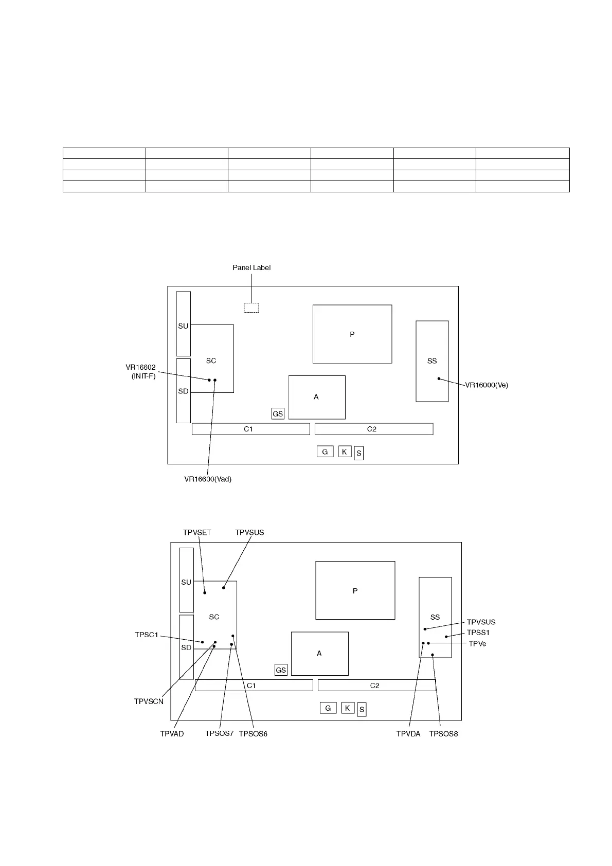
8.1.4. Adjustment Volume Location
8.1.5. Test Point Location
P.C.B. Name Test Point Voltage Volume Remarks
P Board Vsus TPVSUS (SS) Vsus ± 2V R628 (P) *
SC Board Vad TPVAD (SC) -149V ± 1V VR16600 (SC)
SS Board Ve TPVE (SS) Ve ± 1V VR16000 (SS) *

Related product manuals