EasyManua.ls Logo

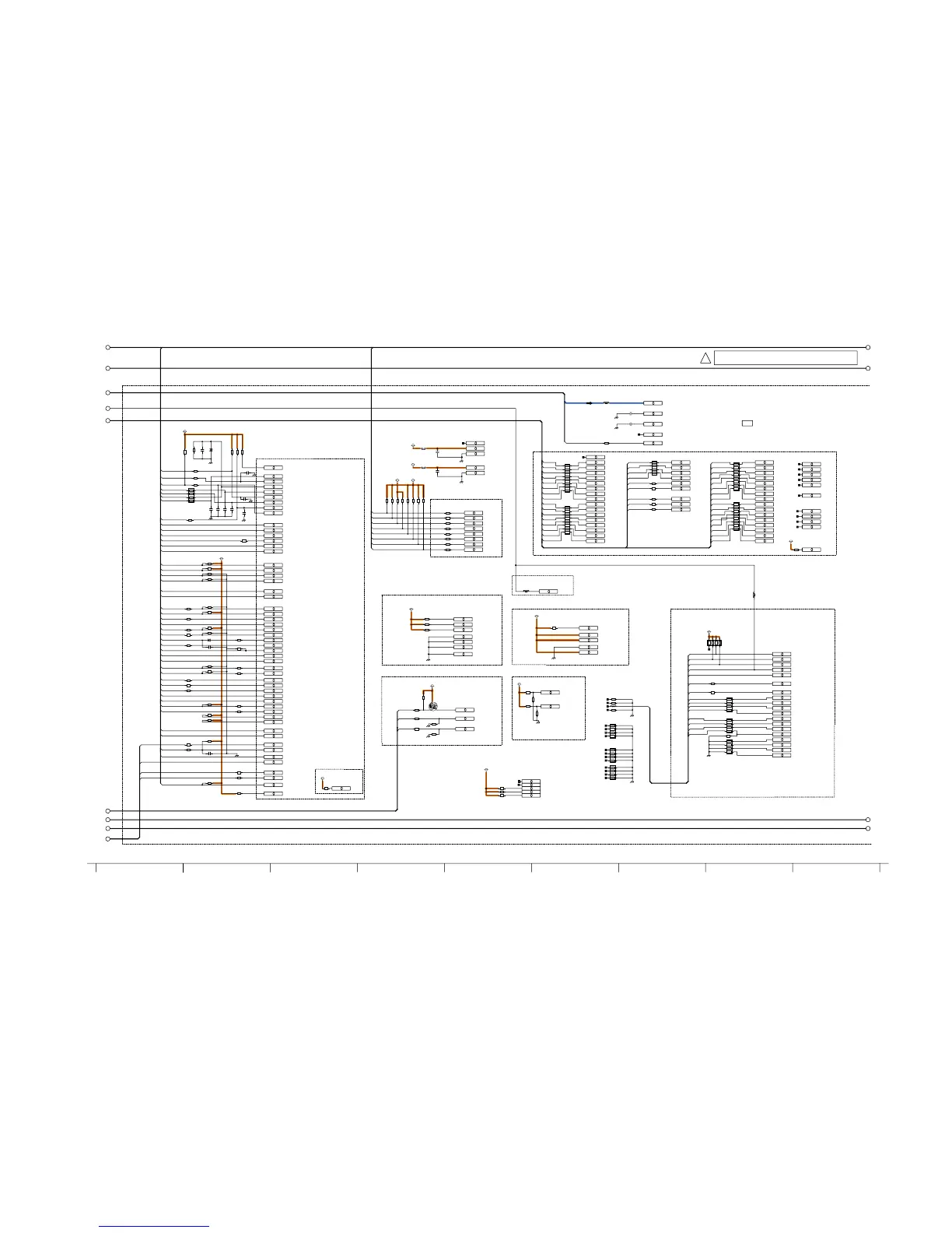
Panasonic TH-65PF20U - 13.19. A-Board (10 of 17) Schematic Diagram

Panasonic TH-65PF20U
147 pages
Print Icon
To Next Page IconTo Next Page
To Next Page IconTo Next Page
To Previous Page IconTo Previous Page
To Previous Page IconTo Previous Page
Loading...
TH-65PF20U
63
13.19. A-Board (10 of 17) Schematic Diagram
S
S
S
P
AO_A1
TRACEPKT2
MC_LD
AQ_D6
TRACEPKT1
A_REM_IN
TRACEPKT0
AQ_D8
AO_A16
SOUND_MUTE
STB_ON
SCW3_NTRST
UART_SW
AO_A2
AO_A17
KEY_INPUT
AQ_D9
A_LED_R
SCW3_NTRST
AO_A7
A_DRVMUTE
RTC_INT
AO_A13
RTCK
AQ_D10
AO_A6
TV_ON/OFF
3V_SDA1
AO_A14
AQ_D11
SCW3_TDO
AO_A5
A_IIC_CONT
3V_SCL1
AQ_D7
AO_A15
AQ_D12
AQ_D0
3V_SDA3
AO_A3
AO_A12
DS_SOS
AQ_D13
AO_A4
F15V_MON
AO_A11
SCW3_TDI
AQ_D1
EEPROM_WP
A_MCCLK
AQ_D14
MCDATA_O
AQ_D2
TRACESYNC
3VTXD_TU
AO_A10
PIPESTAT2
AQ_D15
AQ_D3
TXD_PC_M
PIPESTAT1
AO_A9
PIPESTAT0
AP_CE
AQ_D4
AO_A8
A_RXD_PC
AP_WE
AQ_D5
AO_A18
AO_A0
AO_A19
ALL_OFF1
TRACEPKT3
TRACECLK
IIC_INT
AP_OE
3V_SCL3
P3V_SCL2
P3V_SDA2
A_READY
A_ALARM
3V_SCL4
3V_SDA4
A_LED_G
15V_ON/OFF
RXD_LAN
TXD_LAN
AO_A20
AO_A21
LAN14V_ON/OFF
CLAMPY
EDID_WP
XIRQ3
15V_SOS
5V_SOS
FAN_SOS
DN_SOS
HDMI_DET
DVI_DET
ANMPIN
AUDIO_SOS
3VRXD_TU
SCW3_TCK
SCW3_TMS
AUD_SEL1
AUD_SEL2
FAN_CONT1
VSYNC_ON/OFF
AMP_MUTE
A_NRST
NRST2
A_P_ON/OFF
FAN_ON/OFF
DPMS_VD
HPD2
SL1_DET
15V_ON/OFF2
C4715
16V
0.1u
C4705
16V
0.1u
C4702
16V
0.1u
C4706
16V 0.1u
C4711
50V
1000p
C4707
16V 0.1u
C4709
50V 1000p
C4703
6.3V 1u
C4704
16V 0.1u
C4701
16V 0.1u
C4708
16V 0.1u
C4714
16V
0.1u
C4402
0.1u
16V
C4401
0.1u
16V
D4703
B0JCCE000008
D4701
DZ2J033M0L
C1AB00003189
*IC4501 AH7 DB[0]
*IC4501 F1 ADIN[3]
*IC4501 A28 SO1
*IC4501 A29 SO0
*IC4501 AJ1 GIO[32]
*IC4501 C4 TDO
*IC4501 C5 IFMD[1]
*IC4501 AK11 ADL[6]
*IC4501 AE1 GIO[14]
*IC4501 AJ11 ADL[7]
*IC4501 AE9 DB[15]
*IC4501 F5 ADIN[7]
*IC4501 A4 JTAGICEENB
*IC4501 AJ7 GIOPUENB
*IC4501 AJ13 ADH[18]
*IC4501 M2 ANSYIN
*IC4501 D28 SDA1
*IC4501 AB5 GIO[0]
*IC4501 A3 TDI
*IC4501 AF7 DB[2]
*IC4501 F2 ADIN[4]
*IC4501 AG11 ADH[9]
*IC4501 AH9 DB[12]
*IC4501 C30 SDA2
*IC4501 D30 SDA0
*IC4501 AJ12 ADH[13]
*IC4501 AK3 GIO[35]
*IC4501 D26 INT[1]
*IC4501 A6 RSTB
*IC4501 AG2 GIO[26]
*IC4501 AG14 RDB
*IC4501 AD5 GIO[12]
*IC4501 B29 SCL3
*IC4501 B28 SO2
*IC4501 AE13 ADH[22]
*IC4501 AD3 GIO[10]
*IC4501 AK14 BUSCLK
*IC4501 AF2 GIO[21]
*IC4501 B1 DAOUT[1]
*IC4501 G4 ADIN[1]
*IC4501 AC1 GIO[2]
*IC4501 AJ2 GIO[33]
*IC4501 AJ10 ADL[1]
*IC4501 AG12 ADH[15]
*IC4501 AG13 ADH[20]
*IC4501 AF21 LVDSEATIN
*IC4501 AF4 GIO[23]
*IC4501 Y5 GIO[43]
*IC4501 AF5 GIO[24]
*IC4501 AF8 DB[8]
*IC4501 C29 SCL2
*IC4501 B26 SI3
*IC4501
E7 GIO[40]
*IC4501 AG3 GIO[27]
*IC4501 AB6 GIO[1]
*IC4501 D25 INT[3]
*IC4501 AF12 ADH[16]
*IC4501 AH15 SDRASB
*IC4501 C24 MULTENB
*IC4501 C7 GIO[42]
*IC4501 AH12 ADH[14]
*IC4501 AJ6 RTCCSE
*IC4501 AE11 ADH[11]
*IC4501 AE7 DB[3]
*IC4501 C3 DAOUT[2]
*IC4501
C1 VRH
*IC4501 AE8 DB[9]
*IC4501 D27 SCL1
*IC4501 AH5 GIO[53]
*IC4501 AG1 GIO[25]
*IC4501 E1 VRHADLS
*IC4501 B3 TESTB[0]
*IC4501 AE3 GIO[16]
*IC4501 G5 ADIN[2]
*IC4501 AG15 RDY
*IC4501 AD4 GIO[11]
*IC4501 AJ8 DB[5]
*IC4501 AK10 ADL[0]
*IC4501 AC2 GIO[3]
*IC4501 F24 TESTB[2]
*IC4501 F3 ADIN[5]
*IC4501 AF9 DB[14]
*IC4501 D7 GIO[41]
*IC4501 AC6 GIO[7]
*IC4501 A26 SI2
*IC4501 D24 TESTH2[0]
*IC4501 AF13 ADH[21]
*IC4501 E25 IRRMIN
*IC4501 AD6 GIO[13]
*IC4501 D3 DAOUT[3]
*IC4501 AJ4 GIO[38]
*IC4501 C23 TESTB[1]
*IC4501 AJ15 SDCKE
*IC4501 AD2 GIO[9]
*IC4501 C2 VRL
*IC4501 D13 DPVSB
*IC4501 AG7 DB[1]
*IC4501 F4 ADIN[6]
*IC4501 AG4 GIO[28]
*IC4501 G1 VRLADLS
*IC4501 D5 TMS
*IC4501 AH11 ADH[8]
*IC4501 AK2 GIO[34]
*IC4501 C13 DPHSB
*IC4501 AE2 GIO[15]
*IC4501 AC3 GIO[4]
*IC4501 AE10 ADL[5]
*IC4501 AE12 ADH[17]
*IC4501 F25 TESTH2[1]
*IC4501 E6 IFMD[0]
*IC4501 G3 ADIN[0]
*IC4501 AE14 CS1B
*IC4501 B4 TCK
*IC4501 AF10 ADL[4]
*IC4501 AH14 WR1B
*IC4501 AG5 GIO[54]
*IC4501 AH10 ADL[2]
*IC4501 AH1 GIO[29]
*IC4501 C25 INT[2]
*IC4501 E22 TESTH
*IC4501 AK15 SDCASB
*IC4501 AF15 SDWEB
*IC4501 AH3 GIO[31]
*IC4501 AG10 ADL[3]
*IC4501 AK8 DB[4]
*IC4501 AE6 GIO[19]
*IC4501 R2 ANSCIN
*IC4501 AK12 ADH[12]
*IC4501 AF11 ADH[10]
*IC4501 B5 TRST
*IC4501 AE5 GIO[18]
*IC4501 AC4 GIO[5]
*IC4501 F7 GIO[39]
*IC4501 B27 SI0
*IC4501 AK4 GIO[37]
*IC4501 AE16 CS4B
*IC4501 AF6 GIO[55]
*IC4501 C27 SI1
*IC4501 AG6 RTCK
*IC4501 AF3 GIO[22]
*IC4501 AJ3 GIO[36]
*IC4501 AE4 GIO[17]
*IC4501 AH13 ADH[19]
*IC4501 G2 VRADLS
*IC4501 AG9 DB[13]
*IC4501 AJ9 DB[11]
*IC4501 AF14 CS0B
*IC4501 AF1 GIO[20]
*IC4501 D2 DAOUT[4]
*IC4501 Y6 GIO[44]
*IC4501 AH8 DB[6]
*IC4501 AF16 CS2B
*IC4501 A27 SO3
*IC4501 AK9 DB[10]
*IC4501 B30 SDA3
*IC4501 AJ14 WR0B
*IC4501 D1 DAOUT[5]
*IC4501 AH4 GIO[52]
*IC4501 J2 ANMPIN
*IC4501 AH2 GIO[30]
*IC4501 AE15 SDCSB
*IC4501 AG8 DB[7]
*IC4501 D29 SCL0
*IC4501 B2 DAOUT[0]
*IC4501 AC5 GIO[6]
*IC4501 AD1 GIO[8]
*IC4501 C26 INT[0]
L4701
J0JCC0000241
L4702
J0JCC0000241
STBY3.3V
SCX_3.3V
STBY3.3V
SCX_3.3V
STBY3.3V
STBY3.3V
STBY3.3V
STBY3.3V
STBY5V
STBY3.3V
STBY3.3V
STBY3.3V
3.3V
3.3V
R4794
R4821
R4830
R4401
Q4701
B1CBHD000002
G
D
S
R4853
EXB28V100JX
R4835
EXB38VR000V
R4825
EXB28V220JX
R4836
EXB38VR000V
R4827
EXB38VR000V
R4820
EXB28V103JX
R4702
EXB28V101JX
R4824
EXB28V220JX
R4834
EXB38VR000V
R4860
EXB2HV100JV
R4861
EXB2HV100JV
R4852
EXB2HV100JV
R4851
EXB2HV100JV
R4814 2.7k
R4752
10k
R4735
100
R4760
100
R4816 2.7k
R4808
22
R4728
100
R4857 0
R4722
100
R4737
100
R4784
10k
R4801
47
R4712
100
R4831
10k
R4758
100
R4706
10k
R4743
47
R4742
10k
R4764
10k
R4721
10k
R4734
100k
R4810 2.7k
R4765
6.8k
R4753
10k
R4727
10k
R4715
10k
R4763
6.8k
R4707
100
R4723
10k
R4813
2.7k
R4726
100
R4711
12k
R4748
10k
R4811 2.7k
R4731
1k
R4725
10k
R4719
47k
R4705
39k
R4862
10k
R4829
10k
R4815 2.7k
R4747
100
R4755
10k
R4858 0
R4761
10k
R4822 22
R4854 0
R4745
10k
R4708
10k
R4807
22
R4704
100
R4804
22
R4809 2.7k
R4769
10k
R4768
10k
R4767
10k
R4806
22
R4732
100k
R4716
3.3k
R4759
10k
R4802
47
R4729
3.3k
R4402
0
R4803
22
R4762
100
R4710
1k
R4720
1k
R4709
100
R4738
100
R4733
1k
R4746
10k
R4714
10k
R4751
100
R4750
100
R4701
10k
R4757
2.7k
R4823
22
R4713
10k
R4749
100
R4828
10k
R4774
10k
R4772
10k
R4770
10k
R4766
10k
R4855 0
R4805
22
R4826
10k
R4724
100
R4812
2.7k
R4856 0
R4741
47
SCX1 ARM_TEST
SCW SIDE FPGA
DN_SOS
AUDIO_SOS
FAN_SOS
5V_SOS
F15V_MON
15V_SOS
LED_Red
LED_Green
STAB_ON
LSI_RESET(OUT)
ALL_OFF
IIC_INT
IIC_CONT
EEPROM_WP
TV_ON/OFF
DRIVER_MUTE
AUDIO_MUTE
UART_SW
RTC_INT
EDID_WP
READY
ALARM
VRL
SCX1 RST
SCX1 FLASHROM/SDRAM I/O
SCX1 ARM I/O
KEY_INPUT
DS_SOS
15V_ON/OFF
F15V_ON/OFF
15V_ON/OFF2
HPD2
VRH
AUD_SEL2
P_ON/OFF
DPMS_HD
DPMS_VD
FAN_ON/OFF
TRACEPKT[3]
TRACESYNC
TRACECLK
PIPESTAT[2]
TRACEPKT[1]
TRACEPKT[2]
TRACEPKT[0]
PIPESTAT[1]
PIPESTAT[0]
TRACEPKT[7]
TRACEPKT[6]
TRACEPKT[5]
TRACEPKT[4]
HDMI_DET2
FPGA_CLK
AUD_SEL1
HDMI_DET1
FPGA_LD
FPGA_DATIN
DEBUG_in
RXD_Tuner
RXD_PC
TXD_Tuner
TXD_PC
SDA1
DEBUG_out
SCL1
SOS_INH
SDA3
RMIN
SCL2
SCL3
SDA2
ASIC-ARM
SDA4
SCX1 ARM IIC
SCL4
SCX1 ARM_ICE
ARM I/O N.C.
FPGA_CLK
FPGA_DATOUT
nCONFIG
nSTATUS
CONF_DONE
FPGA CONFIG
STB_SENSE
STB_SENSE
FAN_CONT
RXD_LAN
TXD_LAN
CLAMPPLS
CLAMPY
VSYNC_ON/OFF
DA_MUTE
STB CHECK PORT
LSI_RESET2
XIRQ3
SL1_DET
9087 8882 8683 84 85 89
A-BOARD TXN/A11PEUS(10/17)
!
SCX1
IC4501
81
82
87
89
83
85
86
88
91
94
93
92
84

Table of Contents

Other manuals for Panasonic TH-65PF20U

Related product manuals