EasyManua.ls Logo

Paradox SP5500 - Partitioning

Paradox SP5500
71 pages
Print Icon
To Next Page IconTo Next Page
To Next Page IconTo Next Page
To Previous Page IconTo Previous Page
To Previous Page IconTo Previous Page
Loading...
8
Magellan & Spectra SP • Installation Guide
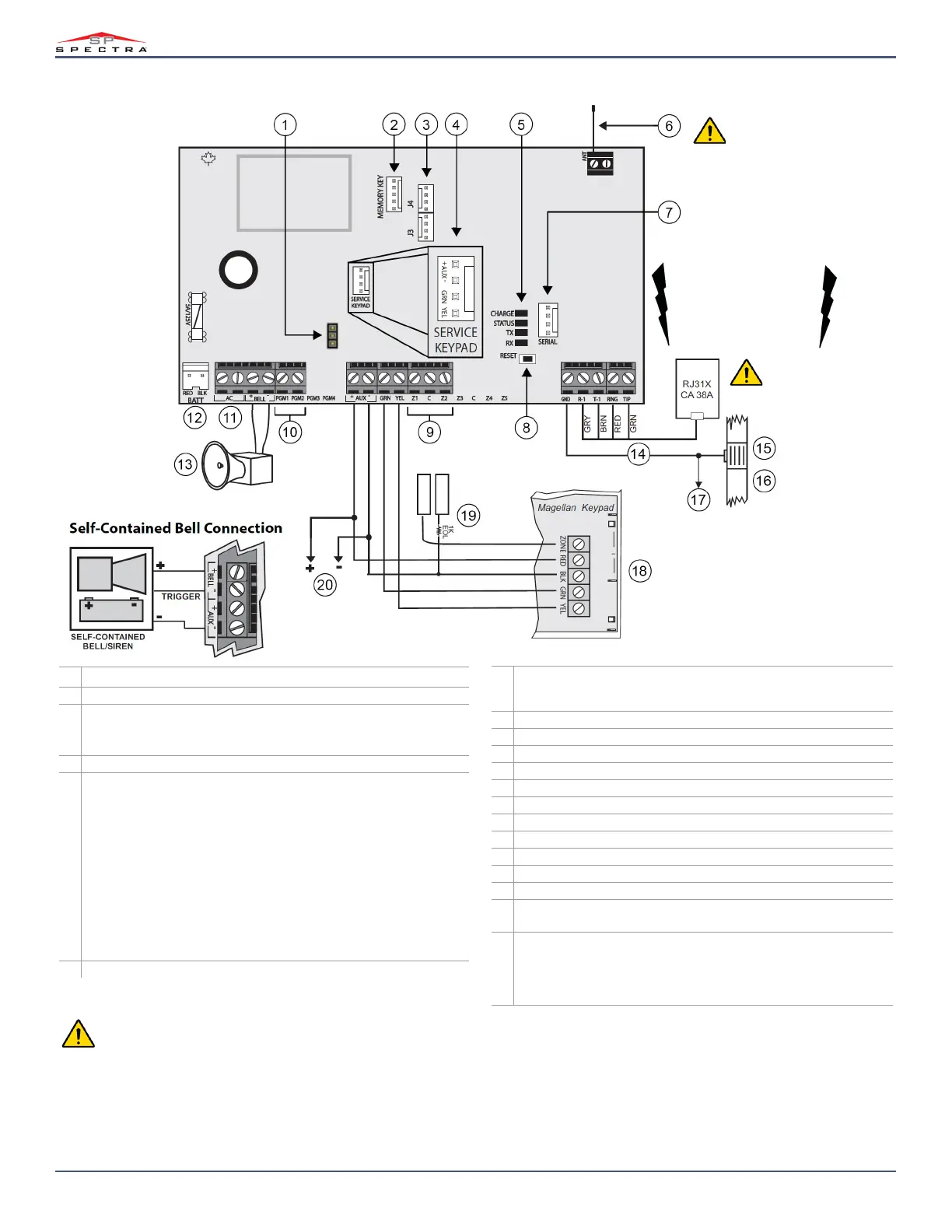
MG5000 PCB Layout
To provide maximum
lightning protection we
strongly recommend having
separate earth connections
for the dialer and zone
ground terminals.
40 VA transformer strongly recommended.
Max. number of keypads: 15 keypads
Max. aux. current: 700 mA
Max. distance of bus module from panel: 76 m (250 ft.)
Max. total run of wire: 230 m (750 ft.)
This equipment must be installed and maintained by qualified service personnel only.
For UL and C-UL warnings, refer to the UL and C-UL Warnings section at the back of the MGSP Reference & Installation Manual.
The sum of the current drawn from the
BELL and AUX must be limited to 1.3A. Exceeding this limit will overload the panel power supply
and lead to complete system shutdown.
Disconnect telephone line
before servicing.
1
PGM +/- trigger not supported by the MG5000
2 Paradox Memory Key (PMC5)
3 EBUS (J3) and Dialer (J4) used with:
VDMP3 Plug-in Voice Module for voice reporting
PCS Series Communicator Module
4 Four-pin connector can be used for quick installation of a keypad
5
LEDs
Charge LED:
•Charging and battery test
Status LED:
Flash once every second: Normal
Flashes ON 1 sec. and OFF 1 sec.: Any trouble
Always ON: Panel is using phone line
Fast flash 6 seconds after power-up: Installer lock enabled
RX & TX LED:
Flashes quickly when receiving or transmitting RF signals from
wireless devices
6Antenna
7 Serial: Used for connecting the IP Internet Module/PCS (Data); also used
for In-Field Firmware upgrade through a 307USB Direct Connect
Interface
8Panel Reset
9Zone Input: Refer to Single Zone Inputs on page 18
10 PGM Output
11 16.5 Vac (50 or 60 Hz), minimum 20 VA (40 VA recommended)
12 Backup Battery connection
13 The
BELL output will shutdown if the current exceeds 3A
14 AWG #14 single conductor solid copper wire
15 Ground clamp
16 Cold water pipe grounding
17 To metallic enclosure
18 Module connection
19 Zone connection, if EOL is enabled, see section [706] option 2,
on page page 34
20 To connect additional wiring to auxiliary power, use the red (+) and black
(-) keypad connectors; auxiliary power will shut down if current exceeds
1.1A; if the auxiliary output is overloaded and shuts down, you must
disconnect all loads from the output for at least 10 sec. before
reconnecting any load back to the auxiliary output
Do not cut, bend, or alter
the antenna, and ensure
that electrical wires do not
cross over it, as this may
affect signal reception.

Table of Contents

Other manuals for Paradox SP5500

Related product manuals