EasyManua.ls Logo

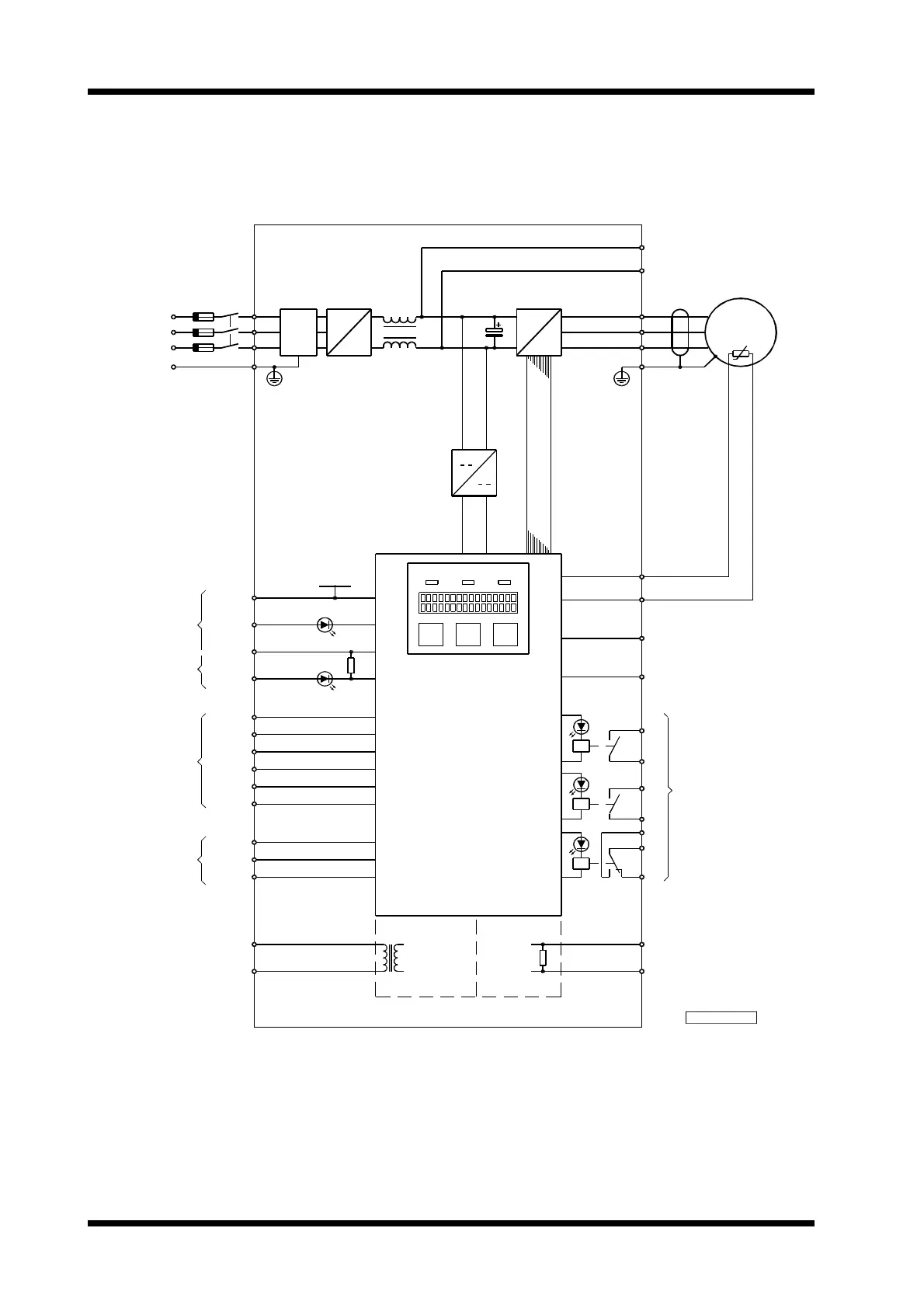
PDL MICRODRIVE-I - The Microdrive-3 Block Diagram

Default Icon
113 pages
Print Icon
To Next Page IconTo Next Page
To Next Page IconTo Next Page
To Previous Page IconTo Previous Page
To Previous Page IconTo Previous Page
Loading...
Microdrive Series Instruction Manual
4201-109 Rev I
18
RFI
FILTER
RECTIFIER
SERIAL
COMMUNICATIONS
DYNAMIC
BRAKE
FOR EXTERNAL
BRAKING RESISTOR
CONNECTIONS
SERIAL
COMMUNICATIONS
INPUTS
SWITCH
PROGRAMMABLE
CONTROL
PULSE TACHO
(ENCODER)
INPUTS
VOLTAGE I/P
CURRENT I/P
CONTROL
PROCESSOR
+
-
DC BUS
THERMISTOR
DIGITAL FREQUENCY OUTPUT
PROGRAMMABLE ANALOGUE
OUTPUT 0-10VDC
PROGRAMMABLE
RELAY OUTPUTS
SUPPLY
+
_
*
4807-022 Rev E
CONVERTER
INPUTS
PULSE TACHO
COMMUNICATIONS
+10V
0-10V
0V
4-20mA
+10V
DC/DC
PTC
MOTOR
INVERTER
ON
RUN
OK
230VAC/30VDC
1A
OPTION:
OPTION:
IP1
IP2
IP3
0V
IP5
IP4
+12V
I/P
0V
~
_
_
~
_
_
Figure 1.2a The Microdrive-3 (UD3) Block Diagram

Table of Contents

Related product manuals