EasyManua.ls Logo

PDL MICRODRIVE-I - Standard Configuration

Default Icon
113 pages
Print Icon
To Next Page IconTo Next Page
To Next Page IconTo Next Page
To Previous Page IconTo Previous Page
To Previous Page IconTo Previous Page
Loading...
Microdrive Series Instruction Manual
4201-109 Rev I
30
OR RUNNING
F=26.25F
FAILSAFE FAULT
MOTOR OVERLOAD
STOP/RESET
DIRECTION INVERT
EMERGENCY STOP
MOTOR PTC
+12V/50mA MAX
TACHO INPUT
0−10V=0−100Hz
6
4807−080 Rev D
50VAC
J2
0.3uF
X
E
RELAY 1
OUTPUT
RELAY 2
OUTPUT
3
2
1
4
5
2
0V
CHASSIS EARTH
LINK
0V
J1
BIAS POSITION
1
+15V
LINK J1
16
TACHO SUPPLY
SWITCH INPUT 1
SWITCH INPUT 2
SWITCH INPUT 3
SWITCH INPUT 4
SWITCH INPUT 5
0V
MOTOR PTC
0V
11
RELAY 3
OUTPUT
8
7
9
10
13
12
14
15
I/O NAME
TACHO INPUT
0V
+10V POTENTIOMETER
FREQUENCY INPUT
0V
FREQUENCY INPUT
FREQUENCY OUTPUT
0−10V ANALOGUE O/P
21
17
18
19
20
22
23
24
6
ALL SWITCH INPUTS: 30VDC MAX.
ALL RELAYS: 1A 250VAC / 30VDC
SCREEN ALL CONTROL CIRCUITS
REFERENCE FREQUENCY IS SELECTED AS
4−20mA OR 0−10V WHICHEVER IS GREATEST.
STARTED
3
2
1
*
4
5
TYPICAL CONNECTIONS
POTENTIOMETER
16
STOP
START
0V
0V
11
8
7
9
10
3−WIRE
13
12
14
15
0V/−mA
SUPPLY
0V
0−10V
FUNCTION
+ 4−20mA
O/P
21
17
18
19
20
22
23
24
2−WIRE
*
*
0V
0−10V
0V
1kOhm
4−20mA
*
STANDARD CONFIGURATION
PTC
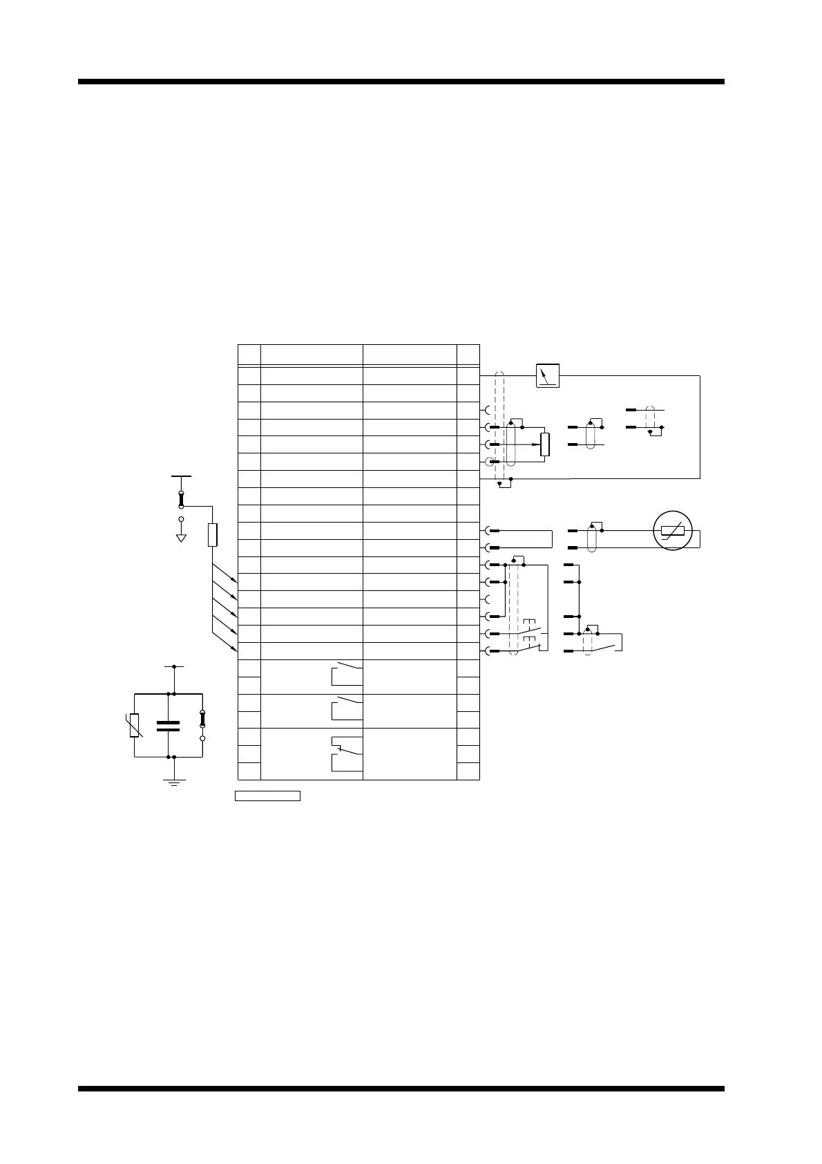
Figure 1.6 Standard Configuration of the Control Terminals

Table of Contents

Related product manuals