EasyManua.ls Logo

PEERLESS MI-e Series - Page 21

PEERLESS MI-e Series
44 pages
Print Icon
To Next Page IconTo Next Page
To Next Page IconTo Next Page
To Previous Page IconTo Previous Page
To Previous Page IconTo Previous Page
Loading...
19
ELECTRICAL
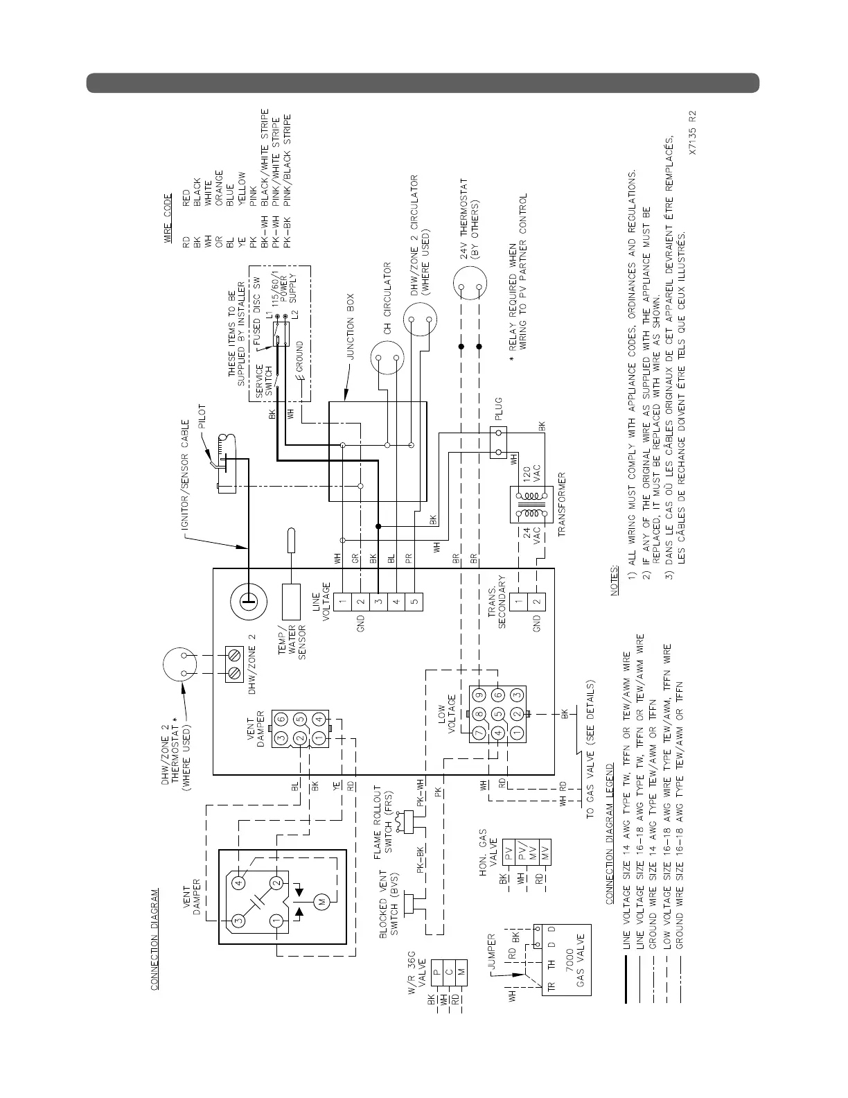
Figure 6.5: Wiring Diagram Intermittent Ignition 4200 Control

Related product manuals