EasyManua.ls Logo

PeerlessBoilers PBC-40 - Page 13

PeerlessBoilers PBC-40
65 pages
Print Icon
To Next Page IconTo Next Page
To Next Page IconTo Next Page
To Previous Page IconTo Previous Page
To Previous Page IconTo Previous Page
Loading...
11
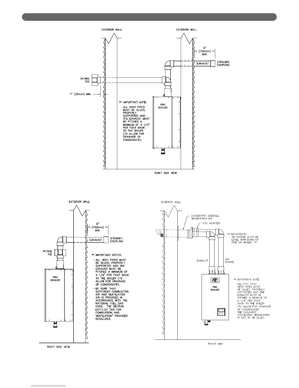
Figure 3.6: Exhaust and Air Inlet on Opposite Walls
Figure 3.7: Sidewall Exhaust with Indoor Air
Figure 3.8: Optional Concentric Vent Kit
Installation
VENTING & AIR INLET PIPING

Table of Contents

Related product manuals