EasyManua.ls Logo

Perkins 1104E Series - Page 148

Perkins 1104E Series
224 pages
Print Icon
To Next Page IconTo Next Page
To Next Page IconTo Next Page
To Previous Page IconTo Previous Page
To Previous Page IconTo Previous Page
Loading...
148 RENR2696-01
Troubleshooting Section
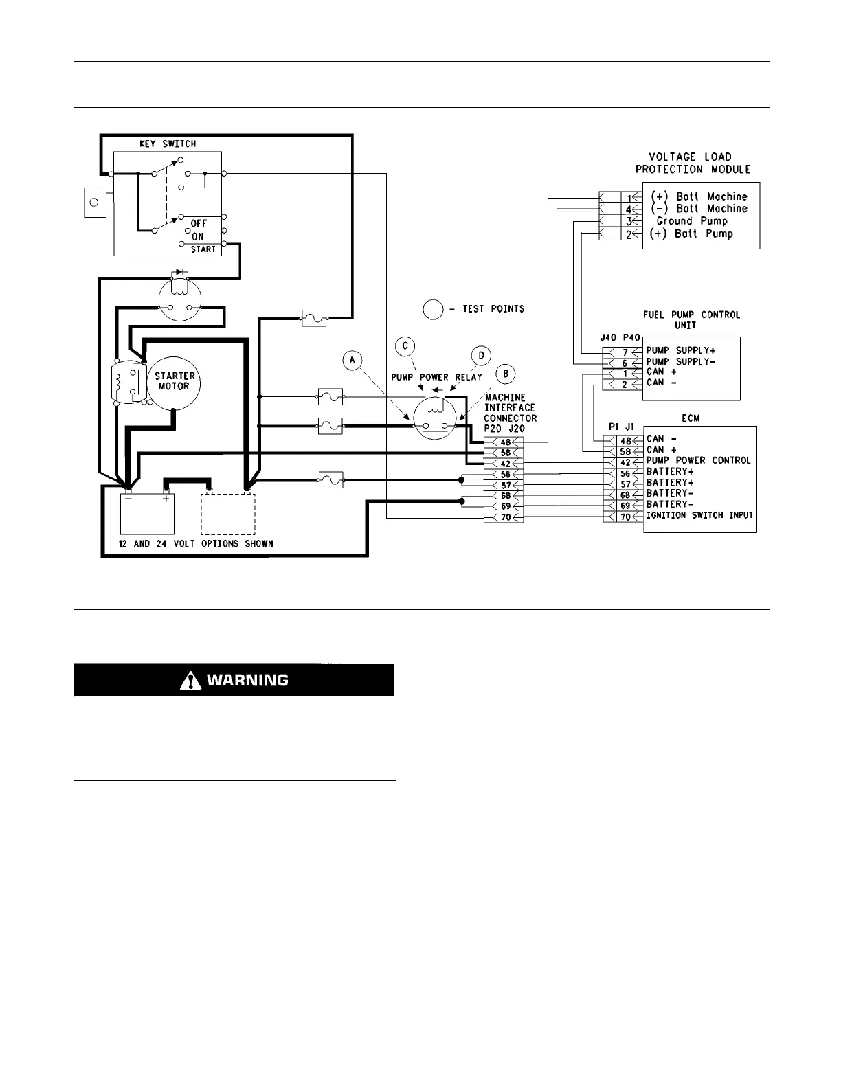
g00910876
Illustration 64
Schematic of the power supply for the fuel injection pum p
Batteries give off flammable fumes which can e x-
plode.
To avoid injury or death, do not strike a match,
cause a spark, or smoke in the vicinity of a battery.
Test Step 1. Check The Batteries.
Measure no-load battery voltage at the battery
posts.
Load test the batteries.
Note: The batteries must pass the load test. The
minimum voltage must be 11.5 volts for a 12 volt
battery. If the battery voltage of a 12 volt battery
is below 12.4 volts then the battery needs to be
charged.
Expected Result:
If the batteries are OK proceed to Test Step 2.
Results:
Not OK Recharge or replace the batteries. Verify
that the repair eliminates the problem. STOP.

Table of Contents

Related product manuals