EasyManua.ls Logo

Perkins 1104E Series - Engine Wiring Information

Perkins 1104E Series
224 pages
Print Icon
To Next Page IconTo Next Page
To Next Page IconTo Next Page
To Previous Page IconTo Previous Page
To Previous Page IconTo Previous Page
Loading...
26 RENR2696-01
Troubleshooting Section
i02294251
Engine Wiring Information
The wiring diagrams are revised periodically. The
wiring diagram
s will change with updates to the wiring
harness. For the most current information, always
check the revision number of the diagram. Use the
diagram with t
he latest revision number.
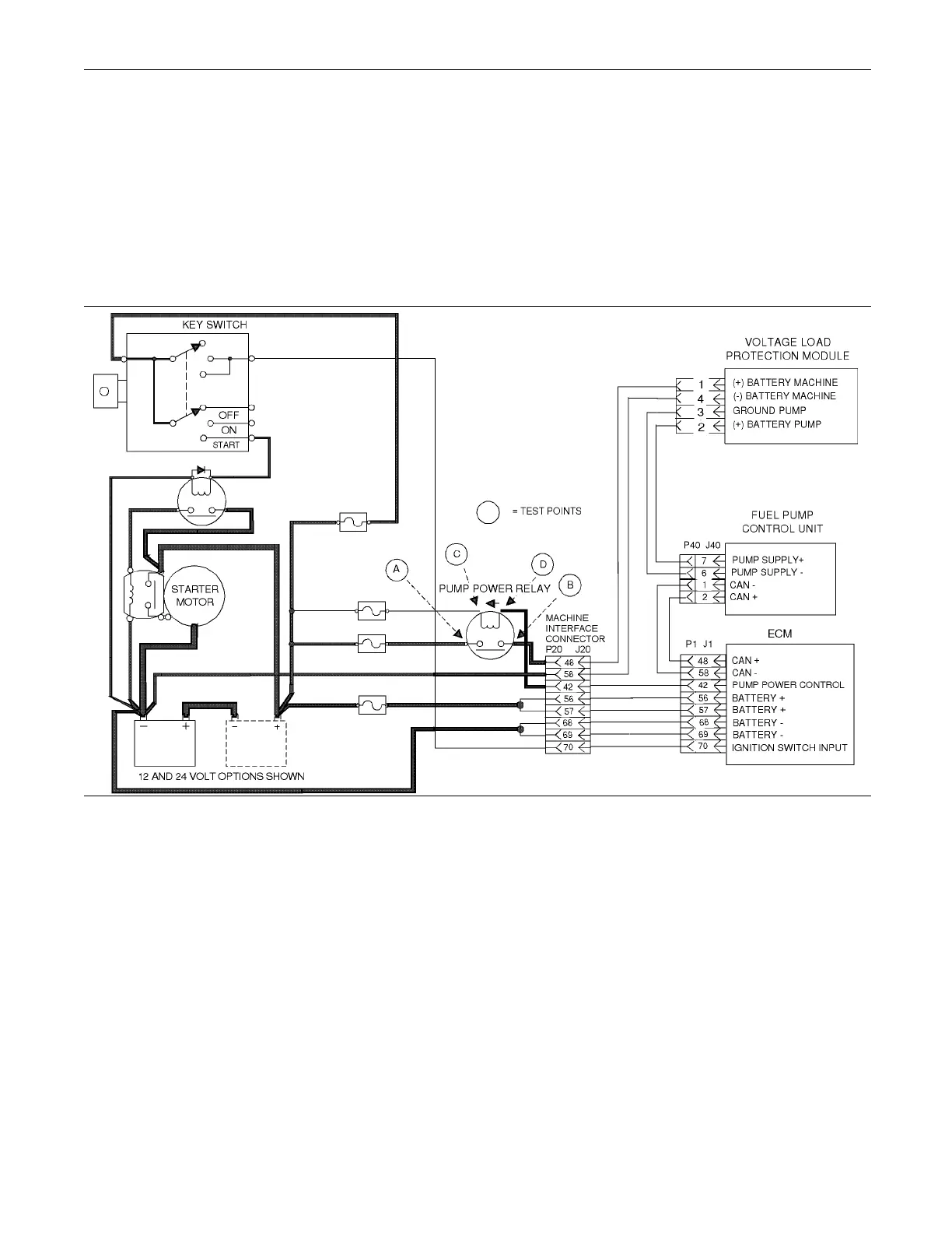
g01152042
Illustration 12
Schematic for the fuel injection pum p and ECM pow er supply for en gines with a Machine Interface Connector that has 70 pins
Note: Each terminal end of the J1939 CAN data
link must be connected with a 120 ohm terminating
resistor.
Note: Digital outputs 7,8,9,10,11,12,13, and 14 are
only suitable for a 12 V system.
Machine Interface Con nector
Two types of Machine Interface Connector are
available. One type of connector has 70 pins and
the other type has 31 pins. Illustration 13 and
illustration 14 show the layout for the Machine
Interface Connector with 70 pins. Illustration 15
and illustration 16 show the layout for the Machine
Interface Connector with 31 pins.
Note: Some engines with a Machine Interface
Connector that has 70 pins do not have the following
wiring connections: 35, 50, 53, 54, 60, 62, 63, 64,
and 67.

Table of Contents

Related product manuals