EasyManua.ls Logo

Perkins 1104E Series - Page 27

Perkins 1104E Series
224 pages
Print Icon
To Next Page IconTo Next Page
To Next Page IconTo Next Page
To Previous Page IconTo Previous Page
To Previous Page IconTo Previous Page
Loading...
RENR2696-01 27
Troubleshooting Section
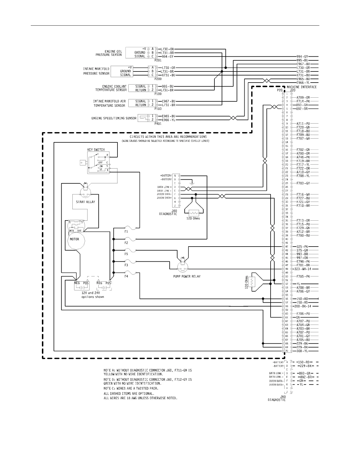
g00955504
Illustration 13

Table of Contents

Related product manuals