EasyManua.ls Logo

Perkins 2206-E13 - Safety Section; Safety Messages

Perkins 2206-E13
19 pages
Print Icon
To Next Page IconTo Next Page
To Next Page IconTo Next Page
To Previous Page IconTo Previous Page
To Previous Page IconTo Previous Page
Loading...
KENR6908 5
Troubleshooting Section
Troubleshooting Section
Electronic Troubleshooting
i02547521
System Overview
System Opera
tion
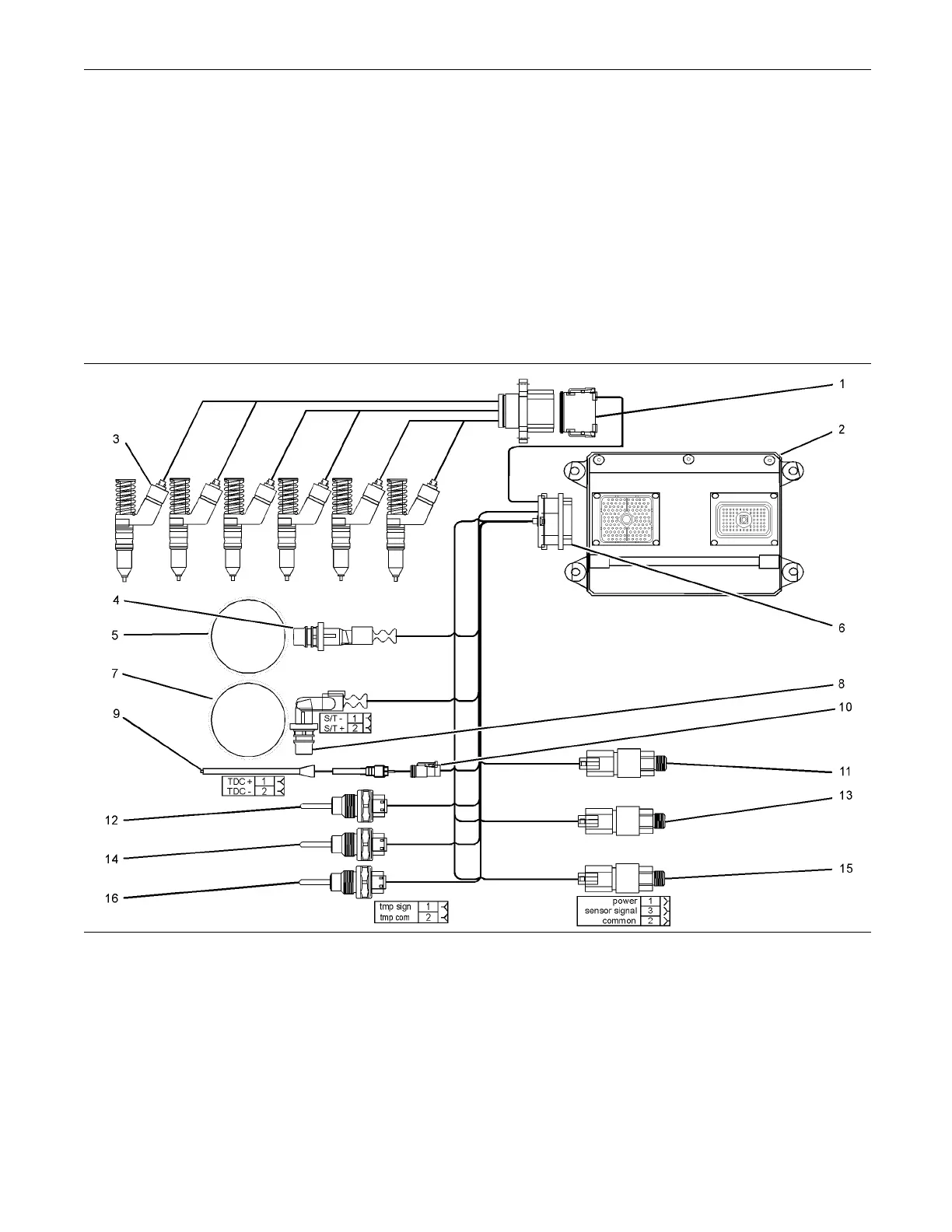
g01277565
Illustration 1
Block diagram for the 2506-15 engine
(1) 12 Pin Connec tor
(2) Electronic Control M odule (ECM)
(3) E lectronic Unit Injectors
(4) C rankshaft Position Se nsor
(5)36-1ToothGear
(6) 120 Pin Connector
(7)36+1ToothGear
(8) Camshaft Position Sensor
(9) Timing Calibration Probe
(10) Tim ing Calibration Probe Connec tor
(11) Atmospheric Pressure Se nsor
(12) Inlet Manifold Temperature Sensor
(13) Inlet Manifold P ressure Senso r
(14) Coolant Temper ature S ensor
(15) Engine O il P ressure Sensor
(16) Fuel Temperature S ensor
This engine is electronically controlled. Each cylinder
has an electronic unit injector. The Electronic Control
Module (ECM) sends a signal to each injector
solenoid in order to control the operation of the fuel
injection system .
This document has been printed from SPI². Not for Resale

Other manuals for Perkins 2206-E13

Related product manuals