EasyManua.ls Logo

Perkins D3.152 - Page 22

Perkins D3.152
44 pages
Print Icon
To Next Page IconTo Next Page
To Next Page IconTo Next Page
To Previous Page IconTo Previous Page
To Previous Page IconTo Previous Page
Loading...
4
22 User’s Handbook, TPD 1285E, Issue 2
3.152
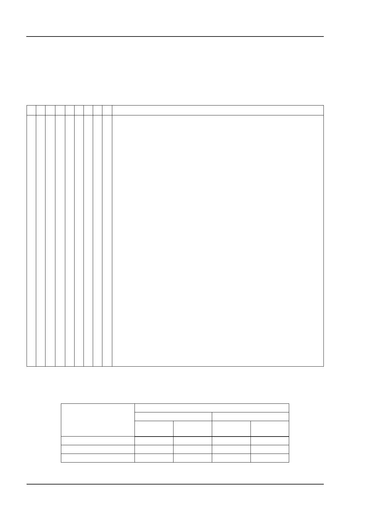
Schedules
(1) If there is one fitted.
(2) By a person who has had the correct training.
(3) The oil change interval will change with the amount of sulphur in the fuel (see the table below and "Fuel specification" on page 37).
The interval to change the canister of the lubricating oil filter is not affected.
A First service at 25/50 hours (All engines) F Every 500 hours or 12 months (D3.152)
B Every day or every 8 hours (All engines) G Every 800 hours or 12 months (3.1524, T3.1524)
C Every 200 hours or 4 months (3.1524, T3.1524) H Every 2400 hours (3.1524, T3.1524)
D Every 250 hours or 4 months (D3.152) I Every 2500 hours (D3.152)
E Every 400 hours or 12 months (3.1524, T3.1524)
ABC DEFGH I Operation
zzz z
Check the amount of coolant
zzz
Check the drive belt(s)
zz
Check for water in the fuel pre-filter
(1)
zz
Renew the fuel filter element(s)
zz
Ensure that the atomisers are checked
(2)
z
Ensure that the idle speed is checked and adjusted, if it is necessary
(2)
z
Check the amount of lubricating oil in the sump
zz
Check the lubricating oil pressure at the gauge
(1)
zzz
Renew the lubricating oil
(3)
zzz
Renew the canister(s) of the lubricating oil filter
Clean the air cleaner or empty the dust bowl of the air filer
zz
- extremely dusty conditions
zzz
- normal conditions
zz
Clean or renew the air filter element, if this has not been indicated earlier
zz
Ensure that the turbocharger impeller and turbocharger compressor casing are
cleaned
zz
Clean the compressor air filter
(1)
zz
Ensure that the exhauster or compressor
(1)
is checked
(2)
zzz
Ensure that the tappet clearances are checked and adjusted, if it is necessary
(2)
zz
Inspect the electrical system for signs of damage
(2)
Sulphur content of fuel
%
Oil change interval
Hours Months
D3.152
3.152,
T3.152
D3.152
3.152,
T3.152
<0.5 250 400 4 6
0.5-1,0 190 300 3 4.5
>1.0 120 200 2 3
This document has been printed from SPI². Not for Resale

Other manuals for Perkins D3.152

Related product manuals