EasyManua.ls Logo

Philips 47PFL3603D/27 - Ssb: Mjc Mt8280-Lvds (B5 R)

Philips 47PFL3603D/27
96 pages
Print Icon
To Next Page IconTo Next Page
To Next Page IconTo Next Page
To Previous Page IconTo Previous Page
To Previous Page IconTo Previous Page
Loading...
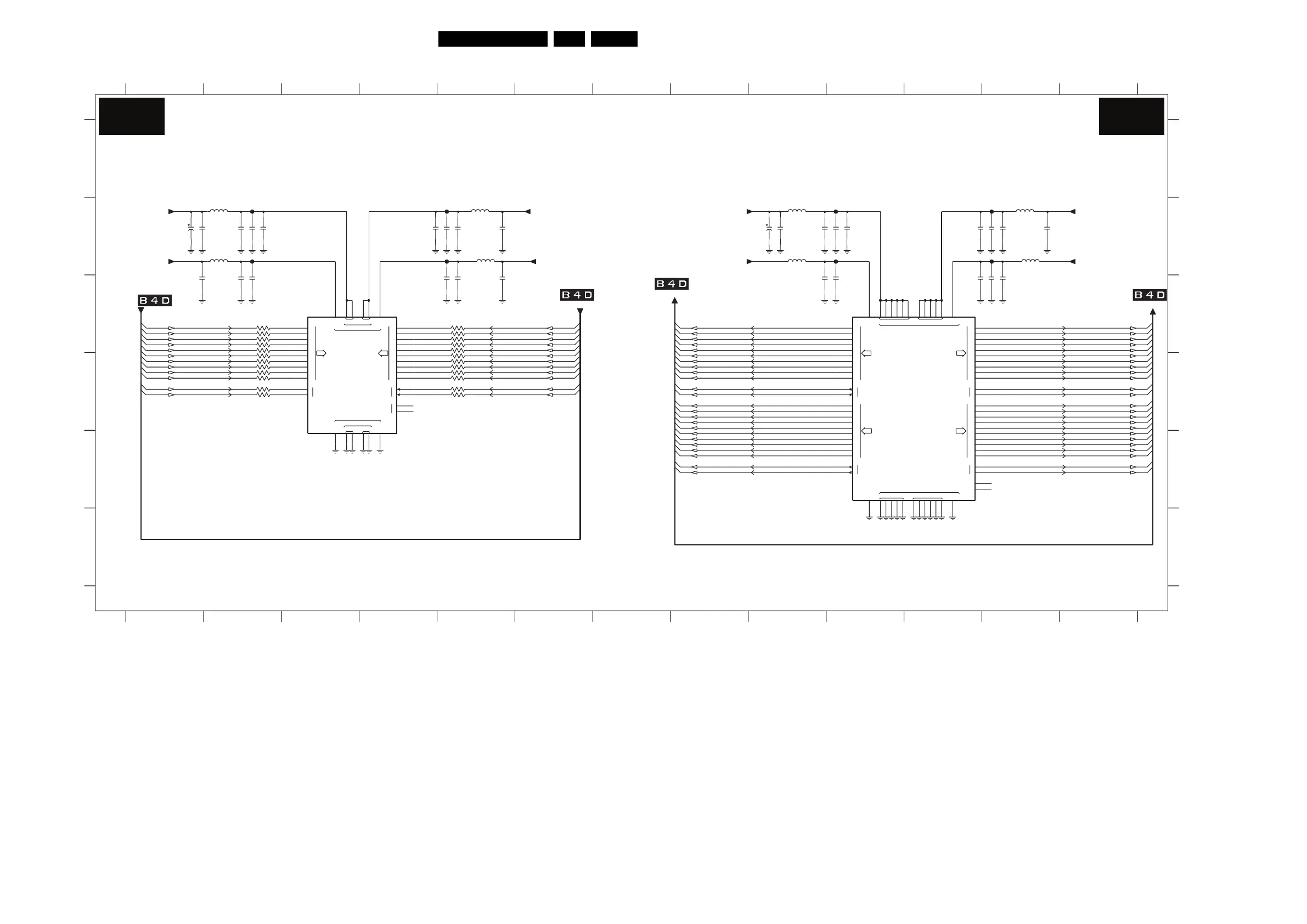
Circuit Diagrams and PWB Layouts
53LC8.1U LA 7.
SSB: MJC MT8280-LVDS
3N
3P
4N
4P
N
P
RO
ROCLK
RE
RECLK
CLKGENPLL
RXORXE
N
P
LV DS
VIPLL
AVDD33
RXE RXO
LV DS
CLKGEN_CK
CLKGENPLL
AVSS33
VIPLL
0N
0P
1N
1P
2N
2P
3N
3P
4N
4P
N
P
0N
0P
1N
1P
2N
2P
AVDD12
N
4P
TN2
TP2
0N
0P
1N
1P
2N
2P
3N
3P
4N
0N
0P
1N
1P
2N
2P
3N
3P
4N
4P
N
P
4P
AO
AECK
N
P
AOCK
BE
BECK
0N
0P
1N
1P
2N
2P
3N
3P
4N
4P
N
P
BO
BECK
TXA TXB
VPLL
AVSS33
P
AVSS12
TXA TXB
VPLL
AVDD33
AE
0N
0P
1N
1P
2N
2P
3N
3P
4N
1 8
3R53-3 C4
2R10 C1
7P01-4 C3
2R23 B12
3R54-2 D4
2R03 B2
2R04 B2
10
2
9
NC
FR04 B5
FR05 B10
3R53-2 D4
2R27 C12
2R25 C11
3R52-2 C4
3R50-3 D2
FROM LVDS
4
3R50-1 C2
2R21 B12
A
2R05 B2
5R05 B9
3
2R20 B10
5R04 B9
FR01 B2
2R09 B5
2R29 C10
5
2R16 B9
2R17 B9
MJC MT8280 - LVDS
2R28 C9
2R08 B5
F
A
FROM LVDS
3R52-3 C4
2R07 B4
FROM LVDS
6 12 13
C
2R01 B1
2R02 B1
3R53-1 D4
3R52-4 C4
3R51-4 D2
5R09 B1
D
7P01-3 C10
7
3R54-3 D4
B
2
5R07 B12
8
D
2R13 C5
2R12 C2
2R11 C2
B
E
C
5R03 B5
2R06 B5
98
13
1
NC
NC
4
2R14 C5
2R15 C5
2R18 B9
6
5R06 B12
1
E
5R08 B1
FR03 B2
2R19 B10
3R49-3 C2
2R26 C12
3R50-2 D2
FROM LVDS
F
3R51-2 D2
3R51-3 D2
3R50-4 D2
3R51-1 D2
3
3R49-1 C2
3R54-4 D4
2R24 B12
FR02 B5
3R52-1 C4
FR07 B12
FR06 B12
3R53-4 D4
3R54-1 D4
NC
11
11 12
10
3R49-2 C2
7
FR08 B10
5
2R22 B11
3R49-4 C2
5R02 B5
FR06
100n2R11
4 5 0R05
3R49-4
0R05
3R53-2
27
3R53-4
0R0545
FR03
5R04 30R
5R02 30R
+3V3_SW
3R52-3
0R053 6
10u2R24
3 6
3R49-3
0R05
5R05 30R 5R06 30R
1u02R29
2R12 10u
2R21 1u0
3R53-1
0R051 8
3R54-2
0R0527
1 8
5R0830R
3R51-1
0R05
5
FR05
0R05
3R52-4
4
4 5 0R05
3R51-4
2R16
16V
10u
+3V3_SW
27
3R51-2
0R05
5R09 30R
10n2R08
1 8
FR02
0R05
3R50-1
27
3R52-2
0R05
2R03 100n
2R18 100n
1u02R10
1 8
3 6
0R05
3R52-1
+3V3_SW
0R05
3R50-3
30R5R03
2R23 10n
2R19 10n
100n2R28
0R05
3R54-1
0R05
3R51-3
3 6
2R04 10n
1 8
+3V3_SW
3R49-1
0R05
AB8
AA9
AB9
AA10
AB10
AA12
AB12
AA13
AB13
AA11
AB11
AB15
AA16
AB16
AA18
AB18
AA19
AB19
AA17
AB17
AA8
W8
Y12
Y13
W9
W10
W11
AA7
AB7
AA14
AB14
AA15
MT8280
7P01-4
Y8
Y14
Y15
Y9
Y10
Y11
Φ
LVDS_RX
2R25 100n
+3V3_SW
FR08
2R14 100n
3 6 0R05
3R53-3
0R05
3R54-4
45
1u02R06
2R02 1u0
E21
E22
G21
G22
H21
H22
F21
F22
B21
A21
L22
N21
N22
P21
P22
M21
M22
C21
C22
D21
D22
L20
M20
N20
P20
B22
J21
J22
K21
K22
L21
G20
H20
A22
C20
C15
C16
C17
C18
C19
J20
K20
D19
C9
C10
C11
C12
C13
C14
D20
E20
F20
A9
B10
A10
B11
A11
B13
A13
B14
A14
B12
A12
B16
A16
B17
A17
B19
A19
B20
A20
B18
A18
B9
Φ
LVDS_TX
MT8280
7P01-3
B15
A15
+3V3_SW
+3V3_SW
FR04
100n2R26
2R01 10u
16V
0R0527
+1V2
3R49-2
2R22 100n
2R17 1u0
2R27 10u
100n2R07
10u2R20
2R09 10u2R15 10u
3R50-2
0R0527
FR01
3R50-4
0R0545
10u2R05
FR07
30R5R07
2R13 1u0
3R54-3
0R053 6
LVDS_B_TXo4n
LVDS_B_TXo3p
LVDS_B_TXo2n
LVDS_B_TXo1n
LVDS_B_TXo2p
LVDS_B_TXo4p
LVDS_B_TXe4p
LVDS_B_TXe4n
LVDS_B_TXo0p
LVDS_B_TXo0n
LVDS_B_TXo1p
LVDS_B_TXo3n
LVDS_B_TXeCLKn
LVDS_B_TXeCLKp
LVDS_B_TXe0p
LVDS_B_TXe0n
LVDS_B_TXe1p
LVDS_B_TXe1n
LVDS_B_TXe2p
LVDS_B_TXe2n
LVDS_B_TXe3p
LVDS_B_TXe3n
LVDS_A_TXe1n
LVDS_A_TXe1p
LVDS_A_TXe0n
LVDS_A_TXe0p
LVDS_B_TXoCLKp
LVDS_B_TXoCLKn
LVDS_A_TXo3p
LVDS_A_TXo4n
LVDS_A_TXo4p
LV
DS_A_TXe3n
LVDS_A_TXe3p
LVDS_A_TXe2n
LVDS_A_TXe2p
LVDS_A_TXo1n
LVDS_A_TXo1p
LVDS_A_TXo2n
LVDS_A_TXo2p
LVDS_A_TXo3n
LVDS_A_TXeCLKn
LVDS_A_TXeCLKp
LVDS_A_TXoCLKn
LVDS_A_TXoCLKp
LVDS_A_TXe4n
LVDS_A_TXe4p
LVDS_A_TXo0n
LVDS_A_TXo0p
LVDS_TXeCLKn
LVDS_TXeCLKp
LVDS_TXe2n
LVDS_TXe2p
LVDS_TXe4n
LVDS_TXe4p
LVDS_TXe3n
LVDS_TXe3p
LVDS_TXe0n
LVDS_TXe0p
LVDS_TXe1n
LVDS_TXe1p
LVDS_TXo1n
LV
DS_TXo0p
LVDS_TXo0n
LVDS_TXoCLKp
LVDS_TXo3p
LVDS_TXo4p
LVDS_TXo4n
LVDS_TXo3n
LVDS_TXo2p
LVDS_TXo2n
LVDS_TXo1p
LVDS_TXoCLKn
B5R B5R
H_17740_012.eps
210108
3139 123 6359.2

Related product manuals