EasyManua.ls Logo

Philips FM24 - Page 48

Philips FM24
122 pages
Print Icon
To Next Page IconTo Next Page
To Next Page IconTo Next Page
To Previous Page IconTo Previous Page
To Previous Page IconTo Previous Page
Loading...
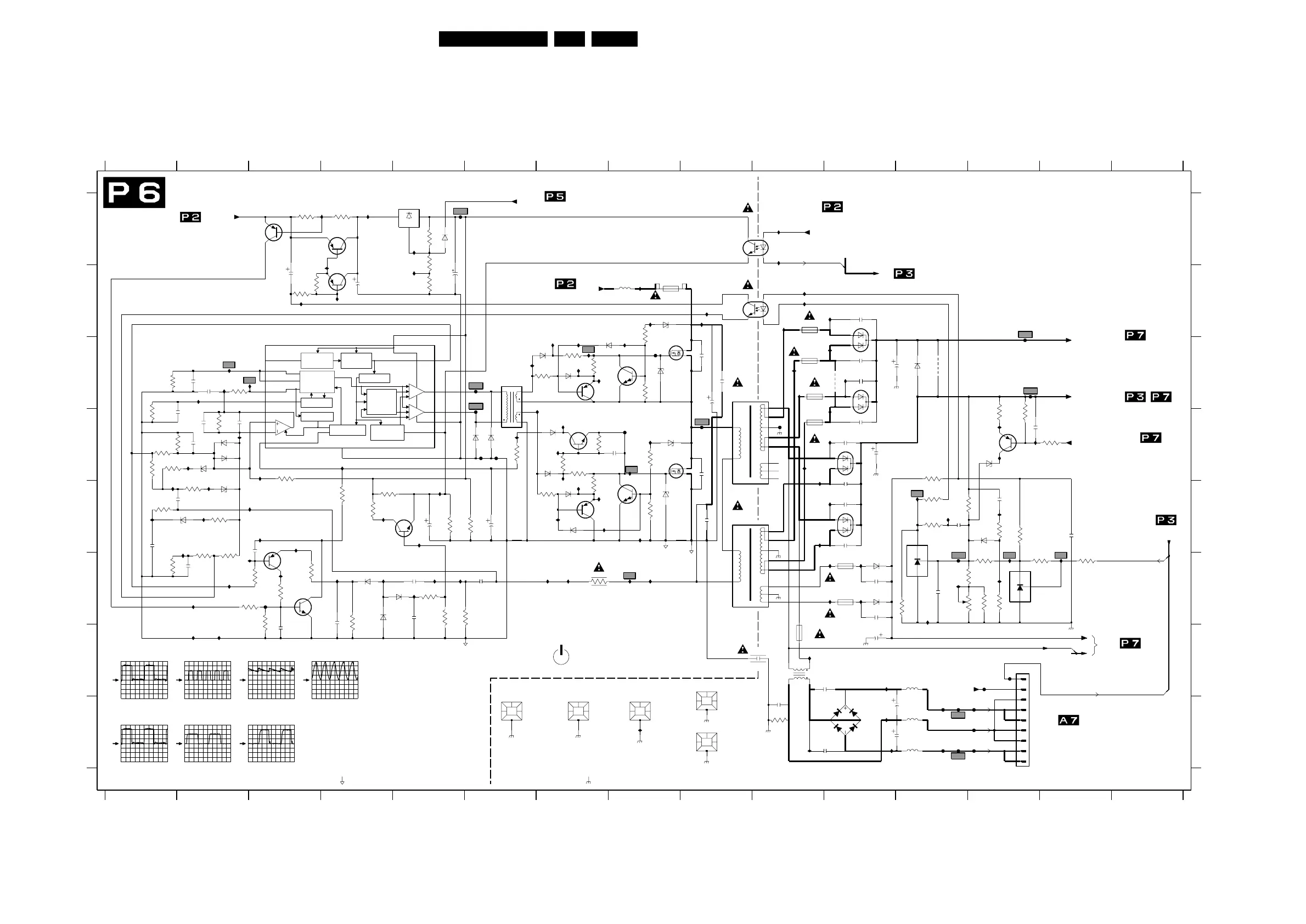
48FM24 7.
Electrical Diagrams and PWB Layouts
Power Supply Panel: LLC Supply
CL 26532055_006.eps
010502
F003
5V / div DC
20µs / div
F004
5V / div DC
2µs / div
F005
200V / div DC
5µs / div
F038
200V / div DC
2µs / div
I057
5V / div DC
2µs / div
100V / div DC
5µs / div
I007 I083 F014 = 2V4
F293 = 14V
F294 = -14V5
F801 = 17V
F815 = 78V
F816 = 78V
I027 = 2V6
I085 = 13V4
I090 = 4V2
I091 = 2V4
2V / div DC
2µs / div
VCC UVLO/
ENABLE
VARIABLE
FREQUENCY
OSCILLATOR
2.5V CLAMP
ERROR
SOFT-START
5.0 V
REFERENCE
VREF UVLO
STEERING
FLIP-FLOP
FAULT DET/
LATCH
ONE-SHOT
3096 A5
3097 B5
3292 H10
VRS
TO
6023 E13
(24V)
5V1
STANDBY ( . . . )
5001 C6
5002 C9
5003 B8
5004 E9
5290 G10
5291 H12
5292 H12
5293 G12
6004 D6
6005 D6
6007 C7
6008 D7
6009 F5
6010 F4
6011 F4
6012 E8
6013 C8
6018 C8
6019 E7
6021 F11
6022 D7
82K
3003
5291
39u
(0V3)
L 250V
I078 D13
I079 D13
I080 G10
1%
I081 F7
I082 F7
I083 F8
I084 F8
I085 E12
I086 D10
I087 D10
I088 E13
I089 E12
I090 F13
I091 F14
I092 F13
I093 F12
I094 F12
I097 E10
I098 H8
I099 C10
I290 G11
I291 H11
I292 H10
I293 H11
I055 E8
I056 B4
I057 D8
(0V)
PRECONDITIONER
SUPPLY &
I058 C11
I059 E7
I060 A10
I061 A10
I062 B10
I063 B10
I064 B9
I065 B11
I066 B9
I067 B10
I068 C11
I069 C10
I070 D11
I071 C10
I072 E11
I073 F11
I074 F11
I075 D13
I076 F11
I077 F11
I049 D8
I050 D7
I051 E7
7V3
PR02
MRS25 1%
TO
1% 1%
VR25
NFR25
I052 E7
I053 E7
I054 E7
I038 C7
I039 C7
I040 B8
(0V)
0V01
RES
18V6
L 250V
I041 B8
I042 C7
I043 C7
I044 C8
I045 C6
I046 C7
I047 D7
I048 D6
I025 F2
I026 F2
I027 C3
(T5AL250V)
74V1
TO
COLD
78V4
I028 G2
I029 G2
I030 E5
I031 E4
I032 E5
I033 F4
I034 F5
I035 F5
I036 F5
I037 C7
I006 B3
I007 C2
I008 C2
(T5AL250V)
I009 C2
I010 D2
I011 D2
I012 D4
I013 D3
I014 E1
I015 E2
I016 E3
I017 E2
I018 E3
I019 E1
I020 E3
I021 E1
I022 F2
I023 F3
I024 F4
F009 D6
F014 F12
F015 B13
0302
COLD GROUND
PROTECTION
(7V6)
L 250V
F016 C13
F017 D10
F290 H13
F291 G13
F292 H13
F293 H12
F294 H12
F295 H13
F296 G13
F297 H12
F298 H12
I001 A4
I002 A4
I003 A5
I004 B5
I005 B4
7008 E7
7009 E5
7010 E12
DRIVE
Voltage
7V3
7011 F13
7017 F3
7018 F3
7020 C8
7021 E8
7022 D7
7042 D13
7090 A3
7091 B4
7092 A4
7093 A5
9043 C12
9044 C11
F001 A5
F002 C8
F003 C6
F004 C6
F005 D9
F006 D8
F007 F3
F008 D6
6027 C7
6028 E7
6031 D2
Adj.
4V9
LLC_SUPPLY
FROM
HOT GROUND
6032 E2
6033 E2
6034 D2
6035 D2
6041 B11
6042 D13
6043 C12
6044 D11
6045 F11
6046 D11
6047 E11
6075 B8
6077 D8
6095 A5
6291 H11
7001 C3
7002 B9
7003 A9
7005 C8
7006 D8
7007 C73046 E1
3047 E2
3048 D1
FROM
RES
(22V1)
VSND_NEG
(1V2)
Vs_unsw
17V
(0V)
3049 D3
3050 F7
3056 E4
3057 D12
3064 F3
3065 E4
3066 F3
3067 F5
3070 E6
3071 F3
3075 B8
3076 C8
3077 D8
3078 E8
3080 D6
3081 D7
3090 A3
3091 B3
3092 A4
3093 B3
3095 A5
3016 C7
3017 D7
3018 E7
TO
RES
VSND_POS
MEASURED DC-VOLTAGES
3019 E7
3020 F5
3021 F5
3022 E12
3023 E12
3024 E12
3025 F12
3026 F12
3027 F3
3028 F13
3029 E13
3030 F12
3031 F14
3032 F14
3033 D7
3034 F13
3037 D13
3038 D13
3039 D14
3040 E13
3041 F13
3042 D1
3043 D1
3044 D1
3045 E2
2046 C11
2047 D11
2048 E11
15V
(0V5)
CONTROL
19V3
AUX_SUPPLY
(0V7)
HOT
2049 E11
2090 B3
2290 H10
2291 G11
2292 H11
2293 H11
2294 H11
3003 C1
3004 D1
3005 C2
3006 D2
3007 F2
3008 F2
3009 F1
3010 E4
3011 E5
3012 F3
3013 F4
3014 C7
3015 C7
2027 E3
2028 D11
2029 F11
LOW SIDE
(T5AL250V)
VS-CONTROLLER
GND_SND
(7V6)
FROM
2V
(T5AL250V)
SOFTSTART
18V6
17V
2030 F12
2032 D2
2033 D2
2034 E1
2035 E1
2036 D2
2038 D13
2040 D8
2041 B11
2042 C11
2043 C11
2044 D11
2045 F11
2007 F2
2008 F4
2009 E5
FILTER_STBY
AUX_SUPPLY
15V9
17V3
DRIVE
COMPONENT
VERKEERD
TO
(0V3)
NORMAL . .
CURRENT
2010 F5
2011 E9
2012 D9
2013 C9
2014 F6
2015 F5
2016 E6
2017 C9
2020 D11
2022 G11
2023 E14
2024 E12
2025 E13
2026 G3
G
H
A
FILTER_STBY
FROM
PROTECTION
4V9
0V6
FEEDBACK
DC PROTECTION
1041 B10
1042 C10
1043 C10
1044 D10
1045 F11
1084 G10
2000 G10
2001 C9
2002 B5
2003 B4
2004 C2
2005 D1
2006 C2
123
CONTROL
(5V)
PROTECTION
BIAS SUPPLY
456789101112131415
A
B
C
D
E
F
1003 H8
1004 B8
1005 F11
T2AE 250V
TO
HIGH SIDE
FILTER_STBY
123456789101112131415
4V2
AUX_SUPPLY
399V
73V5
Vs
13V4
IS AANGEVRAAGD
(0V7)
T3.15AE 250V
4V9
FROM
B
C
D
E
F
G
H
U13 E9
U14 E6
0204 G9
0302 G13
1000 H6
1001 H7
1002 H9
25
I052
1n
22n
2036
50
33R
3017
25
2038
BC847BW
7022
15n
2027
3021
4R7
2290
3032
11K
10K
3070
5010n
4K7
3007
I049
I037
I016
6019
BAS316
I001
F294
F009
I007
3292
560R
I024 I084
I003
100R
3090
470R
3026
I006
3050
3R9
I065
6021
BYV28
3
2
1
I069
6032
BZM55-C5V6
CU15
5290
4
I011
820R
3097
50
2u2
2009
BZX79-C15
6012
F297
10K
3037
I066
10K
3064
I063
I098
F007
LM317T
7093
A
IO
6018
BAS316
19372
1005
T5A
3008
1K
1042
6007
1N4148
3n3
2024
50
I054
2u2 50
2016
I097
I070
2294
1m
1600
2011
15n
STU16NB501
7005
7003
14
32
6035
BAS316
TCET1102
630
2004
200p
3034
I030
3047
150K
25
SW25V_HOT
1041
100n
2023
50
2008
10n
I086
BZM55-C5V6
6031
3031
11K
I073
3048
4K7
10n
2010
50
10R
3015
I077
9
1
10
11
12
13
14
15
16
2
3
4
5
6
7
8
I010
5002
CE423D
U13
16
2040
100n
F002
220p
2028
200
I078
6043
BYV27-200
1n
2006
25
47K
3027
5K6
3096
1K
3065
5003
I029
6077
BZT03-C
150u
GND3
47K
3023
6027
1N4148
F016
I039
45047u
2001
35
1m
2022
100K
3038
D4SBL20U
6291
4
1
2
3
I050
3024
75K
1044
BC517
7021
7042
BF423
I051
F005
15K
3010
F008
I004
I002
I075
47K
3071
I089
250
+5V_STBY_SW
BZT03-C
6075
180n
2025
I022
2K2
3033
1M
3039
3078
100K
F006
STU16NB501
7006
560R
3011
F296
9043
BAS316
6010
100K
3040
5293
39u
6046
STTH2003C
13
2
I008
I015
I020
10
11
13
14
2
4
3081
2K2
CE136H
5001
56K
3020
100K
3076
5292
39u
10K
3066
GND4
F015
F291
50
25V_HOT
6022
BAS316
10n
2015
18K
3030
I027
I090
2000
2012
330p
I083
I062
3012
4K7
12OB
16 OS
1 OSCC
3 OSCCC
2 OSCR
13PGND
11
SOST
15
VCC
5
VREF
U14
MC34067P
7001
6
EAO
9 EN|UA
10FI
4
GND
8 I+
7
I-
14OA
2017
15n
I056
220p
2029
50
1600
1002
SHIELDING 3.3
250
2000
470p
16
2007
100n
330p
2013
2000
I059
I088
I072
22n
2032
25
220p
2044
200
I026
4
3
2
F290
7002
TCET1102
1
I043
1K
3016
I092
I038
F292
3046
5M6
100
100n
2033
16
I067
2043
2m2
220p 200
BC847BW
7009
1M
3075
2041
10K
3006
1K
3029
F004
400V_HOT
I087
I094
27p
2034
2000
6028
1K
3091
4K7
3043
1N4148
7020
BC517
630
2005
100p
I033
SHIELDING 3.3
1003
470R
3095
3077
1M
I079
50
2045
220p
77-100V
3018
10R
2
3
4
5
6
7
8
9
7018
BC847BW
100R
3057
PH-B
0302
1
I021
2046
1n
2035
50
1
3
2
200220p
I048
6041
1K
3093
BAS316
6034
VS
I293
25V100u
2002
I082
I032
200
2042
220p
I028
BZX79-C15
6013
3013
10K
BC857BW
7017
3080
100R
I009
220p
2048
200
BC857BW
7091
6009
BAS316
I035
7K5
3028
I292
I047
F014
I057
I064
I045
330R
3022
I093
1m
2292
I031
1n5
2014
2000
I023
I074
BZX384-C47
6042
I040
1004u7
2090
STTH2003C
6044
1
3
2
I085
I041
I012
F017
I071
I044
1m 35
2003
220p
2047
200
9044
1N4148
6008
BC857BW
7090
SHIELDING 3.3
1001
2293
220p
3045
1K
2
3
4
5
6
7
89
50
CE423D
5004
1
10
11
12
13
14
15
16
F298
I025
I091
12K
3049
330R
3056
3019
1K
200
2049
220p
6023
BAS316
STTH2003C
6047
13
2
1043
19370
1084
F1A
I034
6005
BAS316
2020
BAS316
6004
I017
100
3m3
15K
3004
I061
+15V
470R
3042
I060
BAS316
3041
33K
I042
6095
I291
I046
100n
2030
16
6033
BZM55-C47
33K
3005
6011
BAS316
7008
BC327-25
I019
BC327-25
7007
I036
2291
50220p
33R
3014
I080
7092
BC327-25
1K
3044
I290
T5A
1045
19372
70-90V
1000
SHIELDING 3.3
7011
TL431CZ
2
1
3
I014
I055
I076
I013
HEATSINK
0204
I081
I053
I068
2
1
3
1004
19196
2n2
2026
50
TL431CZ
7010
I005
I018
I058
1K8
3025
470R
3092
+9V_STBY
F293
F295
F001
BYV28
6045
I099
15K
3067
F003
3009
1K
VB
DC_PROT
LATCH
VRS
www.freeservicemanuals.info
31/8/2014
Digitized in Heiloo, Holland

Related product manuals