EasyManua.ls Logo

Philips HP L1502 - Page 36

Philips HP L1502
65 pages
Print Icon
To Next Page IconTo Next Page
To Next Page IconTo Next Page
To Previous Page IconTo Previous Page
To Previous Page IconTo Previous Page
Loading...
36
HP L1502
9
Go to cover page
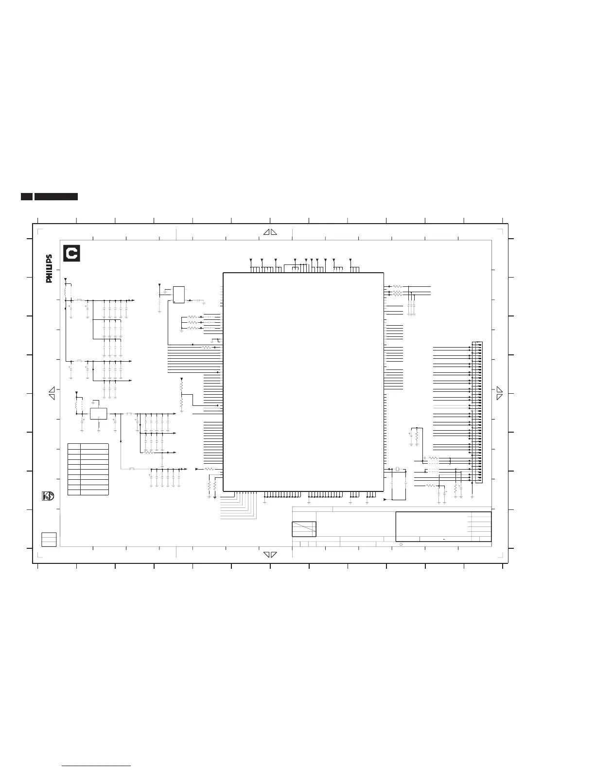
Scaler Schematic Diagram
C
ADJ
/Reserved8
/Reserved7
/Reserved15
/Reserved14
/Reserved21
/Reserved22
/Reserved23
/Reserved24
/Reserved4
/Reserved13
/Reserved19
/Reserved26
/Reserved6
/Reserved12
/Reserved18
/Reserved27
/Reserved2
Reserved3/
Reserved10/
Reserved16/
Reserved22/
Reserved25/
Reserved5/
Reserved11/
Reserved17/
Reserved28/
/Reserved9
[R]
[R]
G
B
9
8
2430 E4
2431 E3
2432 G4
2415 C2
2416 C2
2417 C2
2418 D2
2419 D2
2420 D2
2421 D3
2422 D2
2423 D2
2424 D2
2425 C3
2426 E2
2427 E2
D
C
2
13
D
I
12
H
A
B
C
D
E
F
G
H
U1 E12
U2 E12
U3 E12
1410 G10
1412 G12
2403 B2
2404 B2
2405 B2
2406 B2
2407 B3
2409 B1
2410 C2
F185 F1
2
F186 G12
F189 G12
F190 F12
EXCEPT 2454, 2468, 5406,5407 WERE CHIP COMPONENTS.
B
3
2467 G11
2468 F10
3401 C4
3402 C4
3403 C4
3405 F11
3406 C5
3407 F11
3416 G11
3419 F5
3426 G5
3429 F3
3430 B10
3431 B10
3432 B1
3433 B10
3435 E2
3436 F11
3437 G11
2411 C2
2412 C2
2413 C3
2414 B3
All rights reserved. Reproduction in whole or in parts
105C
105C
12
1%
SCALER BOARD
3442 E4
3468 F10
5401 B2
5402 D2
5403 E3
5404 F3
5406 B1
5407 E1
7403 E2
7404 A6
7405 B4
F080 F12
F082 F12
F083 G12
F084 G12
F157 C12
2462 B5
2463 B10
2464 B10
2465 B10
9
5
7
11
A
2
105C
J
4 11
[R]
8
3
10
F162 D12
F163 D1
2
F164 D12
F165 D12
F166 D12
F167 D12
F168 D12
F169 E12
F170 E12
3438 F11
3439 G11
3440 G5
3441 D4
F171 E1
2
F173 E12
F175 E12
F177 E12
4
[ R ] STANDS FOR COMPONENTS RESERVED.
13
2441 F4
2442 E4
2443 E4
2444 F4
2445 B5
2446 C5
2447 C5
2450 G10
2451 G10
2452 G11
2454 G11
2455 D1
2458 D2
2461 B4
2428 E3
2429 E3
gedeeltelijk, is niet toegestaan dan met schriftelijke
7
5
5407 313818874581
10u
I233 C5
I234 E2
F158 C12
F159 D12
F160 D12
F161 D12
10
[R]
[R]
E
1
I091 B1
2
SB: 58881 x 6
F178 F12
F179 F12
F180 F12
F181 F12
F182 F12
F183 F12
F184 F12
A
Alle rechten voorbehouden. Verveelvuldiging, geheel of
10u
1
2433 G4
2434 G4
2435 G4
2436 G4
2437 G3
2438 F3
2439 F3
2440 F4
I104 F10
I106 D2
I107 F3
I108 E3
I133 C4
I134 C5
I137 D5
I138 E5
I227 B10
I228 B10
I229 B10
[R]
E
F
G
31
10K
5406 313818874581
is prohibited without the written consent of the copyright
H
J
toestemming van de auteursrechthebbende.
G
I
6
F
6789101112
A
B
C
D
PB: 58891
E
F
C
H
TO PANEL
0R05
3442 212211805669
owner.
I232 C5
[R]
6
I230 B4
I231 C5
I092 B3
I099 G4
I102 F4
I103 G10
[R]
Ref Des Reserved
Rsv’d Var’t
2454 202203100178
100u
2464 223886715339
33p
2465 223886715339
33p
2467 222278019763
1u
3426 319802190030
0R05
3440 319802190030
8 9 10 11 12
12345
2443
100n
[R]
6547
H:CONTINUE
L:BURST
33p
2465
2422100n
2425100n
2431
10u
2407100n
I228
I229
10n
I233
I227
F084
2446
45
46
47
48
49
5
50
6
7
8
9
51 52
30
31
32
33
34
35
36
37
38
39
4
40
41
42
43
44
16
17
18
19
2
20
21
22
23
24
25
26
27
28
29
3
1412
1
10
11
12
13
14
15
5401
100MHZ
3438
1K
3437
100u
2468
3.3V_AVDD
3441
+3.3V
3442
10K
10K
100MHZ
F178
5402
1u2467
100n 2420
F175
2412100n
2419100n
3.3V_AVDD
U2
F159
3433
0R
100n 2423
F082
F083
3405
10K
2.5V_AVDDRS
0R
3431
2432
100n
F189
3402 56R
F166
2406100n
2409
10u
100u
2454
F173
2.5V_RXPL
2428100n
32003-07-29
BILL /JACKY / JOSS
TYT12-
--------
KONINKLIJKE PHILIPS ELECTRONICS N.V. 2000
2003-05-29********
35
XH3 (CPQ-FP5315)SETNAMECHN
CLASS_NO
SUPERS.
1
NAME
DATEMGr CHECK
3138 158 5670
AJ2S4M/02
SCALER IC
A3***10 130
0R05
3426
3440
0R05
I231
I232
I234
I230
244710n
3419
1K
F182
3.3V_AVDD
100n2462
2430100n
100n 2418
100n
2442
2438100n
F181
2410100n
2427
10u
I091
100n 2415
2416100n
3.3V_DVDD
10u
2435
100n
2452
3439
F171
+3.3V
F161
F164
+3.3V
100n 2439
3.3V_DVDD
3435
5406
10u
10R
I103
3430
3.3V_AVDD
2K23468
F160
U3
100MHZ
5404
F179
F157
7403
IRU1206-25CY
GND
2
4
Vi
1
Vo
3
F162
100n 2411
F184
100n 2414
100n
I108
I134
2434
2441100n
2.5V_DVDD
2429
2.5V_DVDD
2.5V_DVDD
F170
100n
F190
10u
2455
F080
10u
2426
2450
4p7
I104
10n 2445
100n
2433
I099
5407
F165
10u
2403
10u
I133
I137
100n 2440
100n 2461
I138
56R3401
1410
3407
56R
3403
14M31818HZ
F183
F169
F167
3.3V_AVDD
2405100n
171
127
VDD_RX0_2.5
121
VDD_RX1_2.5
VDD_RX2_2.5
115
138
VDD_RXPLL_2.5
VDD_SDDS
162
VSS_DDDS
166
VSS_DPLL
170
161
VSS_SDDS
177
VSYNC
174
XTAL
F177
SGND_ADC
156
175
TCLK
2
TCON_EINV
3
TCON_EPOL
1
TCON_ESP
TCON_OINV
70
71
TCON_OPOL
69
TCON_OSP
74
TCON_RCLK
75
TCON_ROE
72
TCON_RSP2
73
TCON_RSP3
158
VDD1_ADC_2.5
VDD2_ADC_2.5
160
VDD_DDDS
167
VDD_DPLL
RVDD0
76
RVDD1
101
RVDD2
178
RVDD3
198
RVSS0
77
102
RVSS1
RVSS2
179
RVSS3
199
131
RX0+
130
RX0-
125
RX1+
RX1-
124
119
RX2+
118
RX2-
133
RXC+
134
RXC-
ROM_ADDR3
193
ROM_ADDR4
192
ROM_ADDR5
191
ROM_ADDR6
190
ROM_ADDR7
ROM_ADDR8
189
188
ROM_ADDR9
ROM_DATA0
207
206
ROM_DATA1
205
ROM_DATA2
204
ROM_DATA3
203
ROM_DATA4
ROM_DATA5
202
ROM_DATA6
201
200
ROM_DATA7
208
ROM_OEn
PPWR
RED+
150
RED-
151
RESERVED0
86
RESERVED1
87
RESETn
107
REXT
113
197
ROM_ADDR0
196
ROM_ADDR1
187
ROM_ADDR10
ROM_ADDR11
184
183
ROM_ADDR12
182
ROM_ADDR13
181
ROM_ADDR14
180
ROM_ADDR15
195
ROM_ADDR2
194
OCH4N_RS
52
OCH4P_RS
53
OCH5N_RS
54
OCH5P_RS
OCH6N_RS
55
56
OCH6P_RS
57
OCH7N_RS
58
OCH7P_RS
61
OCH8N_RS
62
OCH8P_RS
63
OCH9N_RS
64
OCH9P_RS
49
OCLKN_RS
50
OCLKP_RS
79
PBIAS
78
47
59
OAVDD_RS1_2.5
48
OAVSS_RS0
60
OAVSS_RS1
OCH0N_RS
39
40
OCH0P_RS
65
OCH10N_RS
66
OCH10P_RS
67
OCH11N_RS
68
OCH11P_RS
41
OCH1N_RS
42
OCH1P_RS
43
OCH2N_RS
44
OCH2P_RS
OCH3N_RS
45
46
OCH3P_RS
51
106
GPIO21_TCON_FSYNC
GPIO22_HCLK
88
97
GPIO2_PWM2
GPIO3_TIMER1
98
99
GPIO4_UART_DI
100
GPIO5_UART_DO
103
GPIO6_TCON_SHC
GPIO7_TCON_TDIV
104
GPIO8_IRQINn
94
GPIO9_TCON_ROE2
105
GREEN+
146
GREEN-
147
176
HSYNC
139
NC0
165
NC1
OAVDD_RS0_2.5
122
GND_RX1
116
GND_RX2
137
GND_RXPLL
GPIO0_PWM0
95
GPIO10_TCON_ROE3
80
GPIO11_ROM_WEn
81
GPIO12_NVRAM_SDA
82
GPIO13_NVRAM_SCL
83
GPIO14_DDC_SCL
108
GPIO15_DDC_SDA
109
GPIO16_HFSn
89
GPIO17
93
92
GPIO18
91
GPIO19
96
GPIO1_PWM1
90
GPIO20
ECH4P_RS
19
ECH5N_RS
ECH5P_RS
20
ECH6N_RS
21
22
ECH6P_RS
23
ECH7N_RS
24
ECH7P_RS
27
ECH8N_RS
28
ECH8P_RS
29
ECH9N_RS
30
ECH9P_RS
15
ECLKN_RS
16
ECLKP_RS
GND1_ADC
157
159
GND2_ADC
GND_RX0
128
EAVDD_RS1_2.5
EAVSS_RS0
14
EAVSS_RS1
26
ECH0N_RS
5
6
ECH0P_RS
31
ECH10N_RS
32
ECH10P_RS
33
ECH11N_RS
34
ECH11P_RS
7
ECH1N_RS
8
ECH1P_RS
9
ECH2N_RS
10
ECH2P_RS
11
ECH3N_RS
12
ECH3P_RS
17
ECH4N_RS
18
172
38
AVSS_RS
AVSS_SDDS
163
142
BLUE+
BLUE-
143
CLKOUT
140
35
CVDD0_2.5
CVDD1_2.5
84
CVDD2_2.5
110
CVDD3_2.5
185
CVSS0
36
CVSS1
85
CVSS2
111
CVSS3
186
4
DHS_TCON_LP
13
EAVDD_RS0_2.5
25
117
136
AGND_RXC
AVDD_ADC
153
141
AVDD_BLUE
169
AVDD_DDDS
AVDD_GREEN
145
AVDD_IMB
112
149
AVDD_RED
173
AVDD_RPLL
AVDD_RS
37
AVDD_RX0
132
AVDD_RX1
126
AVDD_RX2
120
135
AVDD_RXC
164
AVDD_SDDS
AVSS_DDDS
168
AVSS_RPLL
gm2116AA
154
ADC_TEST
AGND_ADC
155
AGND_BLUE
144
AGND_GREEN
148
114
AGND_IMB
AGND_RED
152
AGND_RX0
129
123
AGND_RX1
AGND_RX2
+3.3V
7404
I106
5403
100MHZ
F168
2437
10u
2421100n
2464
33p
F185
2463
10p
F180
2424
4p7
2451
100n
2458
10u
I092
F163
3406 100R
I107
3429
8R2
3436
2436
100n
7405
5
CD
3
GND
4
NC
OUT
1
2
VDD
2413100n
SA56616-28
2404100n
2417100n
F186
10K
3416
I102
3432
2444
1u
F158
U1
VS
HS
DSUB_CABLE
RIN
BIN
ISPSDA
ISPSCL
PANEL_3.3V
GIN
PANEL_IDX
BL_BURST
3.3V_AVDD
3.3V_AVDD
LED_R
K_DOWN
LED_G
K_UP
PNL_12V5V
BL_EN
DC_SW
PNL_3V3
+2.5V
BRIGHTNESS
PANEL_12V
BANK
IICSDA
IICSCL
R2-F
R0+F
R0-F
DATA 0
DATA 1
DATA 2
DATA 3
DATA 4
DATA 5
DATA 6
DATA 7
ROM_OE
2.5V_RXPL
2.5V_AVDDRS
3.3V_DVDD
3.3V_DVDD
3.3V_DVDD
G0-F
B2-F
B1+F
B2+F
LG_VCOM
LG_VCOM
F_STH
POL
LP
ID0
ID1
CLK-F
2.5V_DVDD
2.5V_DVDD
2.5V_DVDD
R0+F
R1-F
R1+F
R2-F
R2+F
24C02_WP
K_MENU
AUDIO_MUTE
24C16_WP
ADDR15
ADDR12
ADDR11
ADDR14
ADDR13
ADDR10
ADDR7
ADDR6
ADDR9
ADDR8
ADDR5
M29W_WE
B0-F
B1-F
B0+F
G2-F
G1+F
G2+F
G1-F
G0+F
R1+F
R1-F
R2+F
CLK+F
G0-F
G0+F
G1-F
G1+F
G2-F
G2+F
B0-F
B0+F
B1-F
B1+F
B2-F
B2+F
ADDR2
ADDR1
ADDR4
ADDR3
ADDR0
TXD
STV
GOE
CLK-F
CLK+F
CLKV
RXD
GOE
STV
CLKV
POL
LP
F_STH
R0-F

Related product manuals